Ref : 1009168-0L_MA
Location Local d'activités
Location Locaux d'activités - Chassieu (69680) - 2 542 m² divisibles à partir de 192 m²
Chassieu (69680)
Loyer : 301 608 € / an
Surface 2 542 m²
Divisible dès 192 m²
Description du bien
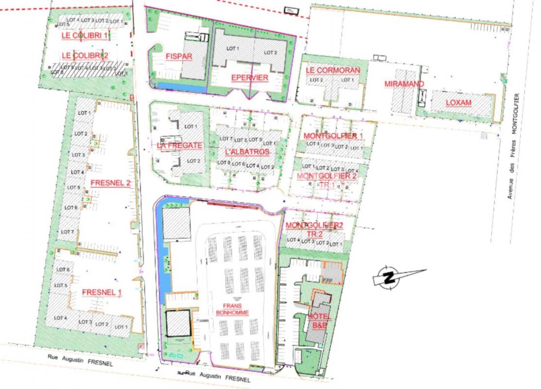
MALSH Realty vous propose à la location à Chassieu, Rocade Est, proche de l'A42 et A43, des locaux d'activités d'une surface totale d'environ 2 542 m² divisibles en plusieurs lots à partir de 192 m². Ces locaux bénéficient de places de parking privatives.
Situés dans un parc d'activités de qualité, clos et sécurisé au sein de la zone industrielle Mi-plaine, proche d'Eurexpo et de l'aéroport international Lyon Saint-Exupéry.
Idéal pour une activité de stockage ou négoce, PME PMI, artisan.
Prestations du bien
- Bâtiment FRESNEL 1 - A : (Neuf)
- Surface de 1160 m² divisible en 4 lots :
- Chaque lot comprend :
- 220 m² d'atelier
- 70 m² de bureaux et sanitaires
- 6 parkings privatifs
- Bâtiment FRESNEL 1 - B : (Neuf)
- Surface de 890 m² divisible en 3 lots :
- 2 lots de :
- 220 m² d'atelier
- 70 m² de bureaux et sanitaires
- 6 parkings privatifs
- 1 lot de :
- 300 m² d'atelier
- 70 m² de bureaux et sanitaires
- 7 parkings privatifs
- Portes sectionnelles motorisées
- Hauteur sous plafond : 6,60 m au gousset
- Dalle : résistance entre 2,5 et 3 T/m²
- Climatisation réversible et pré-équipement pour cuisine/SdB
- Pré-équipement pour bornes de recharge électrique (IRVE) sur chaque lot
- Bâtiment FRESNEL 2 - Lot n° 3 de 240 m² :
- 120 m² d'atelier
- 120 m² de bureaux et sanitaires
- 4 places de parking privatives
- Bâtiment L'ALBATROS - Lot n° 8 de 192 m² :
- 142 m² d'atelier
- 25 m² de bureaux et sanitaires RDC
- 25 m² de mezzanine R+1
- 200 m² de parking privatif
- Surface RDC : 25 m²
Informations financières
- Bail : commercial 3-6-9 ans
- Dépôt de garantie : 3 mois de loyer HT/HC
Ce local professionnel vous est présenté par
Vous souhaitez nous joindre ?
Surfaces des locaux
| Étage | Bâtiment | Type | Surfaces | Disponibilité | Loyer | Charges | Honoraires | Fiscal | Bail | Révision annuelle | Prix | Charges | Honoraires | Fiscal | Paiement Loyer | lot | Coworking | |
|---|---|---|---|---|---|---|---|---|---|---|---|---|---|---|---|---|---|---|
| Activités | 220 | 20 % HT du loyer annuel HT à la charge du preneur, payables à la signature du bail | T.V.A. (20%) | ILAT Indice des Loyers des Activités Tertiaires | Trimestriel d'avance | |||||||||||||
| Bureaux | 70 | 20 % HT du loyer annuel HT à la charge du preneur, payables à la signature du bail | T.V.A. (20%) | ILAT Indice des Loyers des Activités Tertiaires | Trimestriel d'avance | |||||||||||||
| Parkings | - | 20 % HT du loyer annuel HT à la charge du preneur, payables à la signature du bail | T.V.A. (20%) | ILAT Indice des Loyers des Activités Tertiaires | Trimestriel d'avance | |||||||||||||
| Total Cellule 1 | Activités | 290 | Immédiate | 120 HT/HC/m²/an | 20 % HT du loyer annuel HT à la charge du preneur, payables à la signature du bail | T.V.A. (20%) | commercial 3-6-9 ans | ILAT Indice des Loyers des Activités Tertiaires | Trimestriel d'avance | 1 | ||||||||
| Activités | 220 | 20 % HT du loyer annuel HT à la charge du preneur, payables à la signature du bail | T.V.A. (20%) | ILAT Indice des Loyers des Activités Tertiaires | Trimestriel d'avance | |||||||||||||
| Bureaux | 70 | 20 % HT du loyer annuel HT à la charge du preneur, payables à la signature du bail | T.V.A. (20%) | ILAT Indice des Loyers des Activités Tertiaires | Trimestriel d'avance | |||||||||||||
| Parkings | - | 20 % HT du loyer annuel HT à la charge du preneur, payables à la signature du bail | T.V.A. (20%) | ILAT Indice des Loyers des Activités Tertiaires | Trimestriel d'avance | |||||||||||||
| Total Cellule 2 | Activités | 290 | Immédiate | 120 HT/HC/m²/an | 20 % HT du loyer annuel HT à la charge du preneur, payables à la signature du bail | T.V.A. (20%) | commercial 3-6-9 ans | ILAT Indice des Loyers des Activités Tertiaires | Trimestriel d'avance | 2 | ||||||||
| Activités | 220 | 20 % HT du loyer annuel HT à la charge du preneur, payables à la signature du bail | T.V.A. (20%) | ILAT Indice des Loyers des Activités Tertiaires | Trimestriel d'avance | |||||||||||||
| Bureaux | 70 | 20 % HT du loyer annuel HT à la charge du preneur, payables à la signature du bail | T.V.A. (20%) | ILAT Indice des Loyers des Activités Tertiaires | Trimestriel d'avance | |||||||||||||
| Parkings | - | 20 % HT du loyer annuel HT à la charge du preneur, payables à la signature du bail | T.V.A. (20%) | ILAT Indice des Loyers des Activités Tertiaires | Trimestriel d'avance | |||||||||||||
| Total Cellule 3 | Activités | 290 | Immédiate | 120 HT/HC/m²/an | 20 % HT du loyer annuel HT à la charge du preneur, payables à la signature du bail | T.V.A. (20%) | commercial 3-6-9 ans | ILAT Indice des Loyers des Activités Tertiaires | Trimestriel d'avance | 3 | ||||||||
| Activités | 220 | 20 % HT du loyer annuel HT à la charge du preneur, payables à la signature du bail | T.V.A. (20%) | ILAT Indice des Loyers des Activités Tertiaires | Trimestriel d'avance | |||||||||||||
| Bureaux | 70 | 20 % HT du loyer annuel HT à la charge du preneur, payables à la signature du bail | T.V.A. (20%) | ILAT Indice des Loyers des Activités Tertiaires | Trimestriel d'avance | |||||||||||||
| Parkings | - | 20 % HT du loyer annuel HT à la charge du preneur, payables à la signature du bail | T.V.A. (20%) | ILAT Indice des Loyers des Activités Tertiaires | Trimestriel d'avance | |||||||||||||
| Total Cellule 4 | Activités | 290 | Immédiate | 120 HT/HC/m²/an | 20 % HT du loyer annuel HT à la charge du preneur, payables à la signature du bail | T.V.A. (20%) | commercial 3-6-9 ans | ILAT Indice des Loyers des Activités Tertiaires | Trimestriel d'avance | 4 | ||||||||
| Activités | 220 | 20 % HT du loyer annuel HT à la charge du preneur, payables à la signature du bail | T.V.A. (20%) | ILAT Indice des Loyers des Activités Tertiaires | Trimestriel d'avance | |||||||||||||
| Bureaux | 70 | 20 % HT du loyer annuel HT à la charge du preneur, payables à la signature du bail | T.V.A. (20%) | ILAT Indice des Loyers des Activités Tertiaires | Trimestriel d'avance | |||||||||||||
| Parkings | - | 20 % HT du loyer annuel HT à la charge du preneur, payables à la signature du bail | T.V.A. (20%) | ILAT Indice des Loyers des Activités Tertiaires | Trimestriel d'avance | |||||||||||||
| Total Cellule 1 | Activités | 290 | Immédiate | 120 HT/HC/m²/an | 20 % HT du loyer annuel HT à la charge du preneur, payables à la signature du bail | T.V.A. (20%) | commercial 3-6-9 ans | ILAT Indice des Loyers des Activités Tertiaires | Trimestriel d'avance | 1 | ||||||||
| Activités | 220 | 20 % HT du loyer annuel HT à la charge du preneur, payables à la signature du bail | T.V.A. (20%) | ILAT Indice des Loyers des Activités Tertiaires | Trimestriel d'avance | |||||||||||||
| Bureaux | 70 | 20 % HT du loyer annuel HT à la charge du preneur, payables à la signature du bail | T.V.A. (20%) | ILAT Indice des Loyers des Activités Tertiaires | Trimestriel d'avance | |||||||||||||
| Parkings | - | 20 % HT du loyer annuel HT à la charge du preneur, payables à la signature du bail | T.V.A. (20%) | ILAT Indice des Loyers des Activités Tertiaires | Trimestriel d'avance | |||||||||||||
| Total Cellule 2 | Activités | 290 | Immédiate | 120 HT/HC/m²/an | 20 % HT du loyer annuel HT à la charge du preneur, payables à la signature du bail | T.V.A. (20%) | commercial 3-6-9 ans | ILAT Indice des Loyers des Activités Tertiaires | Trimestriel d'avance | 2 | ||||||||
| Activités | 300 | 20 % HT du loyer annuel HT à la charge du preneur, payables à la signature du bail | T.V.A. (20%) | ILAT Indice des Loyers des Activités Tertiaires | Trimestriel d'avance | |||||||||||||
| Bureaux | 70 | 20 % HT du loyer annuel HT à la charge du preneur, payables à la signature du bail | T.V.A. (20%) | ILAT Indice des Loyers des Activités Tertiaires | Trimestriel d'avance | |||||||||||||
| Parkings | - | 20 % HT du loyer annuel HT à la charge du preneur, payables à la signature du bail | T.V.A. (20%) | ILAT Indice des Loyers des Activités Tertiaires | Trimestriel d'avance | |||||||||||||
| Total Cellule 3 | Activités | 370 | Immédiate | 120 HT/HC/m²/an | 20 % HT du loyer annuel HT à la charge du preneur, payables à la signature du bail | T.V.A. (20%) | commercial 3-6-9 ans | ILAT Indice des Loyers des Activités Tertiaires | Trimestriel d'avance | 3 | ||||||||
| Activités | 120 | 20 % HT du loyer annuel HT à la charge du preneur, payables à la signature du bail | T.V.A. (20%) | ILAT Indice des Loyers des Activités Tertiaires | Trimestriel d'avance | |||||||||||||
| Bureaux | 120 | 20 % HT du loyer annuel HT à la charge du preneur, payables à la signature du bail | T.V.A. (20%) | ILAT Indice des Loyers des Activités Tertiaires | Trimestriel d'avance | |||||||||||||
| Parkings | - | 20 % HT du loyer annuel HT à la charge du preneur, payables à la signature du bail | T.V.A. (20%) | ILAT Indice des Loyers des Activités Tertiaires | Trimestriel d'avance | |||||||||||||
| Total Cellule 3 | Activités | 240 | Immédiate | 110 HT/HC/m²/an | 20 % HT du loyer annuel HT à la charge du preneur, payables à la signature du bail | T.V.A. (20%) | commercial 3-6-9 ans | ILAT Indice des Loyers des Activités Tertiaires | Trimestriel d'avance | 3 | ||||||||
| Terrain | 200 | 20 % HT du loyer annuel HT à la charge du preneur, payables à la signature du bail | T.V.A. (20%) | ILAT Indice des Loyers des Activités Tertiaires | Trimestriel d'avance | |||||||||||||
| R-1 | Mezzanine | 25 | 20 % HT du loyer annuel HT à la charge du preneur, payables à la signature du bail | T.V.A. (20%) | ILAT Indice des Loyers des Activités Tertiaires | Trimestriel d'avance | ||||||||||||
| RDC | Activités | 142 | 20 % HT du loyer annuel HT à la charge du preneur, payables à la signature du bail | T.V.A. (20%) | ILAT Indice des Loyers des Activités Tertiaires | Trimestriel d'avance | ||||||||||||
| RDC | Bureaux | 25 | 20 % HT du loyer annuel HT à la charge du preneur, payables à la signature du bail | T.V.A. (20%) | ILAT Indice des Loyers des Activités Tertiaires | Trimestriel d'avance | ||||||||||||
| Total Cellule 8 | Activités | 192 | Immédiate | 114,58 HT/HC/m²/an | 20 % HT du loyer annuel HT à la charge du preneur, payables à la signature du bail | T.V.A. (20%) | commercial 3-6-9 ans | ILAT Indice des Loyers des Activités Tertiaires | Trimestriel d'avance | 8 | ||||||||
| Total | 2 742 m² | |||||||||||||||||
| 4 extérieur 6 extérieur 6 extérieur 6 extérieur 6 extérieur 6 extérieur 6 extérieur 7 extérieur | ||||||||||||||||||
Localisation et accessibilité
- Bus: Bus TCL lignes 76, 128 et Zi5 à proximité immédiate
Ces biens pourraient vous intéresser
| Étage | Bâtiment | Type | Surfaces | Disponibilité | Loyer | Charges | Honoraires | Fiscal | Bail | Révision annuelle | Prix | Charges | Honoraires | Fiscal | Paiement Loyer | lot | Coworking | |
|---|---|---|---|---|---|---|---|---|---|---|---|---|---|---|---|---|---|---|
| Activités | 220 | 20 % HT du loyer annuel HT à la charge du preneur, payables à la signature du bail | T.V.A. (20%) | ILAT Indice des Loyers des Activités Tertiaires | Trimestriel d'avance | |||||||||||||
| Bureaux | 70 | 20 % HT du loyer annuel HT à la charge du preneur, payables à la signature du bail | T.V.A. (20%) | ILAT Indice des Loyers des Activités Tertiaires | Trimestriel d'avance | |||||||||||||
| Parkings | - | 20 % HT du loyer annuel HT à la charge du preneur, payables à la signature du bail | T.V.A. (20%) | ILAT Indice des Loyers des Activités Tertiaires | Trimestriel d'avance | |||||||||||||
| Total Cellule 1 | Activités | 290 | Immédiate | 120 HT/HC/m²/an | 20 % HT du loyer annuel HT à la charge du preneur, payables à la signature du bail | T.V.A. (20%) | commercial 3-6-9 ans | ILAT Indice des Loyers des Activités Tertiaires | Trimestriel d'avance | 1 | ||||||||
| Activités | 220 | 20 % HT du loyer annuel HT à la charge du preneur, payables à la signature du bail | T.V.A. (20%) | ILAT Indice des Loyers des Activités Tertiaires | Trimestriel d'avance | |||||||||||||
| Bureaux | 70 | 20 % HT du loyer annuel HT à la charge du preneur, payables à la signature du bail | T.V.A. (20%) | ILAT Indice des Loyers des Activités Tertiaires | Trimestriel d'avance | |||||||||||||
| Parkings | - | 20 % HT du loyer annuel HT à la charge du preneur, payables à la signature du bail | T.V.A. (20%) | ILAT Indice des Loyers des Activités Tertiaires | Trimestriel d'avance | |||||||||||||
| Total Cellule 2 | Activités | 290 | Immédiate | 120 HT/HC/m²/an | 20 % HT du loyer annuel HT à la charge du preneur, payables à la signature du bail | T.V.A. (20%) | commercial 3-6-9 ans | ILAT Indice des Loyers des Activités Tertiaires | Trimestriel d'avance | 2 | ||||||||
| Activités | 220 | 20 % HT du loyer annuel HT à la charge du preneur, payables à la signature du bail | T.V.A. (20%) | ILAT Indice des Loyers des Activités Tertiaires | Trimestriel d'avance | |||||||||||||
| Bureaux | 70 | 20 % HT du loyer annuel HT à la charge du preneur, payables à la signature du bail | T.V.A. (20%) | ILAT Indice des Loyers des Activités Tertiaires | Trimestriel d'avance | |||||||||||||
| Parkings | - | 20 % HT du loyer annuel HT à la charge du preneur, payables à la signature du bail | T.V.A. (20%) | ILAT Indice des Loyers des Activités Tertiaires | Trimestriel d'avance | |||||||||||||
| Total Cellule 3 | Activités | 290 | Immédiate | 120 HT/HC/m²/an | 20 % HT du loyer annuel HT à la charge du preneur, payables à la signature du bail | T.V.A. (20%) | commercial 3-6-9 ans | ILAT Indice des Loyers des Activités Tertiaires | Trimestriel d'avance | 3 | ||||||||
| Activités | 220 | 20 % HT du loyer annuel HT à la charge du preneur, payables à la signature du bail | T.V.A. (20%) | ILAT Indice des Loyers des Activités Tertiaires | Trimestriel d'avance | |||||||||||||
| Bureaux | 70 | 20 % HT du loyer annuel HT à la charge du preneur, payables à la signature du bail | T.V.A. (20%) | ILAT Indice des Loyers des Activités Tertiaires | Trimestriel d'avance | |||||||||||||
| Parkings | - | 20 % HT du loyer annuel HT à la charge du preneur, payables à la signature du bail | T.V.A. (20%) | ILAT Indice des Loyers des Activités Tertiaires | Trimestriel d'avance | |||||||||||||
| Total Cellule 4 | Activités | 290 | Immédiate | 120 HT/HC/m²/an | 20 % HT du loyer annuel HT à la charge du preneur, payables à la signature du bail | T.V.A. (20%) | commercial 3-6-9 ans | ILAT Indice des Loyers des Activités Tertiaires | Trimestriel d'avance | 4 | ||||||||
| Activités | 220 | 20 % HT du loyer annuel HT à la charge du preneur, payables à la signature du bail | T.V.A. (20%) | ILAT Indice des Loyers des Activités Tertiaires | Trimestriel d'avance | |||||||||||||
| Bureaux | 70 | 20 % HT du loyer annuel HT à la charge du preneur, payables à la signature du bail | T.V.A. (20%) | ILAT Indice des Loyers des Activités Tertiaires | Trimestriel d'avance | |||||||||||||
| Parkings | - | 20 % HT du loyer annuel HT à la charge du preneur, payables à la signature du bail | T.V.A. (20%) | ILAT Indice des Loyers des Activités Tertiaires | Trimestriel d'avance | |||||||||||||
| Total Cellule 1 | Activités | 290 | Immédiate | 120 HT/HC/m²/an | 20 % HT du loyer annuel HT à la charge du preneur, payables à la signature du bail | T.V.A. (20%) | commercial 3-6-9 ans | ILAT Indice des Loyers des Activités Tertiaires | Trimestriel d'avance | 1 | ||||||||
| Activités | 220 | 20 % HT du loyer annuel HT à la charge du preneur, payables à la signature du bail | T.V.A. (20%) | ILAT Indice des Loyers des Activités Tertiaires | Trimestriel d'avance | |||||||||||||
| Bureaux | 70 | 20 % HT du loyer annuel HT à la charge du preneur, payables à la signature du bail | T.V.A. (20%) | ILAT Indice des Loyers des Activités Tertiaires | Trimestriel d'avance | |||||||||||||
| Parkings | - | 20 % HT du loyer annuel HT à la charge du preneur, payables à la signature du bail | T.V.A. (20%) | ILAT Indice des Loyers des Activités Tertiaires | Trimestriel d'avance | |||||||||||||
| Total Cellule 2 | Activités | 290 | Immédiate | 120 HT/HC/m²/an | 20 % HT du loyer annuel HT à la charge du preneur, payables à la signature du bail | T.V.A. (20%) | commercial 3-6-9 ans | ILAT Indice des Loyers des Activités Tertiaires | Trimestriel d'avance | 2 | ||||||||
| Activités | 300 | 20 % HT du loyer annuel HT à la charge du preneur, payables à la signature du bail | T.V.A. (20%) | ILAT Indice des Loyers des Activités Tertiaires | Trimestriel d'avance | |||||||||||||
| Bureaux | 70 | 20 % HT du loyer annuel HT à la charge du preneur, payables à la signature du bail | T.V.A. (20%) | ILAT Indice des Loyers des Activités Tertiaires | Trimestriel d'avance | |||||||||||||
| Parkings | - | 20 % HT du loyer annuel HT à la charge du preneur, payables à la signature du bail | T.V.A. (20%) | ILAT Indice des Loyers des Activités Tertiaires | Trimestriel d'avance | |||||||||||||
| Total Cellule 3 | Activités | 370 | Immédiate | 120 HT/HC/m²/an | 20 % HT du loyer annuel HT à la charge du preneur, payables à la signature du bail | T.V.A. (20%) | commercial 3-6-9 ans | ILAT Indice des Loyers des Activités Tertiaires | Trimestriel d'avance | 3 | ||||||||
| Activités | 120 | 20 % HT du loyer annuel HT à la charge du preneur, payables à la signature du bail | T.V.A. (20%) | ILAT Indice des Loyers des Activités Tertiaires | Trimestriel d'avance | |||||||||||||
| Bureaux | 120 | 20 % HT du loyer annuel HT à la charge du preneur, payables à la signature du bail | T.V.A. (20%) | ILAT Indice des Loyers des Activités Tertiaires | Trimestriel d'avance | |||||||||||||
| Parkings | - | 20 % HT du loyer annuel HT à la charge du preneur, payables à la signature du bail | T.V.A. (20%) | ILAT Indice des Loyers des Activités Tertiaires | Trimestriel d'avance | |||||||||||||
| Total Cellule 3 | Activités | 240 | Immédiate | 110 HT/HC/m²/an | 20 % HT du loyer annuel HT à la charge du preneur, payables à la signature du bail | T.V.A. (20%) | commercial 3-6-9 ans | ILAT Indice des Loyers des Activités Tertiaires | Trimestriel d'avance | 3 | ||||||||
| Terrain | 200 | 20 % HT du loyer annuel HT à la charge du preneur, payables à la signature du bail | T.V.A. (20%) | ILAT Indice des Loyers des Activités Tertiaires | Trimestriel d'avance | |||||||||||||
| R-1 | Mezzanine | 25 | 20 % HT du loyer annuel HT à la charge du preneur, payables à la signature du bail | T.V.A. (20%) | ILAT Indice des Loyers des Activités Tertiaires | Trimestriel d'avance | ||||||||||||
| RDC | Activités | 142 | 20 % HT du loyer annuel HT à la charge du preneur, payables à la signature du bail | T.V.A. (20%) | ILAT Indice des Loyers des Activités Tertiaires | Trimestriel d'avance | ||||||||||||
| RDC | Bureaux | 25 | 20 % HT du loyer annuel HT à la charge du preneur, payables à la signature du bail | T.V.A. (20%) | ILAT Indice des Loyers des Activités Tertiaires | Trimestriel d'avance | ||||||||||||
| Total Cellule 8 | Activités | 192 | Immédiate | 114,58 HT/HC/m²/an | 20 % HT du loyer annuel HT à la charge du preneur, payables à la signature du bail | T.V.A. (20%) | commercial 3-6-9 ans | ILAT Indice des Loyers des Activités Tertiaires | Trimestriel d'avance | 8 | ||||||||
| Total | 2 742 m² | |||||||||||||||||
| 4 extérieur 6 extérieur 6 extérieur 6 extérieur 6 extérieur 6 extérieur 6 extérieur 7 extérieur | ||||||||||||||||||
















































