Ref : 1446853-0_MA
Location Local d'activités
Vente ou Location Local d'Activités - Fontaines Saint Martin (69270) - 755 m²
Fontaines-Saint-Martin (69270)
Loyer : 45 600 € / an
Surface 755 m²
Description du bien
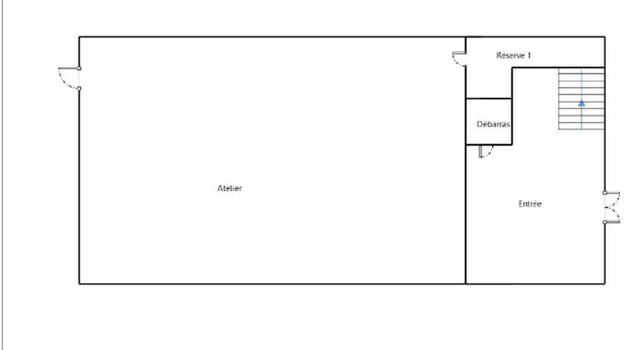
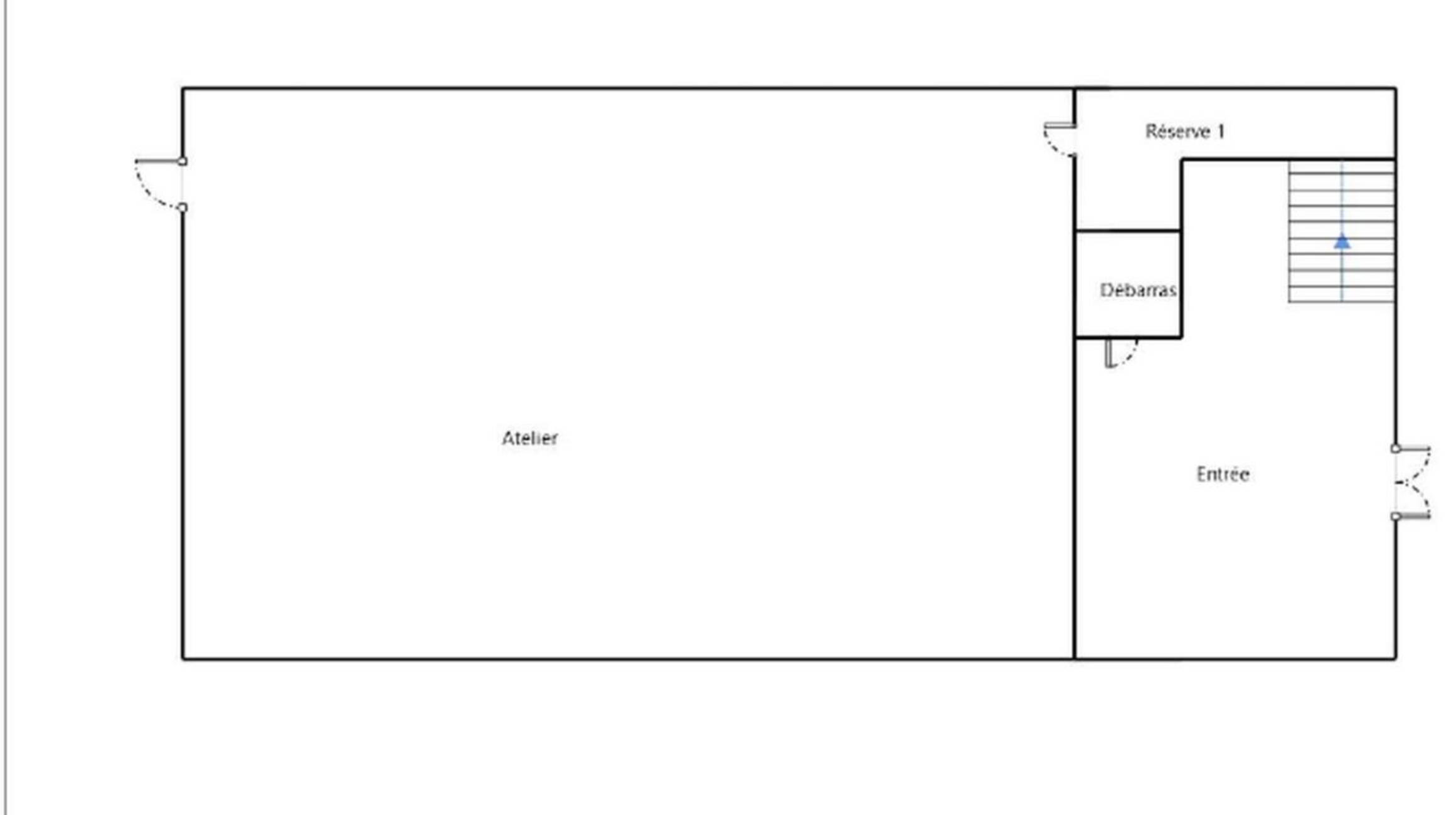
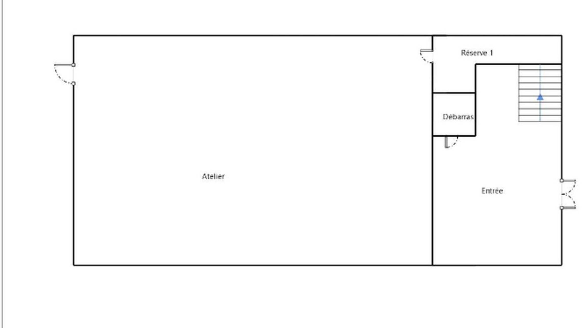
MALSH Realty vous propose à la vente ou à la location au sein d'un ensemble immobilier en copropriété à Fontaines-Saint-Martin, en limite directe de Caluire, Sathonay et Rillieux-la-Pape, un bâtiment indépendant mixte à usage d'activités et de bureaux d'une surface totale d'environ 755 m² comprenant 395 m² au RDC et 360 m² à l'étage. Ce bien dispose de 10 places de stationnement privatives.
Prestations du bien
- Ossature et planchers béton
- Couverture : bac acier
- Menuiseries métalliques double vitrage
- Éclairage type néons
- Chauffage mixte (électrique + aérothermes gaz anciens)
- Accès R+1 via escalier intérieur
- Bureaux
- Open-space
- Salle de pause
- Réserve
- Sanitaires
- Volumes importants, nombreux postes d'aménagement possibles
- Stationnements : 10 places de parking privatives
- Immeuble indépendant
Informations financières
- Bail : commercial 3-6-9 ans
- Informations location :
Conditions particulières à la vente : Bien vendu en l'état, rafraîchissements à prévoir
Conditions particulières à la location : Travaux à prévoir selon projet utilisateur
- Dépôt de garantie : 3 mois de loyer HT/HC
Ce local professionnel vous est présenté par
Vous souhaitez nous joindre ?
Surfaces des locaux
| Étage | Bâtiment | Type | Surfaces | Disponibilité | Loyer | Charges | Honoraires | Fiscal | Bail | Révision annuelle | Prix | Charges | Honoraires | Fiscal | Paiement Loyer | lot | Coworking | |
|---|---|---|---|---|---|---|---|---|---|---|---|---|---|---|---|---|---|---|
| R+1 | Bureaux | 360 | 15 % HT du loyer annuel HT/HC à la charge du preneur, payables à la signature du bail | T.V.A. (20%) | ILAT Indice des Loyers des Activités Tertiaires | 4 % HT du prix de vente HDE, à la charge de l'acquéreur, payables à la signature de l'acte | Droits d'enregistrement | Trimestriel d'avance | ||||||||||
| RDC | Activités | 395 | 15 % HT du loyer annuel HT/HC à la charge du preneur, payables à la signature du bail | T.V.A. (20%) | ILAT Indice des Loyers des Activités Tertiaires | 4 % HT du prix de vente HDE, à la charge de l'acquéreur, payables à la signature de l'acte | Droits d'enregistrement | Trimestriel d'avance | ||||||||||
| Parkings | - | 15 % HT du loyer annuel HT/HC à la charge du preneur, payables à la signature du bail | T.V.A. (20%) | ILAT Indice des Loyers des Activités Tertiaires | 4 % HT du prix de vente HDE, à la charge de l'acquéreur, payables à la signature de l'acte | Droits d'enregistrement | Trimestriel d'avance | |||||||||||
| Total Cellule | Activités | 755 | Immédiate | 60,4 HT/HC/m²/an | 15 % HT du loyer annuel HT/HC à la charge du preneur, payables à la signature du bail | T.V.A. (20%) | commercial 3-6-9 ans | ILAT Indice des Loyers des Activités Tertiaires | 810,6 HDE/m² | 4 % HT du prix de vente HDE, à la charge de l'acquéreur, payables à la signature de l'acte | Droits d'enregistrement | Trimestriel d'avance | ||||||
| Total | 755 m² | |||||||||||||||||
| 10 Parkings ext. | ||||||||||||||||||
Localisation et accessibilité
- Bus: Bus TCL ligne 70
| Étage | Bâtiment | Type | Surfaces | Disponibilité | Loyer | Charges | Honoraires | Fiscal | Bail | Révision annuelle | Prix | Charges | Honoraires | Fiscal | Paiement Loyer | lot | Coworking | |
|---|---|---|---|---|---|---|---|---|---|---|---|---|---|---|---|---|---|---|
| R+1 | Bureaux | 360 | 15 % HT du loyer annuel HT/HC à la charge du preneur, payables à la signature du bail | T.V.A. (20%) | ILAT Indice des Loyers des Activités Tertiaires | 4 % HT du prix de vente HDE, à la charge de l'acquéreur, payables à la signature de l'acte | Droits d'enregistrement | Trimestriel d'avance | ||||||||||
| RDC | Activités | 395 | 15 % HT du loyer annuel HT/HC à la charge du preneur, payables à la signature du bail | T.V.A. (20%) | ILAT Indice des Loyers des Activités Tertiaires | 4 % HT du prix de vente HDE, à la charge de l'acquéreur, payables à la signature de l'acte | Droits d'enregistrement | Trimestriel d'avance | ||||||||||
| Parkings | - | 15 % HT du loyer annuel HT/HC à la charge du preneur, payables à la signature du bail | T.V.A. (20%) | ILAT Indice des Loyers des Activités Tertiaires | 4 % HT du prix de vente HDE, à la charge de l'acquéreur, payables à la signature de l'acte | Droits d'enregistrement | Trimestriel d'avance | |||||||||||
| Total Cellule | Activités | 755 | Immédiate | 60,4 HT/HC/m²/an | 15 % HT du loyer annuel HT/HC à la charge du preneur, payables à la signature du bail | T.V.A. (20%) | commercial 3-6-9 ans | ILAT Indice des Loyers des Activités Tertiaires | 810,6 HDE/m² | 4 % HT du prix de vente HDE, à la charge de l'acquéreur, payables à la signature de l'acte | Droits d'enregistrement | Trimestriel d'avance | ||||||
| Total | 755 m² | |||||||||||||||||
| 10 Parkings ext. | ||||||||||||||||||

































