Ref : 3448219770_TH
Location Local d'activités
LOCAL D'ACTIVITE - ENTREPOT A LOUER
Gallargues-le-Montueux (30660)
Loyer : 265 236 € / an
Surface 3 020 m²
Description du bien
Disponible à la location chez Thelene Entreprises :
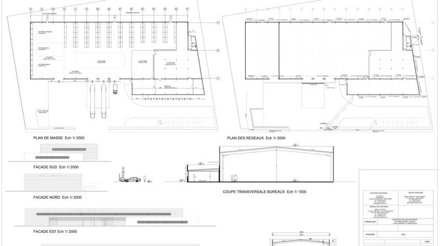
Local d'activité / entrepôt d'environ 3 020 m², composé de :
Activité : 2 175 m² avec portes sectionnelles de plain-pied et quais de déchargement
Bureaux : 305 m²
Salle de réunion : 181 m²
Mezzanine : 359 m²
Situé à Gallargues-le-Montueux, à proximité immédiate de l'autoroute A9 entre Nîmes et Montpellier, ce local bénéficie d'un accès rapide et pratique aux grands axes routiers, idéal pour les activités logistiques et industrielles.
Conditions financières :
Loyer mensuel : 22 105 Euros HT
Honoraires de commercialisations en sus : 15 % HT du loyer annuel HT.
Retrouvez l'ensemble de nos offres sur notre site : https://www.thelene-entreprises.com/
Les informations sur les risques auxquels ce bien est exposé sont disponibles sur le site Géorisques : www.georisques.gouv.fr
Prestations du bien
- Aire de manoeuvre
- Bureaux cloisonnés
- Parking Extérieur
- Salle de réunion
- Terrain bitumé
- Terrain clos
Ce local professionnel vous est présenté par
Vous souhaitez nous joindre ?
Localisation et accessibilité
- Autoroute: A9
Ces biens pourraient vous intéresser
| Batiment - Lot | Etage | Type | Surface | Loyer annuel | Charges annuelles | Parkings | Disponibilité |








































