Ref : 3448219844_TH
Location Local d'activités
LOCAL D'ACTIVITE A LOUER
Gallargues-le-Montueux (30660)
Loyer : 40 860 € / an
Surface 430 m²
Description du bien
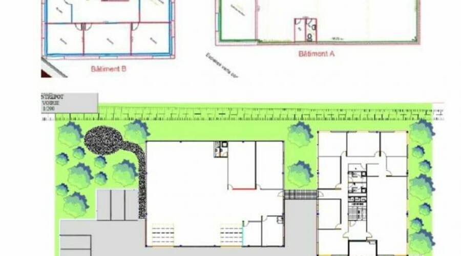
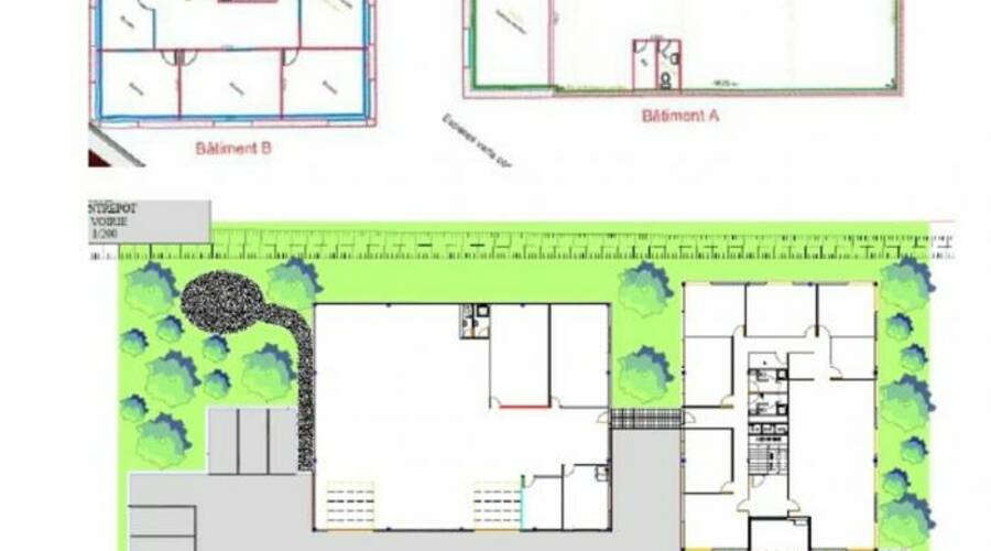
V9844 - GALLARGUES LE MONTUEUX - LOCATION - LOCAUX D'ACTIVITE - ENTREPOT - 430M²
A proximité de l'autoroute A9,
Thelene Entreprises vous propose à la location un bâtiment d'activité d'une superficie d'environ 430m², composé de :
Entrepôt : 430 m² :
Hauteur sous plafond : 5,00 m
2 portes sectionnelles automatiques (dimensions : 3 x 3,5 m)
1 bureau
1 salle de réunion
1 grand réfectoire équipé d'une cuisine
Sol en dalle 3,5 t
Éclairage LED
2 WC
Fenêtres de l'entrepôt sécurisées par barreaudage
Espaces extérieurs :
2 portails automatiques
23 places de parking disponibles
Site entièrement grillagé
Éclairage extérieur
Conditions financières :
Loyer : 95 Euros HT&HC/m²/an (honoraires de commercialisation en sus : 15% HT du loyer annuel HT)
Retrouvez l'ensemble de nos offres sur notre site : https://www.thelene-entreprises.com/
Les informations sur les risques auxquels ce bien est exposé sont disponibles sur le site Géorisques : www.georisques.gouv.fr
Prestations du bien
- Kitchenette
- Parking Extérieur
- Salle de repos
- Terrain bitumé
- Terrain clos
Informations financières
- Charges minimales : 3 010 €
- Bail : Commercial 3/6/9 ans
- Taxe foncière : 4 171 €
- Dépôt de garantie : 3 mois de loyer HT/HC
Ce local professionnel vous est présenté par
Vous souhaitez nous joindre ?
Localisation et accessibilité
- Autoroute: A9
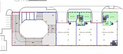
| Batiment - Lot | Etage | Type | Surface | Loyer annuel | Charges annuelles | Parkings | Disponibilité |





































