Ref : 92_0028_IN
Location Local d'activités
LOCAL D'ACTIVITE A LOUER
Gennevilliers (92230)
Loyer : 6 226 872 € / an
Surface 32 773 m²
Divisible dès 263 m²
Description du bien
INVEST CONSEIL vous propose à la location des bâtiments d'activités, en étages situé à GENNEVILLIERS, composé de :
- 3 bâtiments d'activités R+3
- Flexibilité sur le choix des surfaces proposéesLes + :
- Aux portes de Paris
- Situation prémium en bordure de Seine et des axes routiers
- Opportunité : rareté des offres neuves et qualitatives en première couronne
- Stationnement : le site dispose de son propre parking
Prestations du bien
- Aérothermes gaz
- Borne de rechargement électrique : oui
- Charge au sol : 1 T/m²
- Hauteur sous plafond : 6,5m (étages) à 7,5 m (RD
- Monte-charges : 2 de 1 000 kg
- Parkings 532VL+123 vélos+22 motos
- Accès aux véhicules utilitaires légers par rampes d'accès et de sortie de part et d'autre de l'ensemble immobilier
- Rampe d'accès aux étages :
- Inclinaison maximale : 12
- Rayon de giration : 14,4 m
- Largeur : 7 m
- La hauteur libre permet d'avoir un dernier plan de pose à 6 m et de faires d'éventuelles mezzanines d'activité.
- Apport de lumière naturelle dans les cellules d'activité pour postes de travail fixes.
- Circulation de poids lourds au RDC uniquement
- Un quai commun pour livraison
- Accès supérieur par véhicules utilitaires/voitures
- Arceau de protection à intégrer au pied des rampes
- Toitures terrasses végétalisées
- Charges au sol : réflexion à 2T/m² au RDC
Informations financières
- Bail : Commercial 6-9 ans
- Dépôt de garantie : 3 mois de loyer HT/HC
Ce local professionnel vous est présenté par
Vous souhaitez nous joindre ?
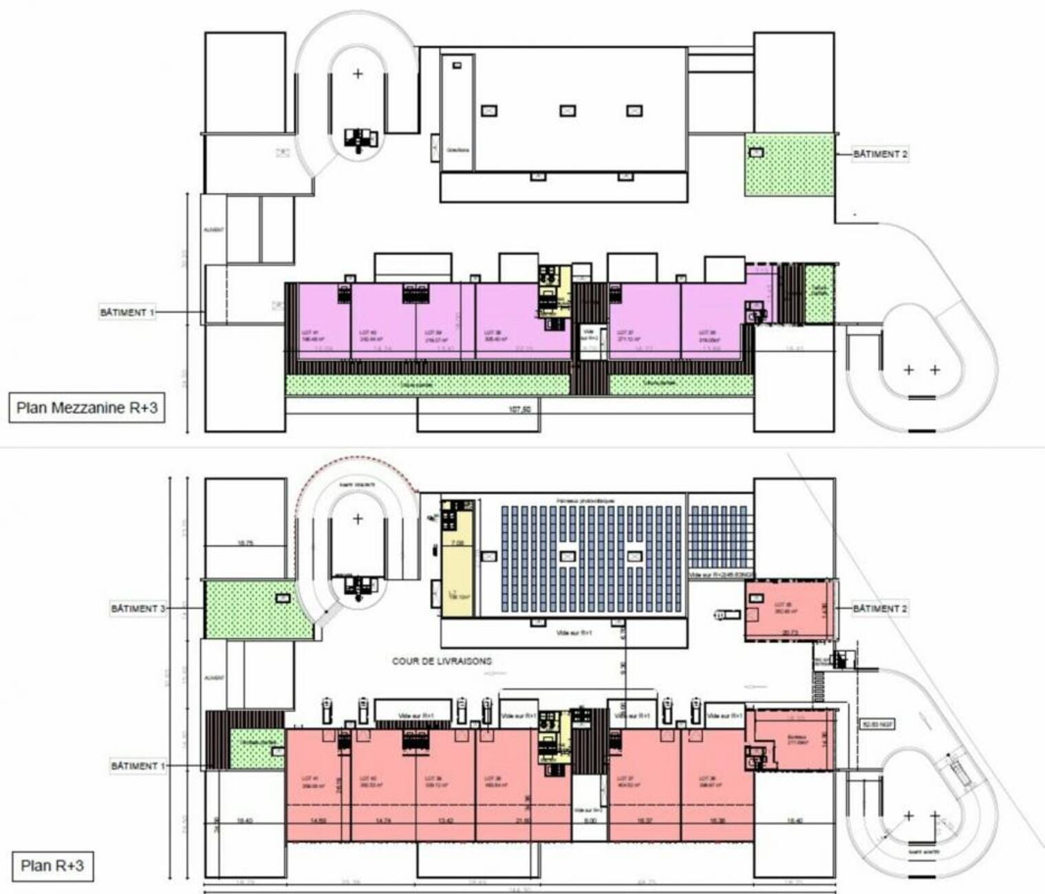
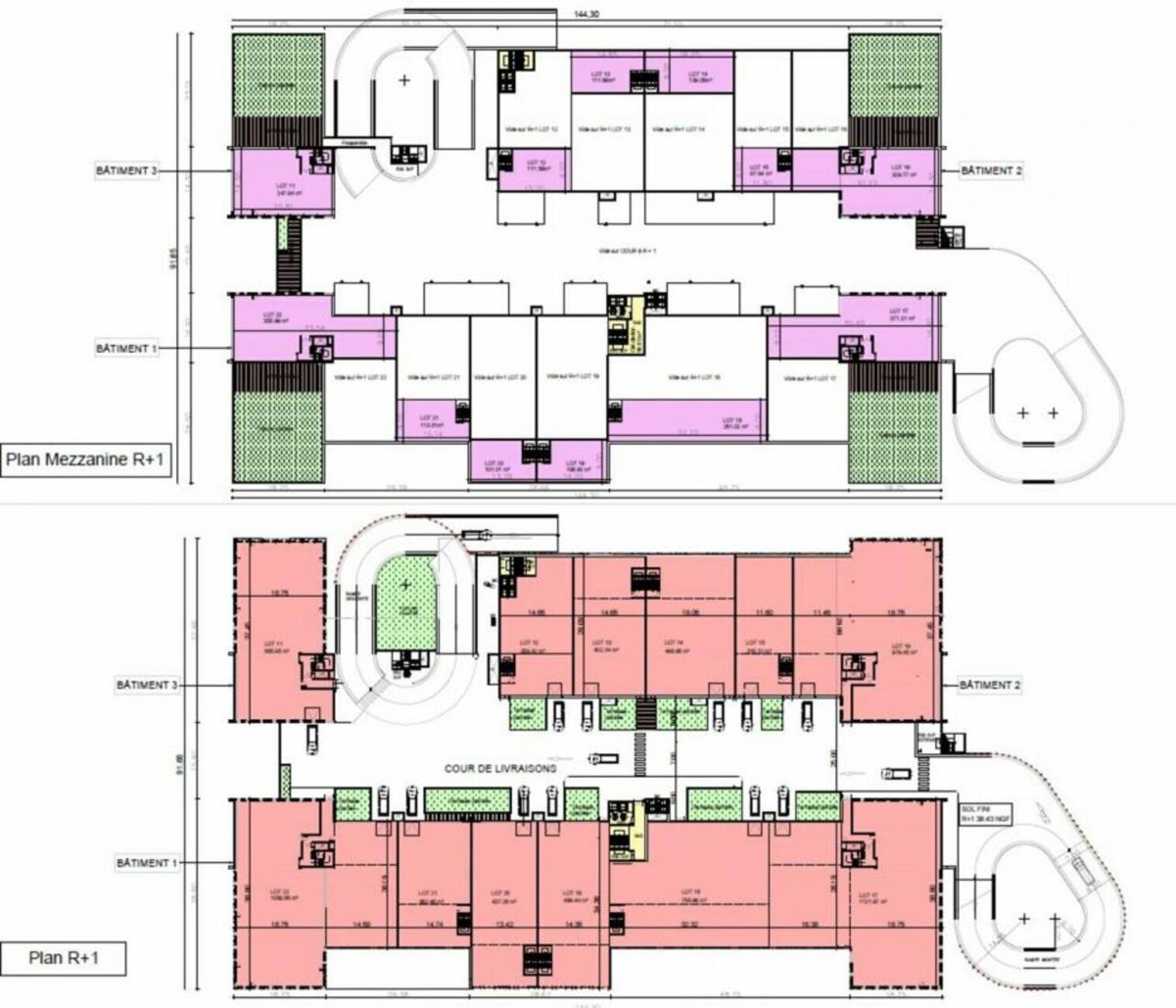
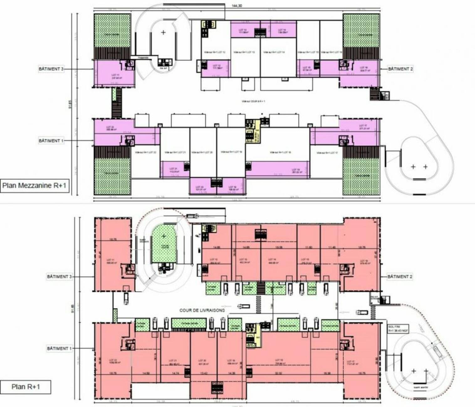
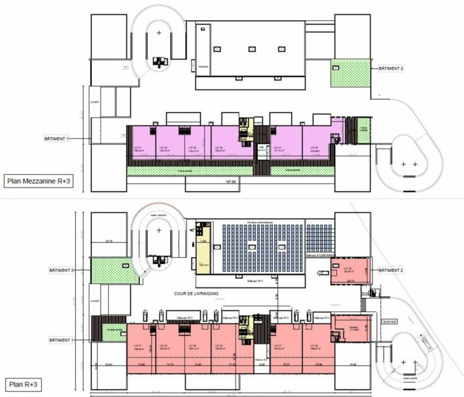
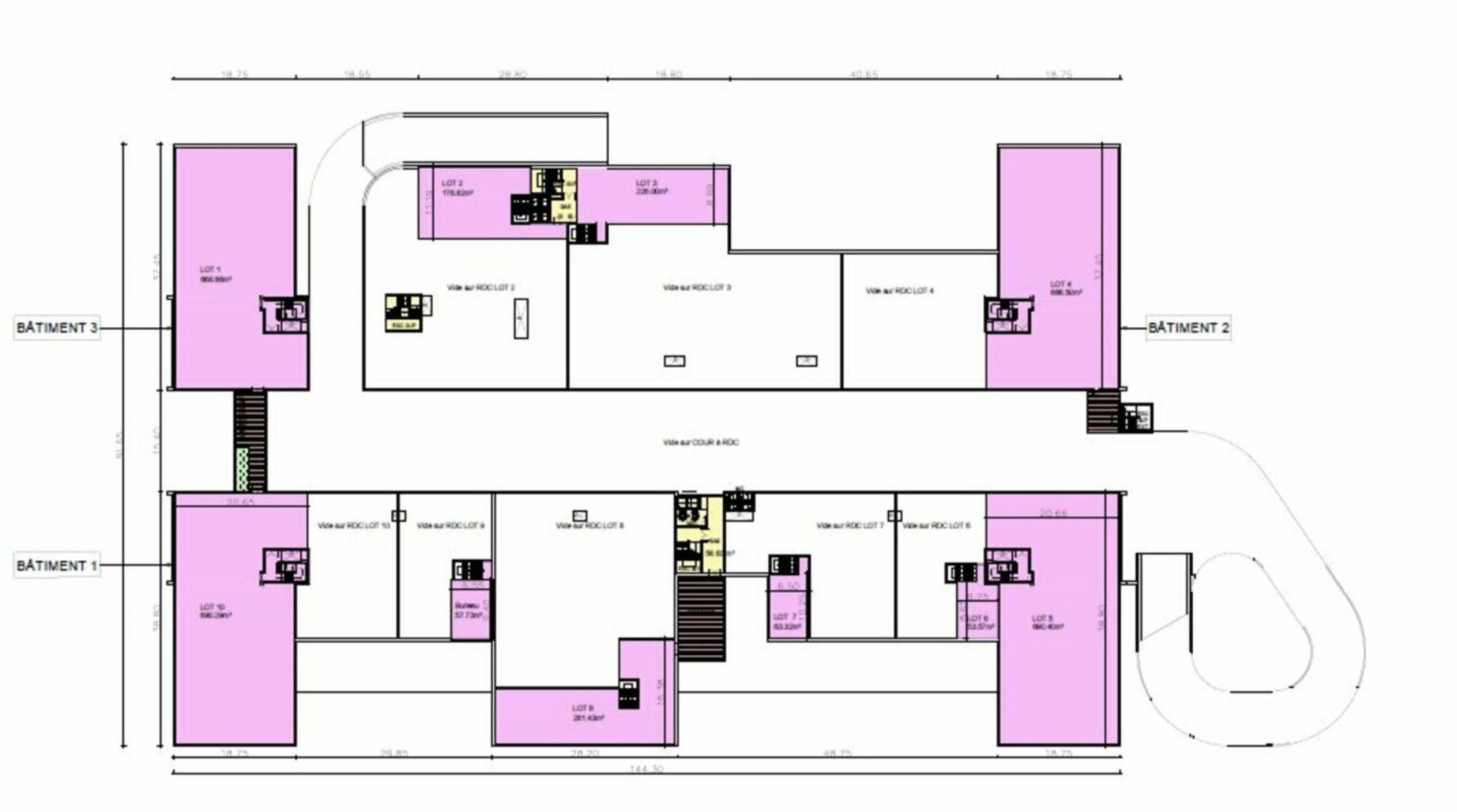
Surfaces des locaux
| Batiment - Lot | Etage | Type | Surface totale (en m2) | Emplacement(s) de parking | Loyer annuel HT/HC | Provision annuelle pour charges et taxes HT | Disponibilité |
| Bât 1 - Lot 5 à 10 | Activité : 3 838 m² - Mezzanine : 1 836 m² | Local d'activités (RDC) | 5 674 m² | en option | 200 €/m² | en cours de détermination | 1er trimestre 2026 |
| Bât 2 - Lot 2 à 4 | Activité : 3 020 m² - Mezzanine : 1 070 m² | Local d'activités (RDC) | 4 090 m² | en option | 200 €/m² | en cours de détermination | 1er trimestre 2026 |
| Bât 3 - Lot 1 | Activité : 669m² - Mezzanine : 669 m² | Local d'activités (RDC) | 1 338 m² | en option | 200 €/m² | en cours de détermination | 1er trimestre 2026 |
| Bât 1 - Lot 17 à 22 | Activité : 4 198 m² - Mezzanine : 1 311 m² | Local d'activités (R+1) | 5 509 m² | en option | 200 €/m² | en cours de détermination | 1er trimestre 2026 |
| Bât 2 - Lot 12 à 16 | Activité : 2 556 m² - Mezzanine : 781 m² | Local d'activités (R+1) | 3 337 m² | en option | 200 €/m² | en cours de détermination | 1er trimestre 2026 |
| Bât 3 - Lot 11 | Activité : 666 m² - Mezzanine : 248 m² | Local d'activités (R+1) | 914 m² | en option | 200 €/m² | en cours de détermination | 1er trimestre 2026 |
| Bât 1 - Lot 28 à 34 | Activité : 3 402 m² - Mezzanine : 1 054 m² | Local d'activités (R+2) | 4 456 m² | en option | 190 €/m² | en cours de détermination | 1er trimestre 2026 |
| Bât 2 - Lot 24 à 27 | Activité : 1 726 m² - Mezzanine : 690 m² | Local d'activités (R+2) | 2 416 m² | en option | 190 €/m² | en cours de détermination | 1er trimestre 2026 |
| Bât 3 - Lot 23 | Activité : 248 m² - Mezzanine : 248 m² | Local d'activités (R+2) | 496 m² | en option | 190 €/m² | en cours de détermination | 1er trimestre 2026 |
| Bât 1 - Lot 36 à 41 | Activité : 2 553 m² - Mezzanine : 1 727 m² | Local d'activités (R+3) | 4 280 m² | en option | 200 €/m² | en cours de détermination | 1er trimestre 2026 |
| Bât 2 - Lot 35 | Activité : 263 m² | Local d'activités (R+3) | 263 m² | en option | 200 €/m² | en cours de détermination | 1er trimestre 2026 |
Localisation et accessibilité
- Bus: RER C - Gare de "Gennevilliers"
BUS 238, 166
T1 - Autoroute: D911 / N310 / A15 / A86
| Batiment - Lot | Etage | Type | Surface totale (en m2) | Emplacement(s) de parking | Loyer annuel HT/HC | Provision annuelle pour charges et taxes HT | Disponibilité |
| Bât 1 - Lot 5 à 10 | Activité : 3 838 m² - Mezzanine : 1 836 m² | Local d'activités (RDC) | 5 674 m² | en option | 200 €/m² | en cours de détermination | 1er trimestre 2026 |
| Bât 2 - Lot 2 à 4 | Activité : 3 020 m² - Mezzanine : 1 070 m² | Local d'activités (RDC) | 4 090 m² | en option | 200 €/m² | en cours de détermination | 1er trimestre 2026 |
| Bât 3 - Lot 1 | Activité : 669m² - Mezzanine : 669 m² | Local d'activités (RDC) | 1 338 m² | en option | 200 €/m² | en cours de détermination | 1er trimestre 2026 |
| Bât 1 - Lot 17 à 22 | Activité : 4 198 m² - Mezzanine : 1 311 m² | Local d'activités (R+1) | 5 509 m² | en option | 200 €/m² | en cours de détermination | 1er trimestre 2026 |
| Bât 2 - Lot 12 à 16 | Activité : 2 556 m² - Mezzanine : 781 m² | Local d'activités (R+1) | 3 337 m² | en option | 200 €/m² | en cours de détermination | 1er trimestre 2026 |
| Bât 3 - Lot 11 | Activité : 666 m² - Mezzanine : 248 m² | Local d'activités (R+1) | 914 m² | en option | 200 €/m² | en cours de détermination | 1er trimestre 2026 |
| Bât 1 - Lot 28 à 34 | Activité : 3 402 m² - Mezzanine : 1 054 m² | Local d'activités (R+2) | 4 456 m² | en option | 190 €/m² | en cours de détermination | 1er trimestre 2026 |
| Bât 2 - Lot 24 à 27 | Activité : 1 726 m² - Mezzanine : 690 m² | Local d'activités (R+2) | 2 416 m² | en option | 190 €/m² | en cours de détermination | 1er trimestre 2026 |
| Bât 3 - Lot 23 | Activité : 248 m² - Mezzanine : 248 m² | Local d'activités (R+2) | 496 m² | en option | 190 €/m² | en cours de détermination | 1er trimestre 2026 |
| Bât 1 - Lot 36 à 41 | Activité : 2 553 m² - Mezzanine : 1 727 m² | Local d'activités (R+3) | 4 280 m² | en option | 200 €/m² | en cours de détermination | 1er trimestre 2026 |
| Bât 2 - Lot 35 | Activité : 263 m² | Local d'activités (R+3) | 263 m² | en option | 200 €/m² | en cours de détermination | 1er trimestre 2026 |






































