Ref : 95_0512_IN
Location Local d'activités
LOCAL D'ACTIVITE A LOUER
Groslay (95410)
Loyer : 28 860 € / an
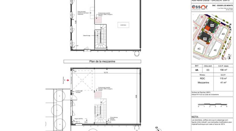
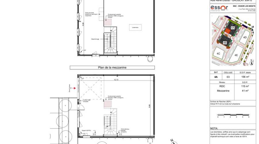
Surface 156 m²
Description du bien
INVEST CONSEIL vous propose à la location un local neuf, polyvalent situé à GROSLAY.
Dynamisez votre activité dans un local de 156 m² !
Prestations du bien
- Accès de plain pied
- Accès poids lourds
- Bardage double peau
- Espaces verts
- Hauteur sous plafond : 7,5 m
- Parkings 2/lot
- Porte sectionnelle
- Puissance électrique : 380 V
- Revêtement sol dalle béton
- Toiture bac acier
- Mezzanine brute
Informations financières
- Charges minimales : 2 340 €
- Bail : Commercial 3-6-9 ans
- Taxe foncière : 1 501 €
- Dépôt de garantie : 3 mois de loyer HT/HC
Ce local professionnel vous est présenté par
Vous souhaitez nous joindre ?
Localisation et accessibilité
- Bus: Ligne H - Gare de "Groslay"
- Autoroute: RN1 / A16 / N184
Ces biens pourraient vous intéresser
| Batiment - Lot | Etage | Type | Surface totale (en m2) | Emplacement(s) de parking | Loyer annuel HT/HC | Provision annuelle pour charges et taxes HT | Disponibilité |
| Lot 4A03 | Local d'activités / Bureaux | 156 | 2 places | 28 860,00 € | 3 841,00 € | immédiate | |
| RDC | Activités | 115 | |||||
| R+1 | Bureaux | 41 |































