Ref : 1438556-0L_MA
Location Local d'activités
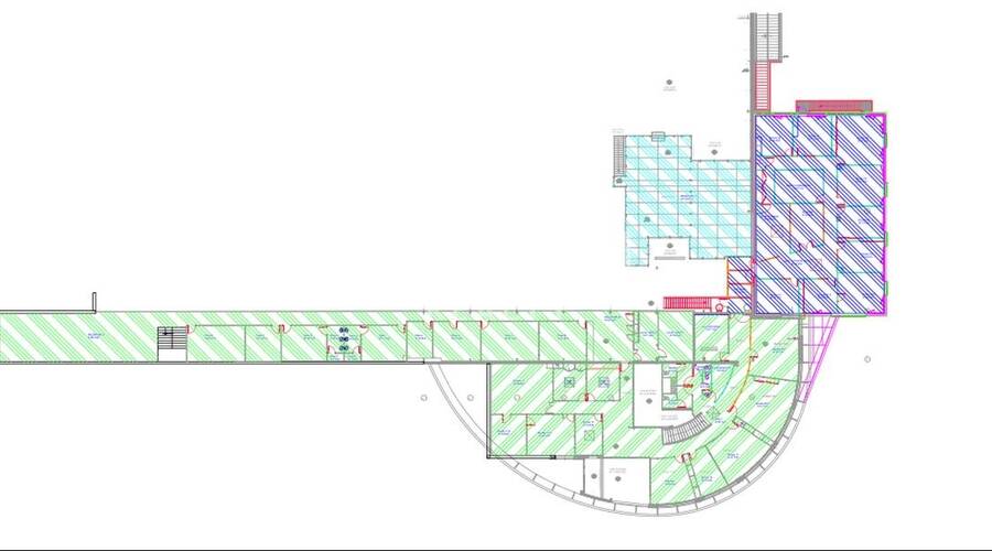
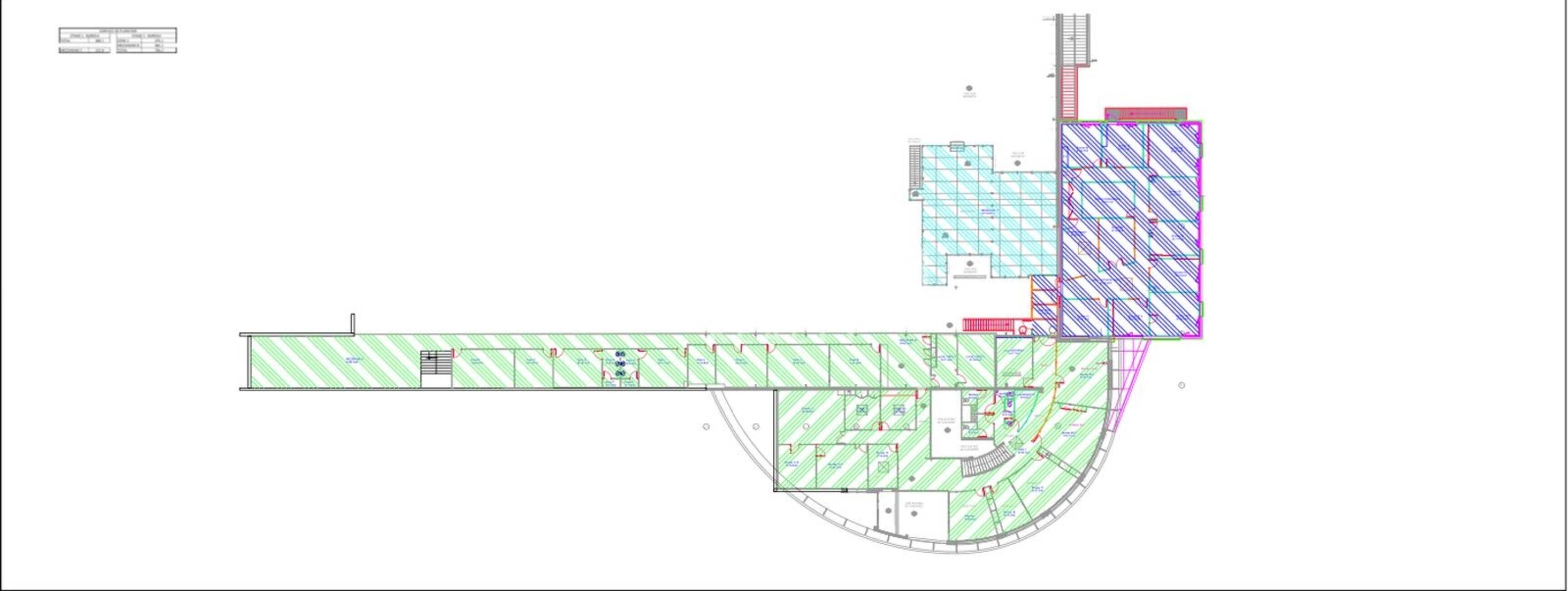
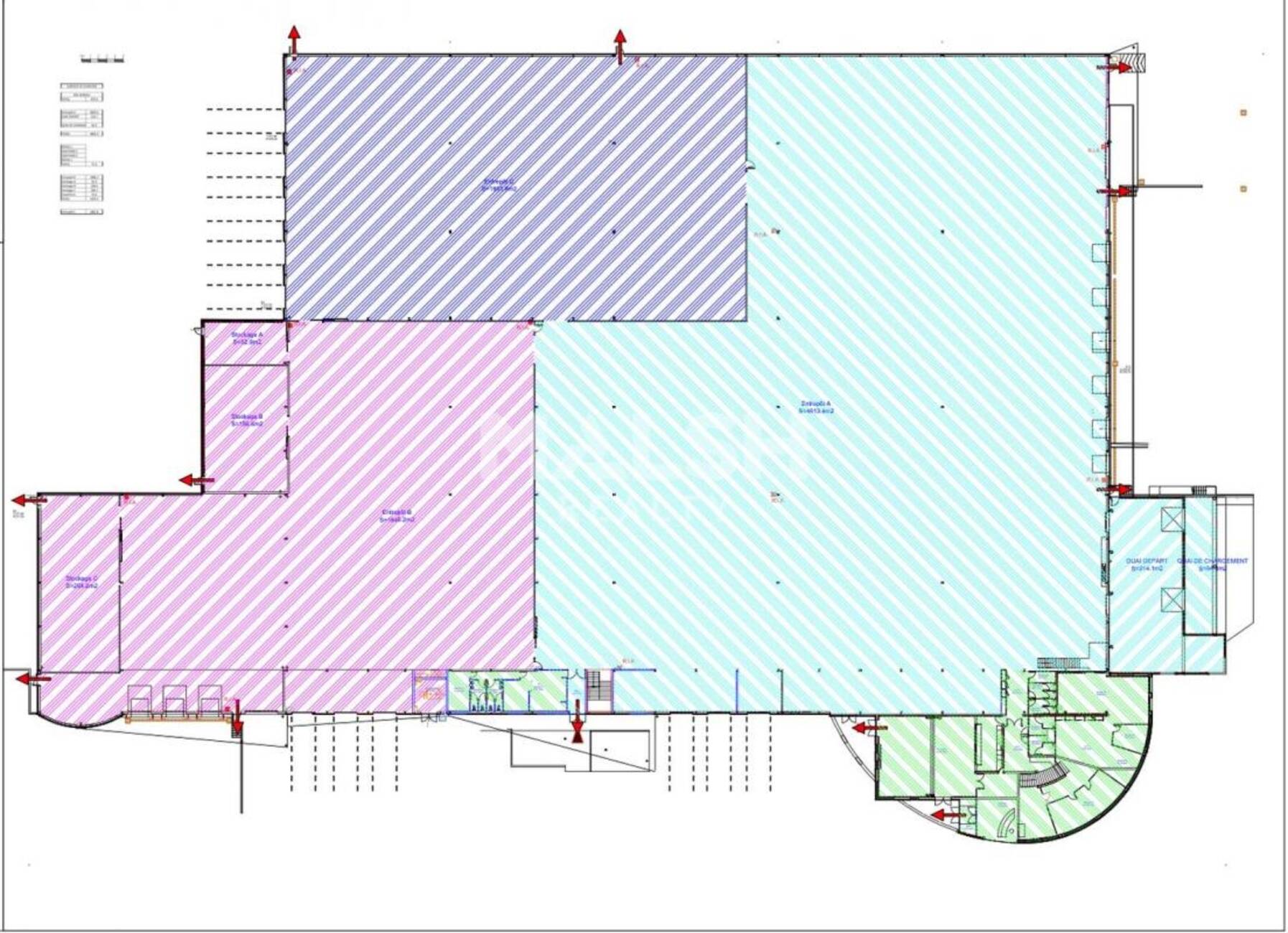
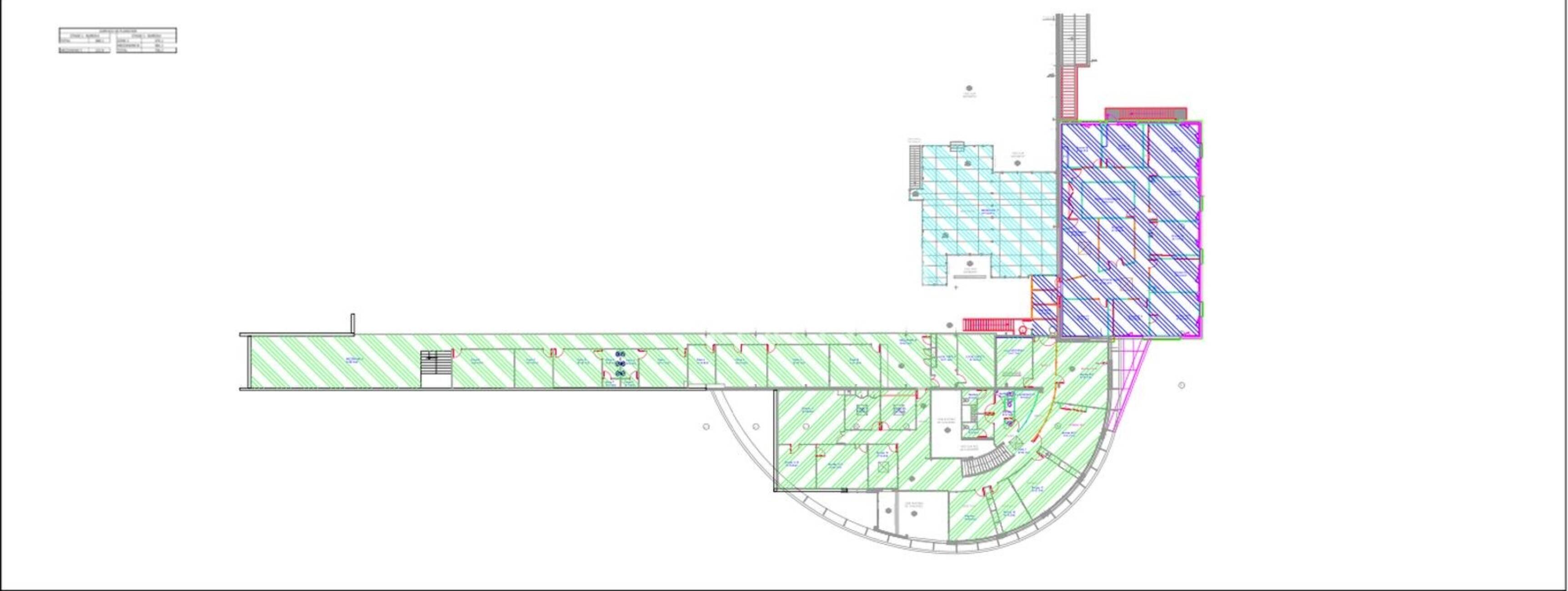
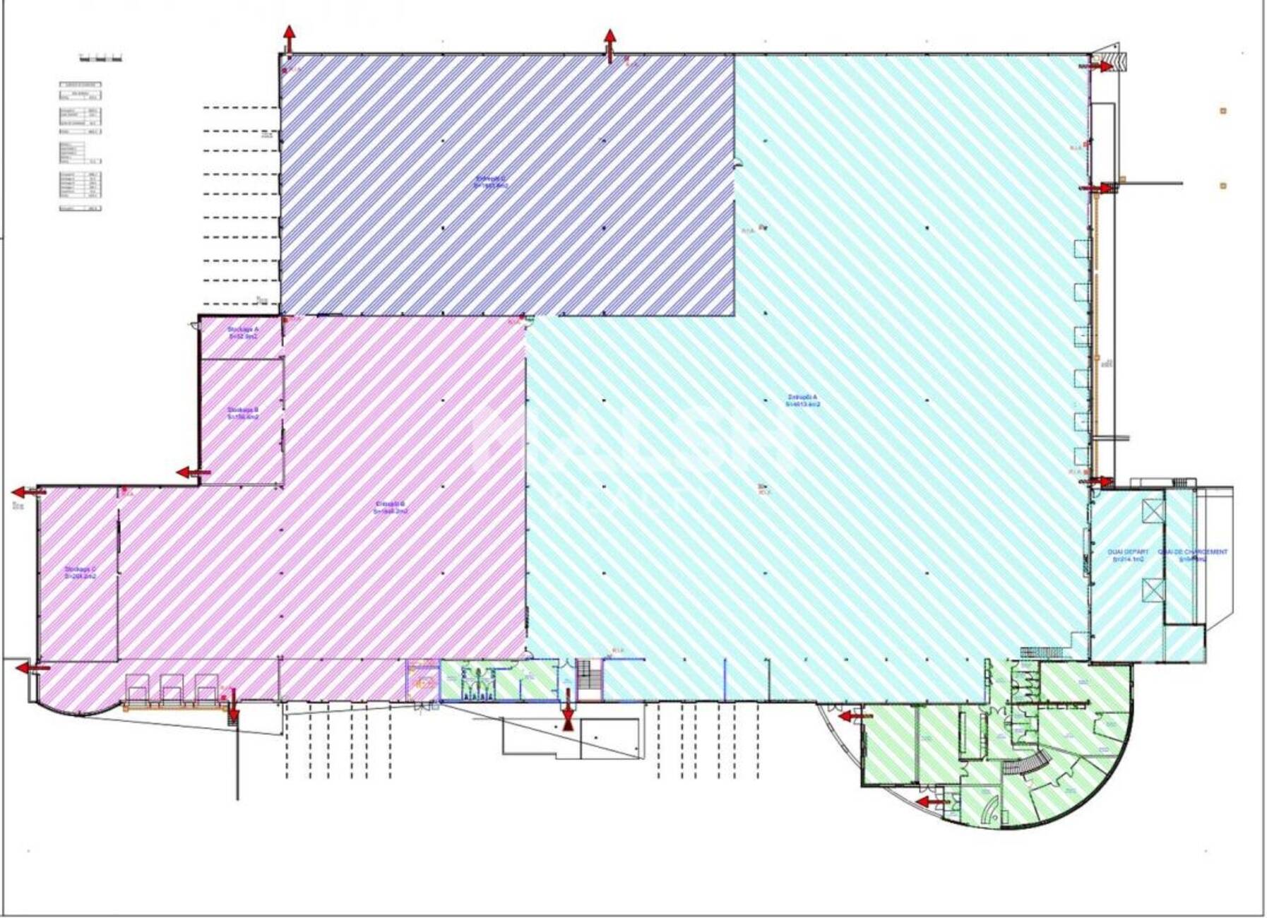
Location Bâtiment d'activités - Miribel (01700) - 10 746 m² divisible à partir de 1 778 m²
Miribel (01700)
Loyer : 1 185 036 € / an
Surface 10 773 m²
Divisible dès 1 778 m²
Description du bien
MALSH Realty vous propose à la location à Miribel, un bâtiment d'activités d'une surface totale d'environ 10 746 m² divisibles en 3 lots à partir de 1 778 m². Ces locaux disposent de nombreuses portes à quai et de portes sectionnelles motorisées et d'une belle hauteur d'environ 8,50 m. Idéalement situé à 100 m de l'A432 et de l'A46.
Prestations du bien
- Bâtiment certifié ICPE 1510
- Deux accès distincts pour VL et PL
- Aires de manoeuvre et parking poids lourds
- 12 portes sectionnelles motorisées
- 7 quais PL, 4 quais VUL, 4 quais VL
- Local vélos
- Parkings extérieurs, dont bornes de recharge pour véhicules électriques
- Charpente métallique
- Hauteur libre entre 8,50 m et 8,80 m
- Hauteur la plus basse : 4,70 m
- Structure : bardage double peau
- Couverture : bac acier
- Sol : dalle industrielle
- Triphasé
- RIA : site entièrement équipé
- Vestiaires et sanitaires
- Local de charge
- Chauffage : radiants gaz + aérothermes gaz
- Bureaux cloisonnés sur deux niveaux
- Hall d'accueil
- Cuisine / réfectoire
- Sanitaires hommes/femmes
- Hall accueillant
- Faux plafond + pavés LED
- Moquette au sol
- Fibre optique
- Alarme anti-intrusion
- Chauffage électrique (panneaux rayonnants périphériques)
- Climatisation réversible
- Immeuble indépendant
- Surface terrain : 21054
Informations financières
- Bail : commercial 3-6-9 ans
- Dépôt de garantie : 3 mois de loyer HT/HC
Ce local professionnel vous est présenté par
Vous souhaitez nous joindre ?
Surfaces des locaux
| Étage | Bâtiment | Type | Surfaces | Disponibilité | Loyer | Charges | Honoraires | Fiscal | Bail | Révision annuelle | Prix | Charges | Honoraires | Fiscal | Paiement Loyer | lot | Coworking | |
|---|---|---|---|---|---|---|---|---|---|---|---|---|---|---|---|---|---|---|
| Activités | 2 360 | 15 % HT du loyer annuel HT/HC à la charge du preneur, payables à la signature du bail | T.V.A. (20%) | ILAT Indice des Loyers des Activités Tertiaires | Trimestriel d'avance | |||||||||||||
| Bureaux | 347 | 15 % HT du loyer annuel HT/HC à la charge du preneur, payables à la signature du bail | T.V.A. (20%) | ILAT Indice des Loyers des Activités Tertiaires | Trimestriel d'avance | |||||||||||||
| Total Cellule A | Activités | 2 707 | Après accord | 110 HT/HC/m²/an | 15 % HT du loyer annuel HT/HC à la charge du preneur, payables à la signature du bail | T.V.A. (20%) | commercial 3-6-9 ans | ILAT Indice des Loyers des Activités Tertiaires | Trimestriel d'avance | A | ||||||||
| Activités | 4 853 | 15 % HT du loyer annuel HT/HC à la charge du preneur, payables à la signature du bail | T.V.A. (20%) | ILAT Indice des Loyers des Activités Tertiaires | Trimestriel d'avance | |||||||||||||
| Bureaux | 1 435 | 15 % HT du loyer annuel HT/HC à la charge du preneur, payables à la signature du bail | T.V.A. (20%) | ILAT Indice des Loyers des Activités Tertiaires | Trimestriel d'avance | |||||||||||||
| Total Cellule B | Activités | 6 288 | Après accord | 110 HT/HC/m²/an | 15 % HT du loyer annuel HT/HC à la charge du preneur, payables à la signature du bail | T.V.A. (20%) | commercial 3-6-9 ans | ILAT Indice des Loyers des Activités Tertiaires | Trimestriel d'avance | B | ||||||||
| Activités | 1 612 | 15 % HT du loyer annuel HT/HC à la charge du preneur, payables à la signature du bail | T.V.A. (20%) | ILAT Indice des Loyers des Activités Tertiaires | Trimestriel d'avance | |||||||||||||
| Bureaux | 166 | 15 % HT du loyer annuel HT/HC à la charge du preneur, payables à la signature du bail | T.V.A. (20%) | ILAT Indice des Loyers des Activités Tertiaires | Trimestriel d'avance | |||||||||||||
| Total Cellule C | Activités | 1 778 | Après accord | 110 HT/HC/m²/an | 15 % HT du loyer annuel HT/HC à la charge du preneur, payables à la signature du bail | T.V.A. (20%) | commercial 3-6-9 ans | ILAT Indice des Loyers des Activités Tertiaires | Trimestriel d'avance | C | ||||||||
| Total | 10 773 m² |
Localisation et accessibilité
- SCNF: Gare TER Les Echets à 5 min. Gare TGV Lyon Part-Dieu à 30 min
- Autoroute: A proximité immédiate des autoroutes A432 et A46 (Rocade Est)
Ces biens pourraient vous intéresser
| Étage | Bâtiment | Type | Surfaces | Disponibilité | Loyer | Charges | Honoraires | Fiscal | Bail | Révision annuelle | Prix | Charges | Honoraires | Fiscal | Paiement Loyer | lot | Coworking | |
|---|---|---|---|---|---|---|---|---|---|---|---|---|---|---|---|---|---|---|
| Activités | 2 360 | 15 % HT du loyer annuel HT/HC à la charge du preneur, payables à la signature du bail | T.V.A. (20%) | ILAT Indice des Loyers des Activités Tertiaires | Trimestriel d'avance | |||||||||||||
| Bureaux | 347 | 15 % HT du loyer annuel HT/HC à la charge du preneur, payables à la signature du bail | T.V.A. (20%) | ILAT Indice des Loyers des Activités Tertiaires | Trimestriel d'avance | |||||||||||||
| Total Cellule A | Activités | 2 707 | Après accord | 110 HT/HC/m²/an | 15 % HT du loyer annuel HT/HC à la charge du preneur, payables à la signature du bail | T.V.A. (20%) | commercial 3-6-9 ans | ILAT Indice des Loyers des Activités Tertiaires | Trimestriel d'avance | A | ||||||||
| Activités | 4 853 | 15 % HT du loyer annuel HT/HC à la charge du preneur, payables à la signature du bail | T.V.A. (20%) | ILAT Indice des Loyers des Activités Tertiaires | Trimestriel d'avance | |||||||||||||
| Bureaux | 1 435 | 15 % HT du loyer annuel HT/HC à la charge du preneur, payables à la signature du bail | T.V.A. (20%) | ILAT Indice des Loyers des Activités Tertiaires | Trimestriel d'avance | |||||||||||||
| Total Cellule B | Activités | 6 288 | Après accord | 110 HT/HC/m²/an | 15 % HT du loyer annuel HT/HC à la charge du preneur, payables à la signature du bail | T.V.A. (20%) | commercial 3-6-9 ans | ILAT Indice des Loyers des Activités Tertiaires | Trimestriel d'avance | B | ||||||||
| Activités | 1 612 | 15 % HT du loyer annuel HT/HC à la charge du preneur, payables à la signature du bail | T.V.A. (20%) | ILAT Indice des Loyers des Activités Tertiaires | Trimestriel d'avance | |||||||||||||
| Bureaux | 166 | 15 % HT du loyer annuel HT/HC à la charge du preneur, payables à la signature du bail | T.V.A. (20%) | ILAT Indice des Loyers des Activités Tertiaires | Trimestriel d'avance | |||||||||||||
| Total Cellule C | Activités | 1 778 | Après accord | 110 HT/HC/m²/an | 15 % HT du loyer annuel HT/HC à la charge du preneur, payables à la signature du bail | T.V.A. (20%) | commercial 3-6-9 ans | ILAT Indice des Loyers des Activités Tertiaires | Trimestriel d'avance | C | ||||||||
| Total | 10 773 m² |






























































