Ref : 92_0030_IN
Location Local d'activités
LOCAL D'ACTIVITE A LOUER
Nanterre (92000)
Loyer : 831 564 € / an
Surface 5 435 m²
Divisible dès 330 m²
Description du bien
INVEST CONSEIL vous propose à la location un immeuble d'activité composé de 9 lots de 330 m² à 1 298 m² situés a coeur du Parc Eiffel à NANTERRE.
Les + :
- Immeuble d'activité nouvelle génération
- Situation en bordure de l'A86
- 3 lots par niveau répartis
- BREEAM EXCELLENT
- A 10 mn de La Défense
- Nombreux services dans le parc EIFFEL
Prestations du bien
- Aérothermes électriques
- Ascenseur
- Borne de rechargement électrique : 27
- Charge au sol : 1T à 3T/m²
- Climatisation réversible
- Eclairage LED
- Faux plafond
- Goulotte technique
- Label BREEAM Excellent
- Monte-charges : de 1 275 kg
- Panneaux photovoltaiques
- Parkings 49
- Revêtement sol en moquette
- Revêtement sol quartzé
- Salle de réunion
- Sanitaires communs
- Tarif jaune
- Rampe d'accès pour les étages pente 7%, hauteur libre
- RDC : maximum 7,60 ml (l) R+1 : 3,5 m (l) R+2 : 3,2 m (l)
- Surcharge au sol en R+1 : 1,5T/m² en R+2 : 750 kg/m²
- Accès camions :
- RDC : portes levantes L x H = 4m x 4,2m
- R+1 : portes levantes L x H = 2m x 2m
- Accès R+2 : portes sectionnelles l x H : 2m x 2m
Informations financières
- Charges minimales : 141 310 €
- Bail : Commercial 3-6-9 ans
- Taxe foncière : 20 €
- Dépôt de garantie : 3 mois de loyer HT/HC
Ce local professionnel vous est présenté par
Vous souhaitez nous joindre ?
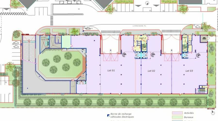
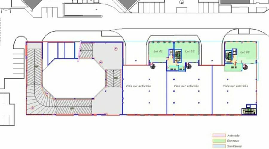
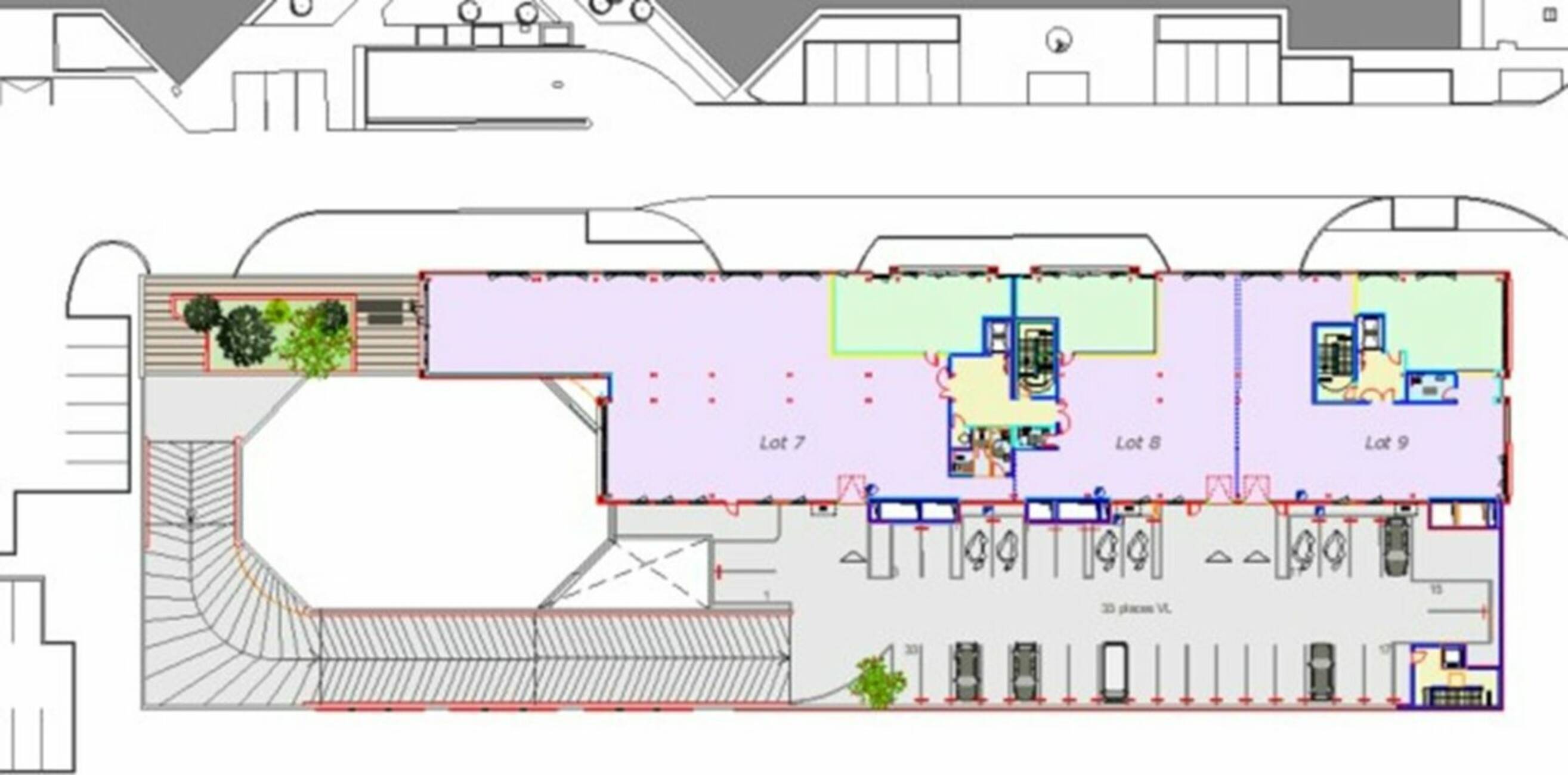
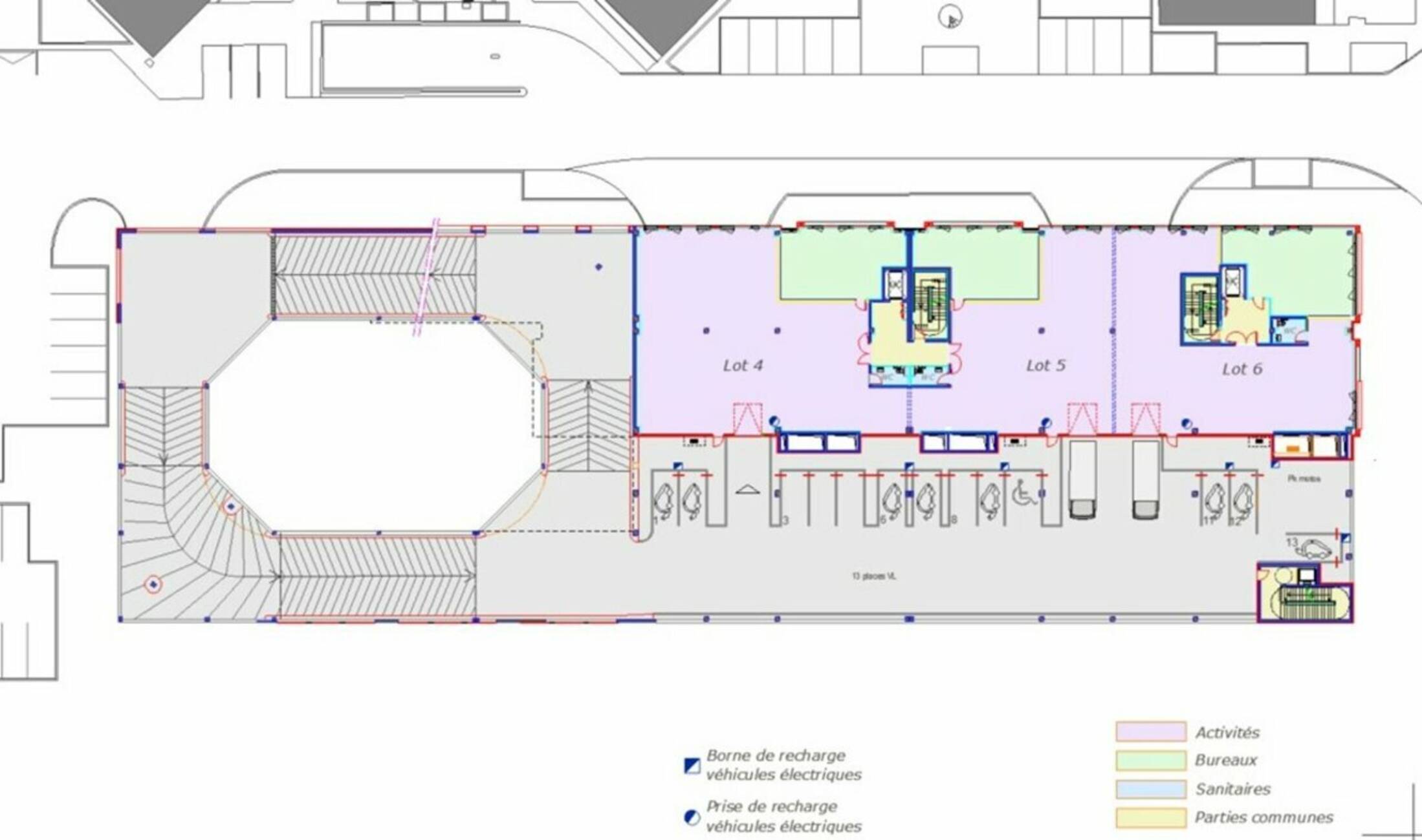
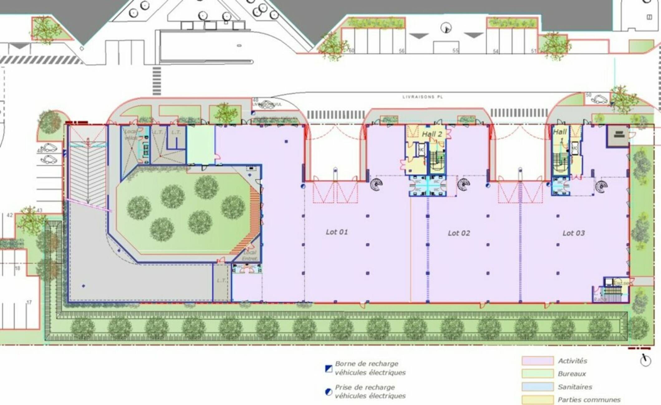
Surfaces des locaux
| Batiment - Lot | Etage | Type | Surface totale (en m2) | Emplacement(s) de parking | Loyer annuel HT/HC | Provision annuelle pour charges et taxes HT | Disponibilité |
| Lot 1 | RDC : 1 132 m² + 46 m² - Mezzanine : 121 m² | Local d'activités / Bureaux | 1 298 | en option | 221 500,00 € | 60 486,80 € | immédiate |
| Lot 2 | RDC : 558 m² - Mezzanine : 116 m² | Local d'activités / Bureaux | 674 | en option | 116 000,00 € | 31 408,40 € | immédiate |
| Lot 3 | RDC : 645 m² - Mezzanine : 156 m² | Local d'activités / Bureaux | 801 | en option | 138 000,00 € | 37 326,60 € | immédiate |
| Lot 4 | R+1 : 384 m² + 73 m² | Local d'activités / Bureaux | 457 | en option | 69 500,00 € | 21 296,20 € | immédiate |
| Lot 5 | R+1 : 259 m² + 71 m² | Local d'activités / Bureaux | 330 | en option | 50 500,00 € | 15 378,00 € | immédiate |
| Lot 6 | R+1 : 299 m² + 93 m² | Local d'activités / Bureaux | 392 | en option | 60 000,00 € | 18 267,20 € | immédiate |
| Lot 7 (terrasse privative de 80 m²) | R+2 : 660 m² + 97 m² | Local d'activités / Bureaux | 757 | en option | 117 000,00 € | 35 276,20 € | immédiate |
| Lot 8 | R+2 : 258 m² + 71 m² | Local d'activités / Bureaux | 329 | en option | 47 500,00 € | 15 331,40 € | immédiate |
| Lot 9 | R+2 : 303 m² + 95 m² | Local d'activités / Bureaux | 398 | en option | 58 000,00 € | 18 546,80 € | immédiate |
Localisation et accessibilité
- Bus: RER A / Ligne SNCF
Nombreuses lignes de bus - Autoroute: A86 / A
Ces biens pourraient vous intéresser
| Batiment - Lot | Etage | Type | Surface totale (en m2) | Emplacement(s) de parking | Loyer annuel HT/HC | Provision annuelle pour charges et taxes HT | Disponibilité |
| Lot 1 | RDC : 1 132 m² + 46 m² - Mezzanine : 121 m² | Local d'activités / Bureaux | 1 298 | en option | 221 500,00 € | 60 486,80 € | immédiate |
| Lot 2 | RDC : 558 m² - Mezzanine : 116 m² | Local d'activités / Bureaux | 674 | en option | 116 000,00 € | 31 408,40 € | immédiate |
| Lot 3 | RDC : 645 m² - Mezzanine : 156 m² | Local d'activités / Bureaux | 801 | en option | 138 000,00 € | 37 326,60 € | immédiate |
| Lot 4 | R+1 : 384 m² + 73 m² | Local d'activités / Bureaux | 457 | en option | 69 500,00 € | 21 296,20 € | immédiate |
| Lot 5 | R+1 : 259 m² + 71 m² | Local d'activités / Bureaux | 330 | en option | 50 500,00 € | 15 378,00 € | immédiate |
| Lot 6 | R+1 : 299 m² + 93 m² | Local d'activités / Bureaux | 392 | en option | 60 000,00 € | 18 267,20 € | immédiate |
| Lot 7 (terrasse privative de 80 m²) | R+2 : 660 m² + 97 m² | Local d'activités / Bureaux | 757 | en option | 117 000,00 € | 35 276,20 € | immédiate |
| Lot 8 | R+2 : 258 m² + 71 m² | Local d'activités / Bureaux | 329 | en option | 47 500,00 € | 15 331,40 € | immédiate |
| Lot 9 | R+2 : 303 m² + 95 m² | Local d'activités / Bureaux | 398 | en option | 58 000,00 € | 18 546,80 € | immédiate |




























