Ref : 1263117-0L_MA
Location Local d'activités
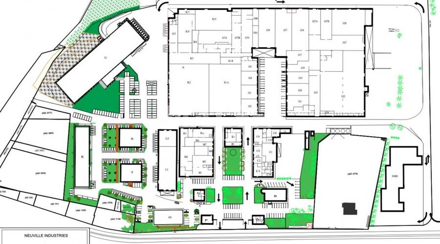
Location Locaux d'Activités - Neuville sur Saône (69250) - 2300 m² divisibles à partir de 55 m²
Neuville-sur-Saône (69250)
Loyer : 31 008 € / an
Surface 452 m²
Divisible dès 200 m²
Description du bien
MALSH Realty vous propose à la location à Neuville-sur-Saône, au sein d'un parc d'activités clos, des locaux d'activités d'une surface totale d'environ 2300 m² divisibles en 7 lots à partir de 55 m².
Situation idéale à 1 km de l'accès autoroutier A46 (Rocade Est), en bordure de la D433, et desservi par le réseau TCL.
Prestations du bien
- Accès de plain-pied / Accès semi
- Parkings extérieurs
- Les lot G27A et G27B peuvent être réunis soit 1128 m²
- Lot V2 : Idéal pour une activité automobile
Informations financières
- Charges minimales : 158 €
- Bail : commercial 3-6-9 ans
- Informations location :
Conditions particulières à la location : Consignation BAL : 70 euros
Signalétique : à définir - Dépôt de garantie : 3 mois de loyer HT/HC
Ce local professionnel vous est présenté par
Vous souhaitez nous joindre ?
Surfaces des locaux
| Étage | Bâtiment | Type | Surfaces | Disponibilité | Loyer | Charges | Honoraires | Fiscal | Bail | Révision annuelle | Prix | Charges | Honoraires | Fiscal | Paiement Loyer | lot | Coworking | |
|---|---|---|---|---|---|---|---|---|---|---|---|---|---|---|---|---|---|---|
| RDC | Activités | 252 | 15 % HT du loyer annuel HT/HC à la charge du preneur, payables à la signature du bail | T.V.A. (20%) | ILAT Indice des Loyers des Activités Tertiaires | Trimestriel d'avance | ||||||||||||
| Total Cellule R3 | Activités | 252 | Immédiate | 75,4 HT/HC/m²/an | 1 900 HT/an | 15 % HT du loyer annuel HT/HC à la charge du preneur, payables à la signature du bail | T.V.A. (20%) | commercial 3-6-9 ans | ILAT Indice des Loyers des Activités Tertiaires | Trimestriel d'avance | R3 | |||||||
| Activités | 200 | 15 % HT du loyer annuel HT/HC à la charge du preneur, payables à la signature du bail | T.V.A. (20%) | ILAT Indice des Loyers des Activités Tertiaires | Trimestriel d'avance | |||||||||||||
| Total Cellule C8 | Activités | 200 | Nous consulter | 60 HT/HC/m²/an | 1 500 HT/an | 15 % HT du loyer annuel HT/HC à la charge du preneur, payables à la signature du bail | T.V.A. (20%) | commercial 3-6-9 ans | ILAT Indice des Loyers des Activités Tertiaires | Trimestriel d'avance | C8 | |||||||
| Total | 452 m² |
Localisation et accessibilité
- Bus: Bus TCL lignes 43 et S14
- SCNF: Gare de Collonges-Fontaines (SNCF)
- Autoroute: A proximité immédiate de la Rocade Est (A46)
Ces biens pourraient vous intéresser
| Étage | Bâtiment | Type | Surfaces | Disponibilité | Loyer | Charges | Honoraires | Fiscal | Bail | Révision annuelle | Prix | Charges | Honoraires | Fiscal | Paiement Loyer | lot | Coworking | |
|---|---|---|---|---|---|---|---|---|---|---|---|---|---|---|---|---|---|---|
| RDC | Activités | 252 | 15 % HT du loyer annuel HT/HC à la charge du preneur, payables à la signature du bail | T.V.A. (20%) | ILAT Indice des Loyers des Activités Tertiaires | Trimestriel d'avance | ||||||||||||
| Total Cellule R3 | Activités | 252 | Immédiate | 75,4 HT/HC/m²/an | 1 900 HT/an | 15 % HT du loyer annuel HT/HC à la charge du preneur, payables à la signature du bail | T.V.A. (20%) | commercial 3-6-9 ans | ILAT Indice des Loyers des Activités Tertiaires | Trimestriel d'avance | R3 | |||||||
| Activités | 200 | 15 % HT du loyer annuel HT/HC à la charge du preneur, payables à la signature du bail | T.V.A. (20%) | ILAT Indice des Loyers des Activités Tertiaires | Trimestriel d'avance | |||||||||||||
| Total Cellule C8 | Activités | 200 | Nous consulter | 60 HT/HC/m²/an | 1 500 HT/an | 15 % HT du loyer annuel HT/HC à la charge du preneur, payables à la signature du bail | T.V.A. (20%) | commercial 3-6-9 ans | ILAT Indice des Loyers des Activités Tertiaires | Trimestriel d'avance | C8 | |||||||
| Total | 452 m² |









































