Indisponible
Ref : 1040355-0L
Location Local d'activités
Location Local d'Activités - Saint Genis Laval (69230) - 286 m²
Saint-Genis-Laval (69230)
Surface 286 m²
Description du bien
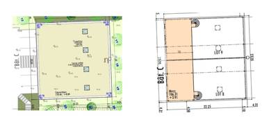
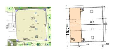
MALSH Realty & Property vous propose à la location à Saint-Genis-Laval à proximité immédiate de l'A450 et de l'A7, un local d'activités d'une surface totale d'environ 286 m² comprenant 166 m² d'activités au RDC et 120 m² de bureaux répartis sur 2 niveaux.Local en très bon état d'usage semi-indépendant sur un site clos disposant de 3 places de parking.
Belle hauteur dans la partie atelier, les bureaux en RDC et R+1 ont été rénovés.
Local équipé du tarif jaune.
Prestations du bien
- Accès de plain-pied / Accès semi
- Cour de déchargement
- Portail automatique
- Porte sectionnelle électrique (4 m x 4,20 m)
- 3 places de parking extérieures
- Charpente métallique
- Hauteur la plus basse : 4 m
- Hauteur la plus haute : 6 m
- Structure : bardage simple peau
- Couverture fibro + isolation
- Dalle industrielle
- Rampe tubes
- Triphasé
- Tarif jaune
- Bureaux
- Faux-plafonds
- Revêtement plastique
- Chauffage Électrique
- Surface RDC : 216 m²
- Surface terrain : 560
Ce local professionnel vous est présenté par
Vous souhaitez nous joindre ?
Surfaces des locaux
| Étage | Bâtiment | Type | Surfaces | Disponibilité | Loyer | Charges | Honoraires | Fiscal | Bail | Révision annuelle | Prix | Charges | Honoraires | Fiscal | Paiement Loyer | lot | Coworking | |
|---|---|---|---|---|---|---|---|---|---|---|---|---|---|---|---|---|---|---|
| RDC | Activités | 166 | 20 % HT du loyer annuel HT à la charge du preneur, payables à la signature du bail | T.V.A. (20%) | ILAT Indice des Loyers des Activités Tertiaires | Trimestriel d'avance | ||||||||||||
| RDC | Bureaux | 50 | 20 % HT du loyer annuel HT à la charge du preneur, payables à la signature du bail | T.V.A. (20%) | ILAT Indice des Loyers des Activités Tertiaires | Trimestriel d'avance | ||||||||||||
| 1 | Bureaux | 70 | 20 % HT du loyer annuel HT à la charge du preneur, payables à la signature du bail | T.V.A. (20%) | ILAT Indice des Loyers des Activités Tertiaires | Trimestriel d'avance | ||||||||||||
| Total Cellule | Activités | 286 | Après accord | 85 HT/HC/m²/an | 240 HT/an | 20 % HT du loyer annuel HT à la charge du preneur, payables à la signature du bail | T.V.A. (20%) | commercial 3-6-9 ans | ILAT Indice des Loyers des Activités Tertiaires | Trimestriel d'avance | ||||||||
| Total | 286 m² |
Localisation et accessibilité
- Bus: Bus TCL lignes 12, 17, 88 et 59
- SCNF: Gare de Pierre Bénite à 5 min et Gare d'Oullins à 9 min
- Metro: Métro Ligne B station "St Genis Laval Hôpital Lyon
- Autoroute: A proximité immédiate de l'A450 et de l'A7
Ces biens pourraient vous intéresser
| Étage | Bâtiment | Type | Surfaces | Disponibilité | Loyer | Charges | Honoraires | Fiscal | Bail | Révision annuelle | Prix | Charges | Honoraires | Fiscal | Paiement Loyer | lot | Coworking | |
|---|---|---|---|---|---|---|---|---|---|---|---|---|---|---|---|---|---|---|
| RDC | Activités | 166 | 20 % HT du loyer annuel HT à la charge du preneur, payables à la signature du bail | T.V.A. (20%) | ILAT Indice des Loyers des Activités Tertiaires | Trimestriel d'avance | ||||||||||||
| RDC | Bureaux | 50 | 20 % HT du loyer annuel HT à la charge du preneur, payables à la signature du bail | T.V.A. (20%) | ILAT Indice des Loyers des Activités Tertiaires | Trimestriel d'avance | ||||||||||||
| 1 | Bureaux | 70 | 20 % HT du loyer annuel HT à la charge du preneur, payables à la signature du bail | T.V.A. (20%) | ILAT Indice des Loyers des Activités Tertiaires | Trimestriel d'avance | ||||||||||||
| Total Cellule | Activités | 286 | Après accord | 85 HT/HC/m²/an | 240 HT/an | 20 % HT du loyer annuel HT à la charge du preneur, payables à la signature du bail | T.V.A. (20%) | commercial 3-6-9 ans | ILAT Indice des Loyers des Activités Tertiaires | Trimestriel d'avance | ||||||||
| Total | 286 m² |





































