Ref : 3448219871_TH
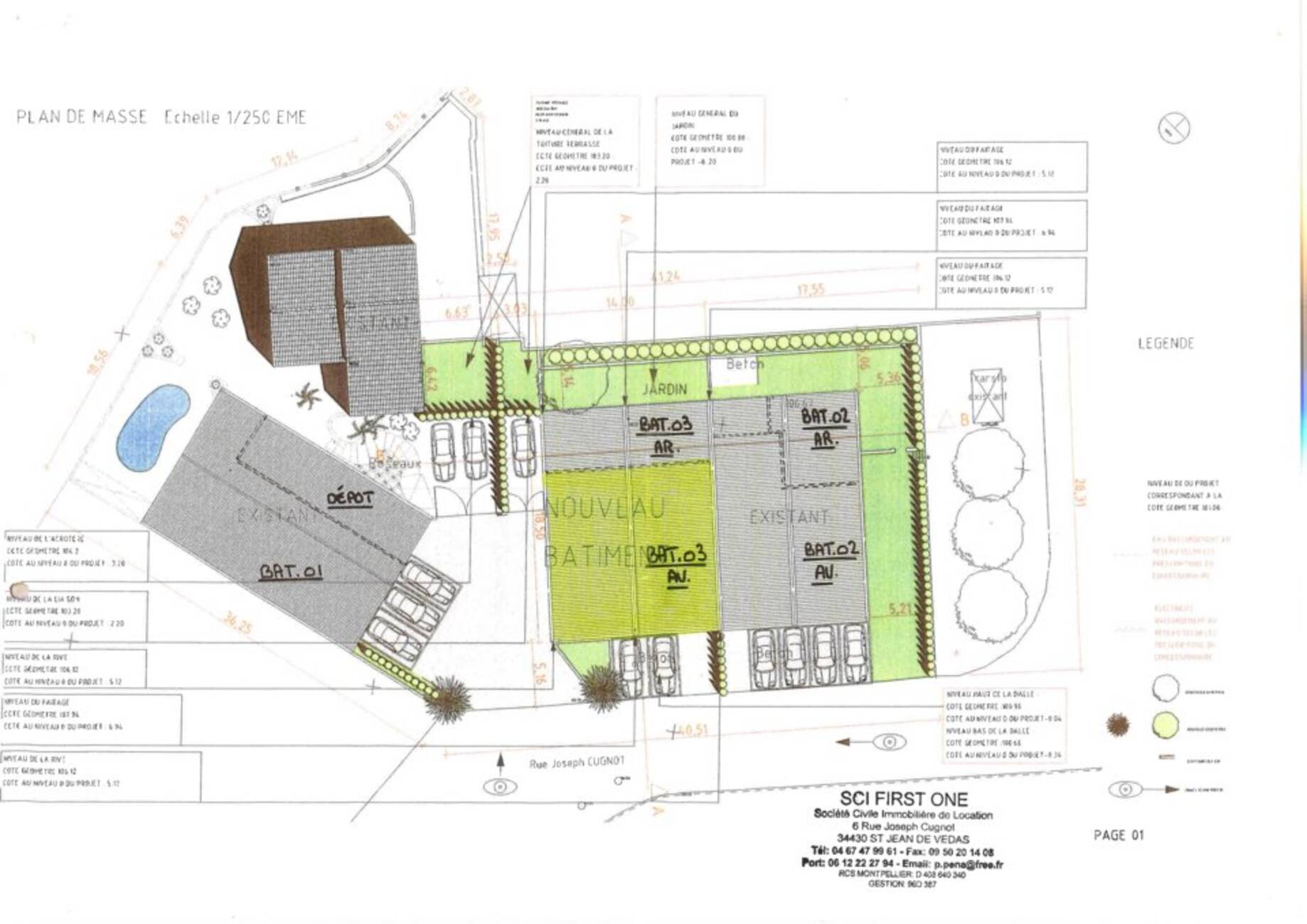
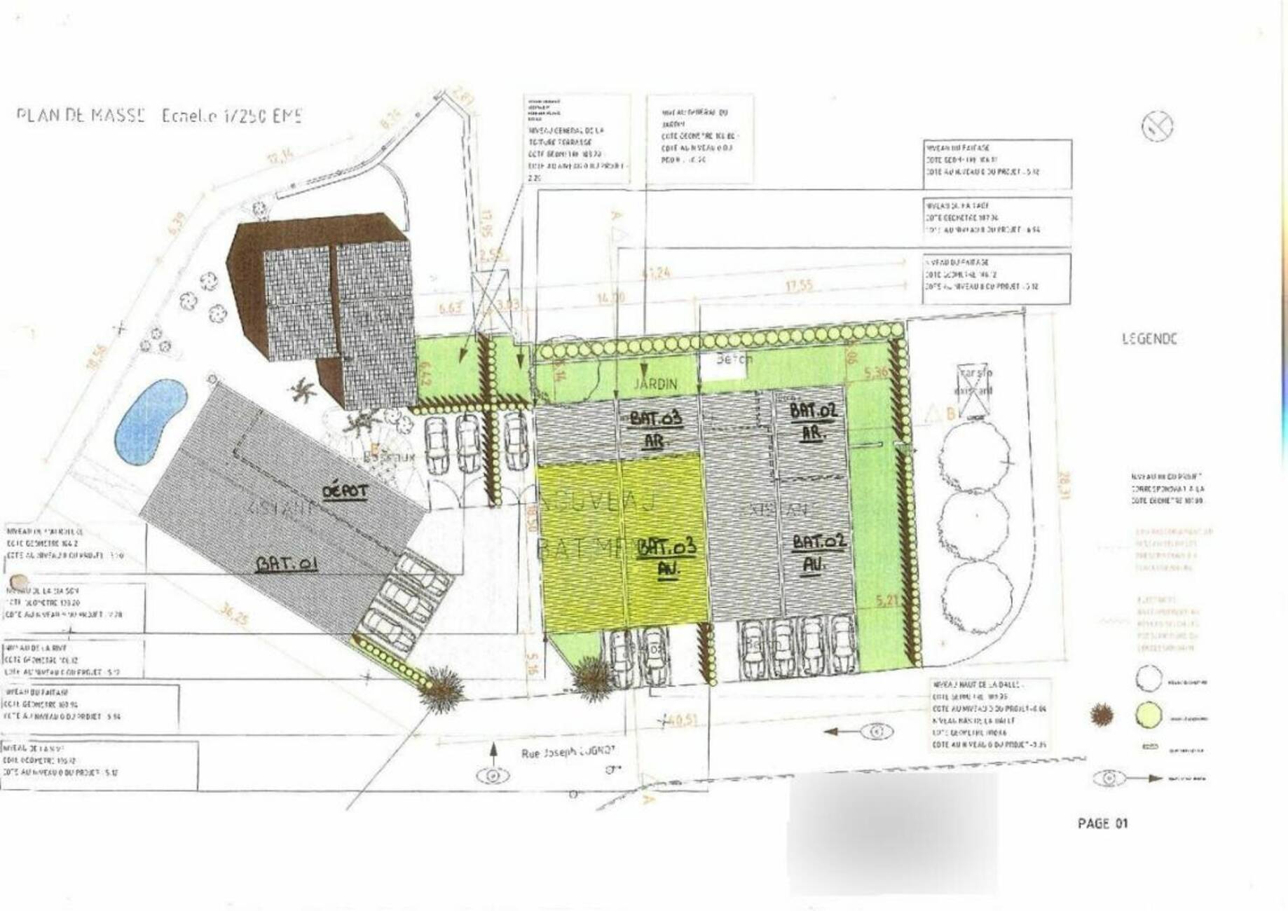
Location Local d'activités
LOCAL D'ACTIVITE A LOUER
Saint-Jean-de-Védas (34430)
Loyer : 38 880 € / an
Surface 324 m²
Description du bien
V9871 - SAINT JEAN DE VEDAS - OUEST DE MONTPELLIER - LOCATION - ENTREPOT - LOCAL D'ACTIVITE - 324M²
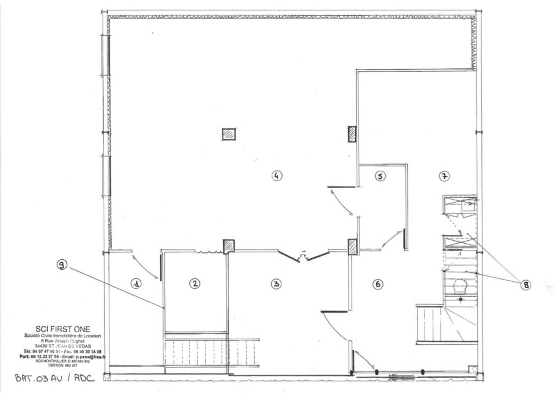
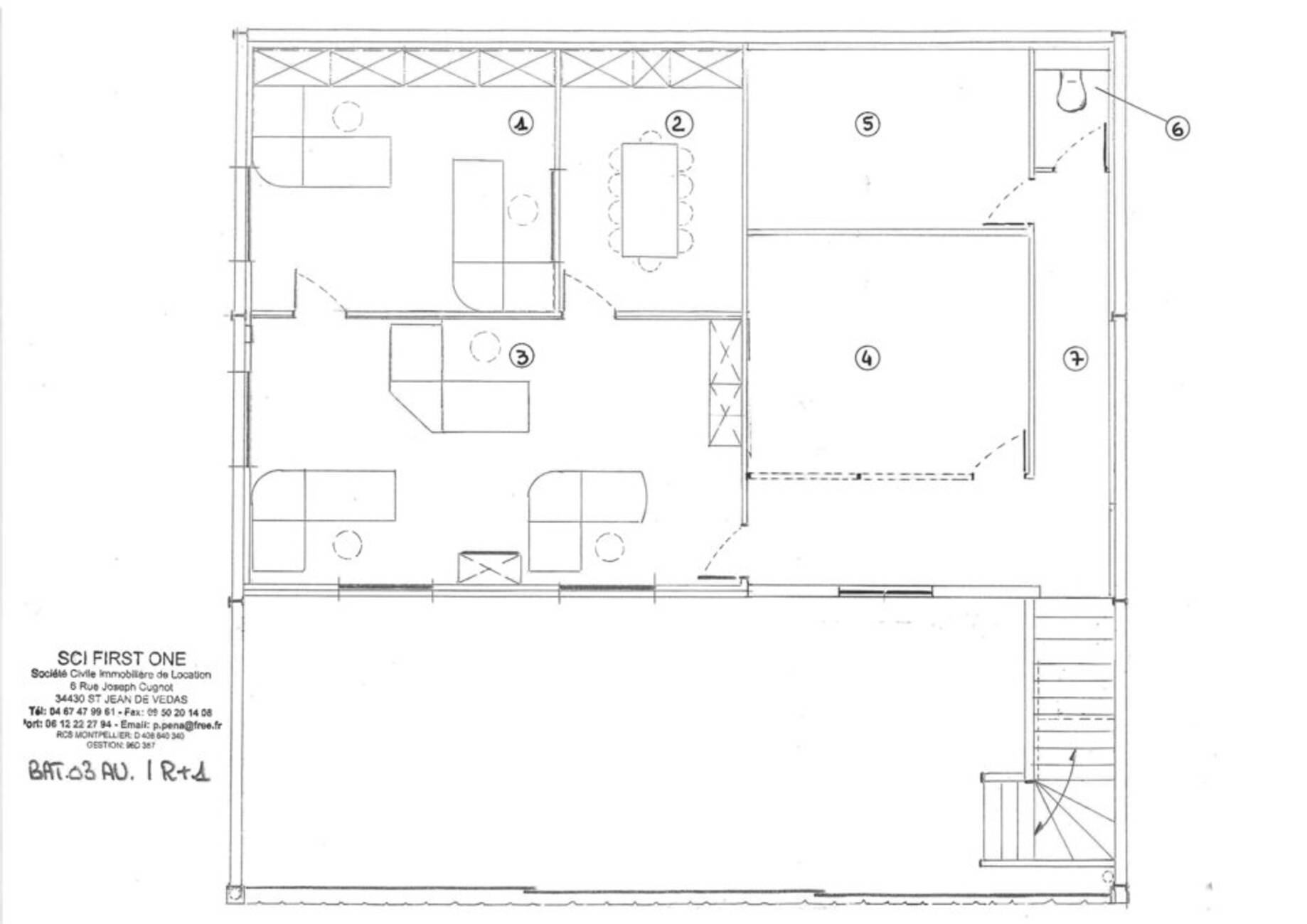
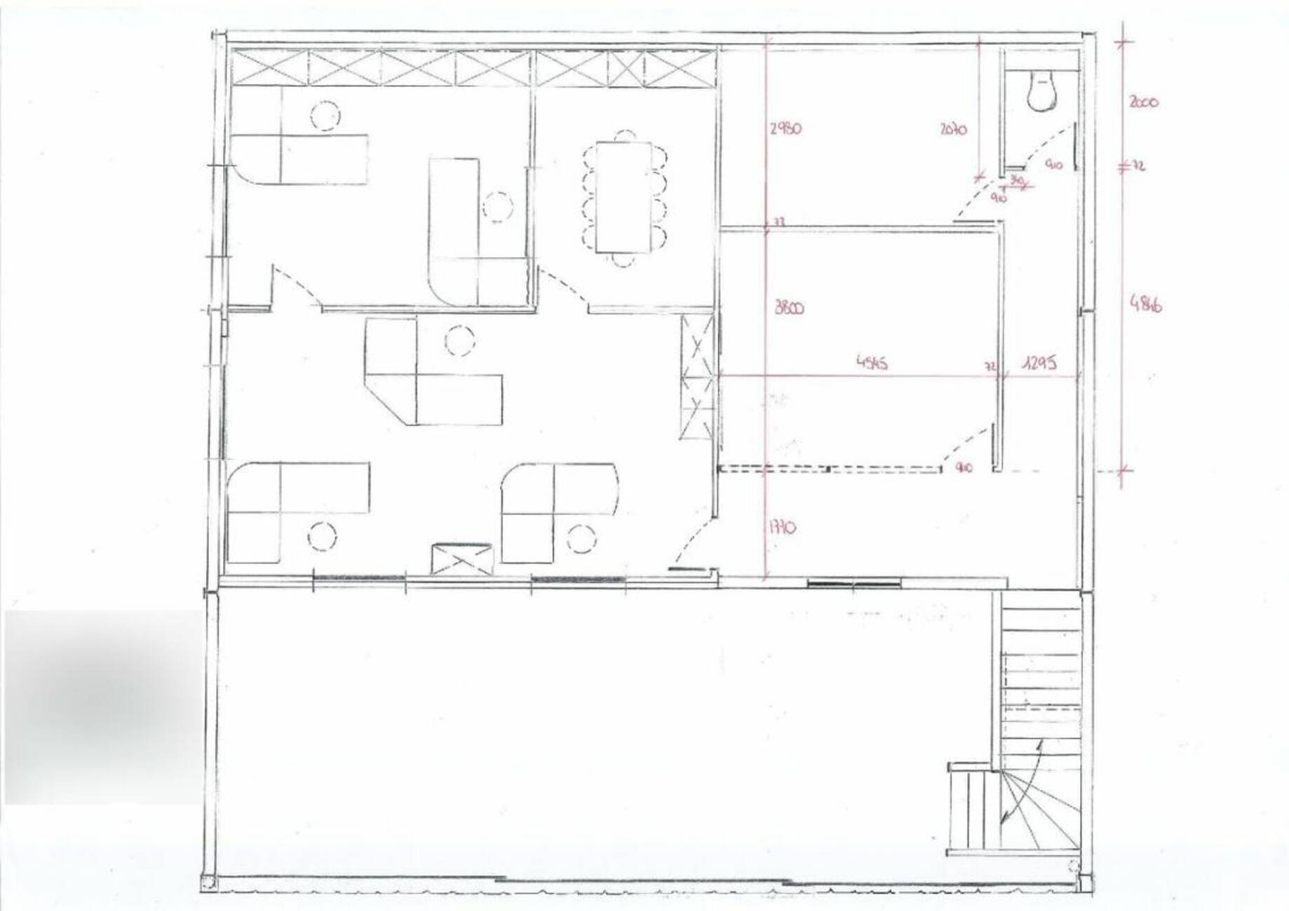
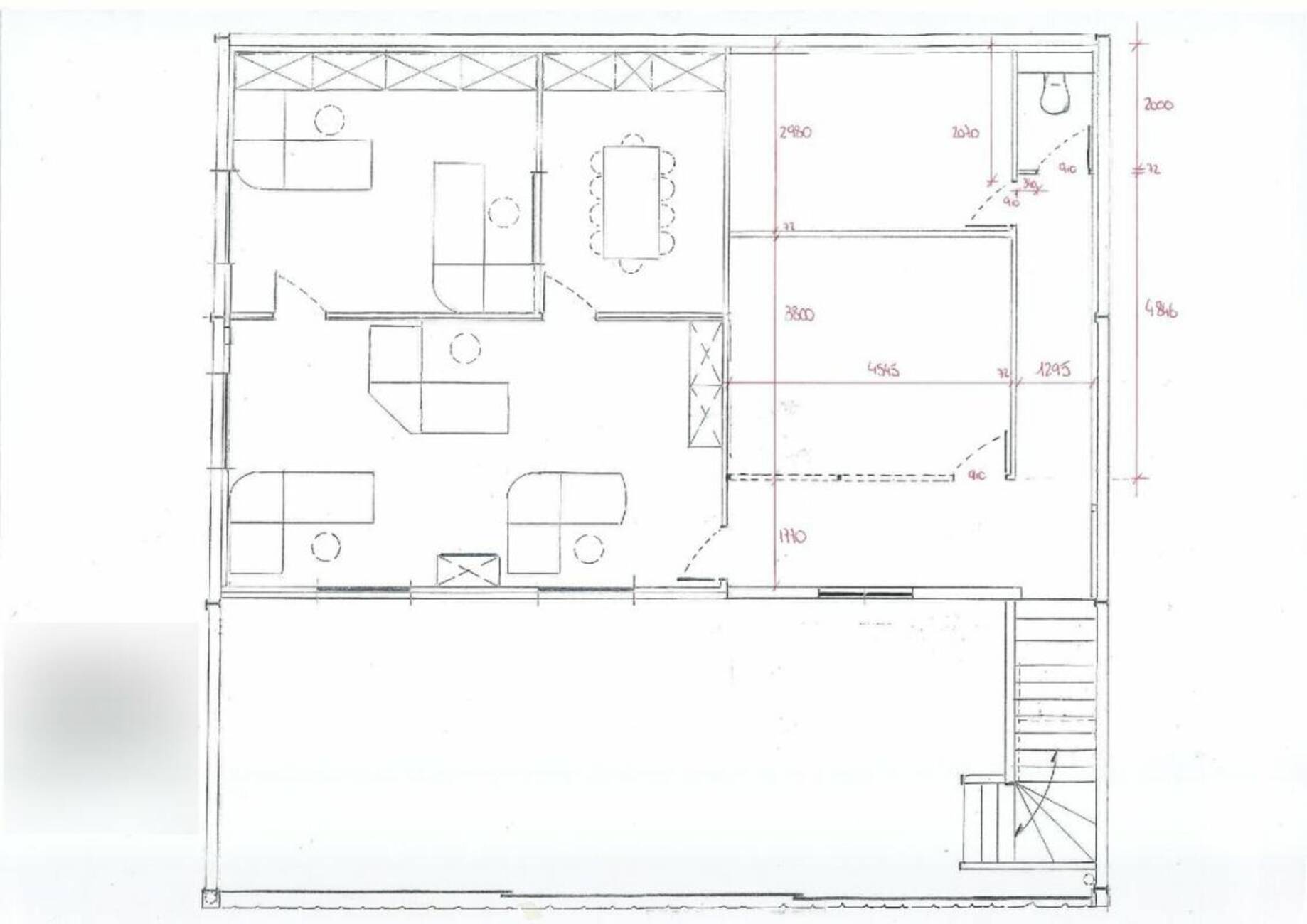
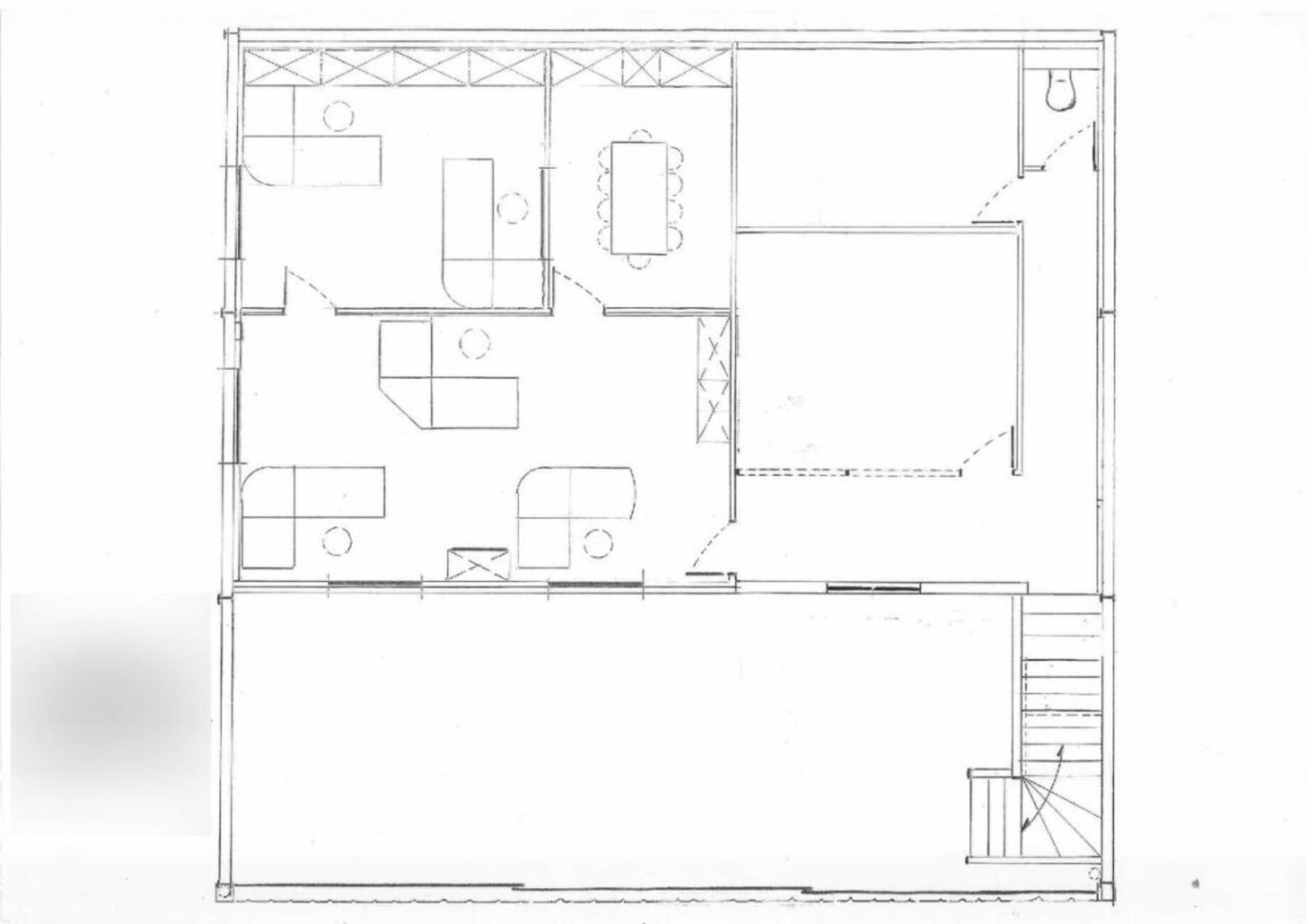
Thelene Entreprises vous propose à la location un bâtiment d'une surface d'environ 324 m2 composé de:
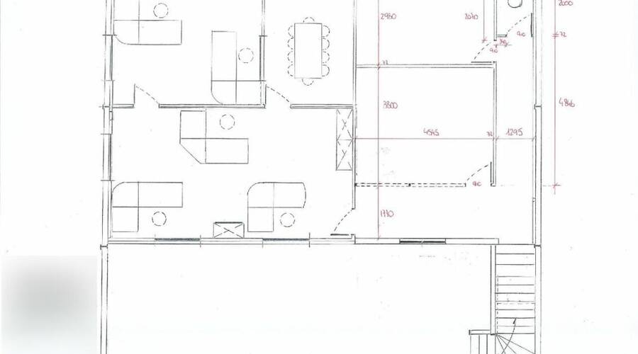
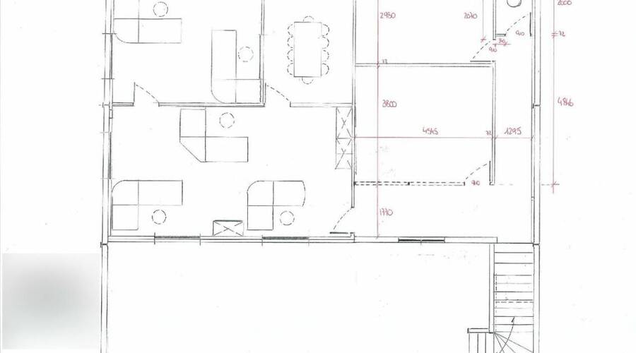
Dépôt/entrepôt de stockage au RDC + Bureaux au R+1.
185m² en RDC et 139 m2 en R+1.
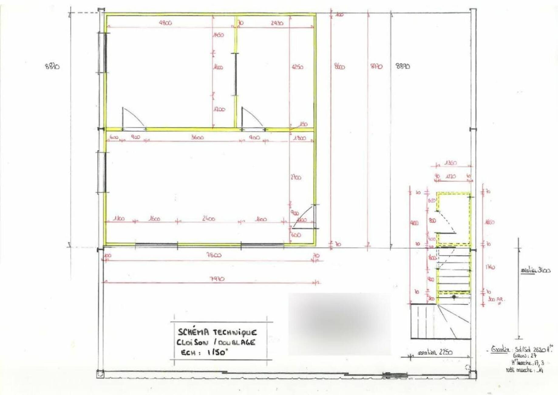
Structure des locaux :
Charpente métallique / toiture bardage isolation par feutre tendu.
Mur : Maçonnerie agglo sur périphérie entre IPE structure métal.
Sol : Dalle béton poids lourd au RDC / planché béton (poutrelle-hourdis) au R+1.
Hauteur sous plancher béton au RDC : 3,00 ml.
Accès :
Trois portes coulissantes / Dim. 4,00 x 4,00 ml en structure métal + bardage.
Conditions financières :
Loyer mensuel : 3 240 Euros HT HC
Honoraires de commercialisation en sus : 15 % HT du loyer annuel HT HC.
Retrouvez l'ensemble de nos offres sur notre site : https://www.thelene-entreprises.com/
Les informations sur les risques auxquels ce bien est exposé sont disponibles sur le site Géorisques : www.georisques.gouv.fr
Prestations du bien
- Bureaux cloisonnés
- Faux plafond
- Open Space
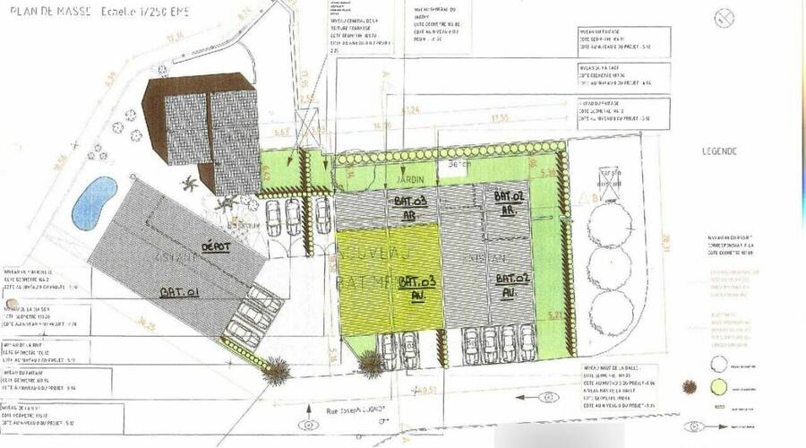
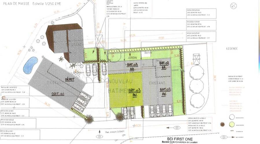
- Parking Extérieur
- Terrain bitumé
- Volets
Informations financières
- Bail : Commercial 3/6/9 ans
- Dépôt de garantie : 3 mois de loyer HT/HC
Ce local professionnel vous est présenté par
Vous souhaitez nous joindre ?
Localisation et accessibilité
- Bus: 300 m du TRAMWAY « Ligne 2 / station Victoire II
- Autoroute: 2,5 Km de l'échangeur de l'autoroute A9.
| Batiment - Lot | Etage | Type | Surface | Loyer annuel | Charges annuelles | Parkings | Disponibilité |














































