Ref : 95_0097_IN
Location Local d'activités
LOCAL D'ACTIVITE A LOUER
Saint-Ouen-l'Aumône (95310)
Loyer : 95 340 € / an
Surface 908 m²
Divisible dès 316 m²
Description du bien
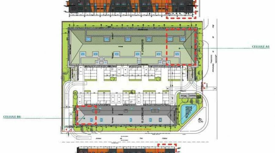
INVEST CONSEIL vous propose à la location des locaux d'activités de 316 m² et 592 m² situés à SAINT OUEN L'AUMONE.
Les + :
- Espaces verts paysagés de qualité
- BREEAM Niveau Good
Prestations du bien
- Accès de plain pied
- Aérothermes gaz
- Borne de rechargement électrique :
- Charge au sol : 3T/m²
- Eclairage LED
- Faux plafond
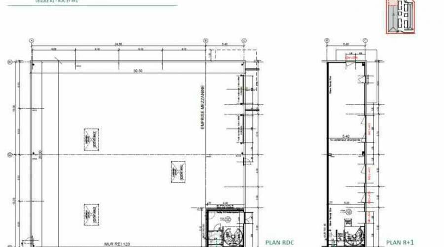
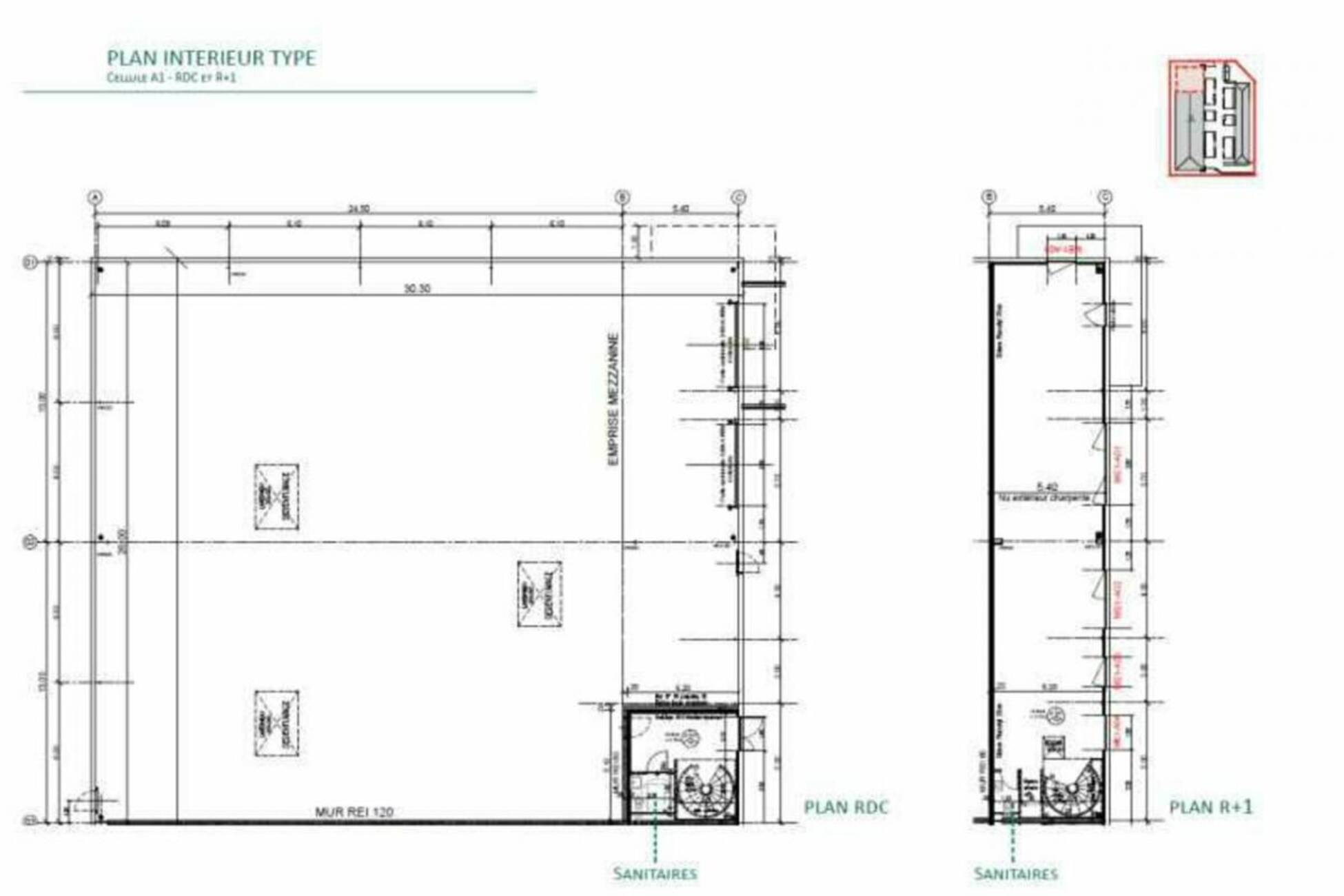
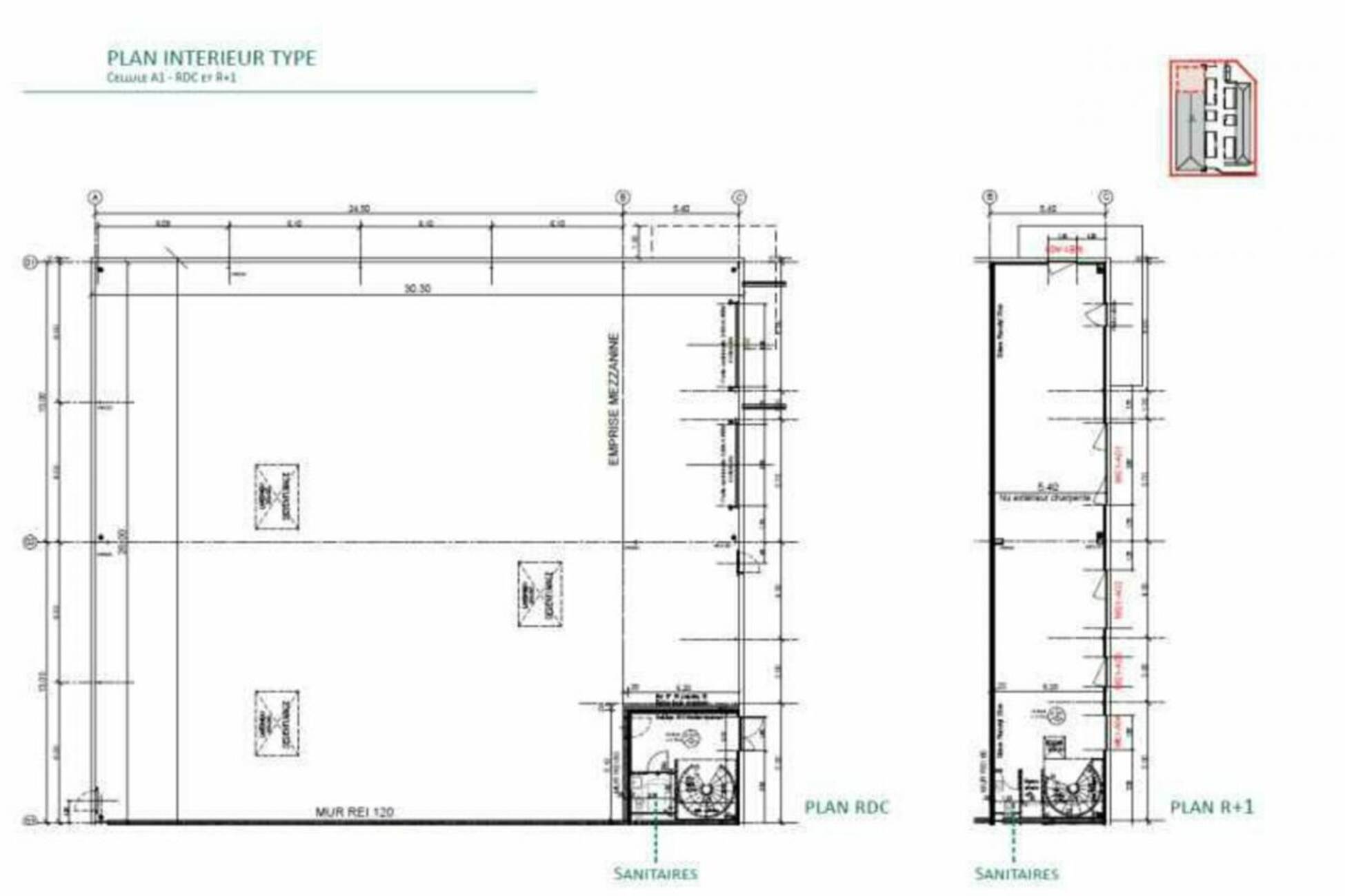
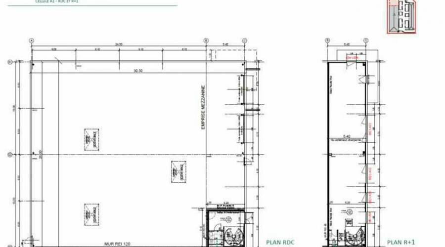
- Hauteur sous plafond : 8 m
- Open Space
- Parking
- Porte sectionnelle : 3,80 m x 3,90 m
- Puissance électrique : tarif jaune
- Revêtement sol quartzé
- Sanitaires PMR
- Sanitaires privés
- Structure métallique
- Système de désenfumage
- Toiture bac acier
- Eclairage zénithal
- Bureaux :
- charges au sol en RDC de 500 kg/m² et en R+1 de 350 kg/m²
- Revêtement sol : RDC carrelage et R+1 : PVC
- Hauteur libre de 2,20 m
- Système de chauffage et rafraichissement VRV
- Site entièrement clos et sécurisé de 10 150 m² environ : un accès principal et accès secondaire pour VL, VUL et porteurs
- Fermeture du site par portails motorisés et accès piéton par portillon
Informations financières
- Charges minimales : 21 792 €
- Bail : Commercial 3-6-9-12 ans
- Dépôt de garantie : 3 mois de loyer HT/HC
Ce local professionnel vous est présenté par
Vous souhaitez nous joindre ?
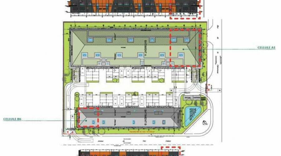
Surfaces des locaux
| Batiment - Lot | Etage | Type | Surface totale (en m2) | Emplacement(s) de parking | Loyer annuel HT/HC | Provision annuelle pour charges et taxes HT | Disponibilité |
| Bat B - Cellule 8 | RDC : 242 m² + R+1 : 74 m² | Local d'activités / Bureaux | 316 | - | 110,00 €/m²/an | 24,97 €/m² | immédiate |
| Bat A - Cellule 3 | RDC : 510 m² + R+1 : 82 m² | Local d'activités / Bureaux | 592 | - | 105,00 €/m²/an | 18 648,00 € | immédiate |
Localisation et accessibilité
- Bus: Ligne H - Gare de "Saint Ouen L'Aumône - Liesse"
- Autoroute: N184 / A15 / A115
Ces biens pourraient vous intéresser
| Batiment - Lot | Etage | Type | Surface totale (en m2) | Emplacement(s) de parking | Loyer annuel HT/HC | Provision annuelle pour charges et taxes HT | Disponibilité |
| Bat B - Cellule 8 | RDC : 242 m² + R+1 : 74 m² | Local d'activités / Bureaux | 316 | - | 110,00 €/m²/an | 24,97 €/m² | immédiate |
| Bat A - Cellule 3 | RDC : 510 m² + R+1 : 82 m² | Local d'activités / Bureaux | 592 | - | 105,00 €/m²/an | 18 648,00 € | immédiate |
































