Ref : 1230958-0L_MA
Location Local d'activités
Location Locaux d'Activités avec quai PL - Saint Quentin Fallavier (38070) - 1136 m² divisibles à partir de 226 m²
Saint-Quentin-Fallavier (38070)
Loyer : 105 000 € / an
Surface 1 136 m²
Divisible dès 226 m²
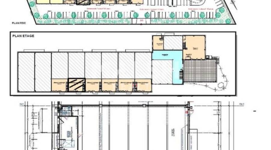
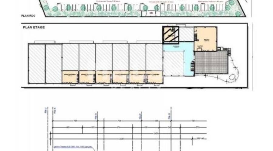
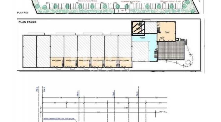
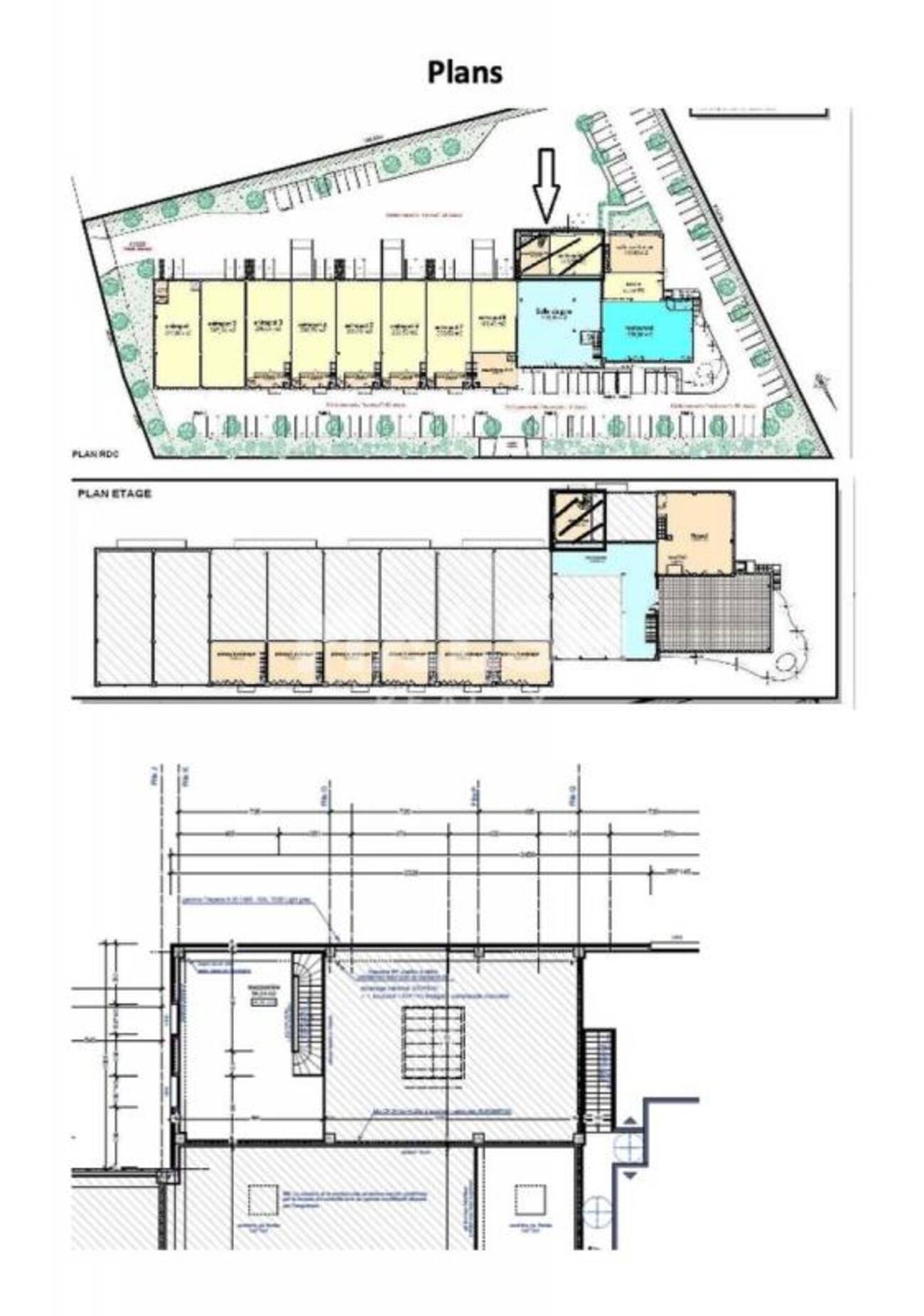
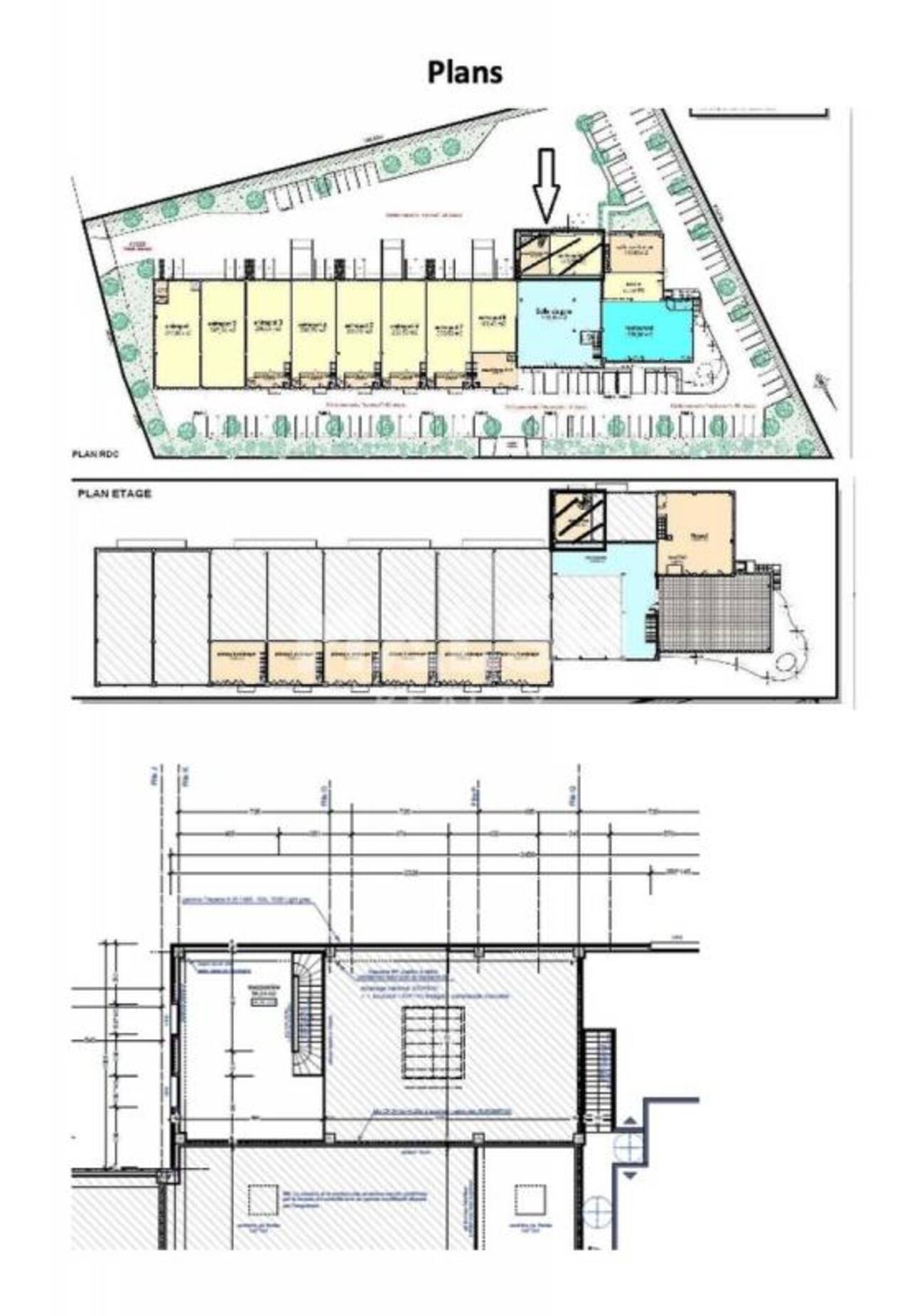
Description du bien
MALSH Realty vous propose à la location au sein d'un parc d'activités clos et sécurisé à Saint-Quentin-Fallavier, trois locaux d'activités d'une surface d'environ 226 m², 341 m² et d'environ 569 m². Deux de ces locaux sont équipés chacun d'un quai et disposent d'un accueil et de bureaux à l'étage.
Idéalement situés à 2 km de l'entrée de l'autoroute A43 "Isle d'Abeau n°5".
Les activités automobiles , garages et carrosserie sont interdites.
Prestations du bien
- Parc fermé de 22h à 6h portail électrique
- Vidéo surveillance
- Accès de plain-pied / Accès semi
- Porte sectionnelle
- 1 quai PL pour les lots 3&4 et 6
- Bureaux
- Accueil au RDC
- Alarme
- Eclairage
- Alarme pour le lot 3B & 4
- Chauffage pour le lot 3B & 4
- Détail surface lot 6 :
- Local de 230 m² chauffé/équipé d'une porte sectionnelle poids-lourds avec un quai
- Un espace d'accueil d'environ 33 m²
- Un plateau de bureaux 78 m² en étage
- Détail surface lot 3B & 4 :
- Local 3B : dépôt RDC de 230 m² avec un quai
- Local 4 : 339 m² comprenant :
- - RDC : dépôt de 230 m² environ et une entrée showroom de 31 m²
- - Etage : bureau d'environ 78 m²
Informations financières
- Charges minimales : 170 €
- Bail : commercial 3-6-9 ans
- Dépôt de garantie : 3 mois de loyer HT/HC
Ce local professionnel vous est présenté par
Vous souhaitez nous joindre ?
Surfaces des locaux
| Étage | Bâtiment | Type | Surfaces | Disponibilité | Loyer | Charges | Honoraires | Fiscal | Bail | Révision annuelle | Prix | Charges | Honoraires | Fiscal | Paiement Loyer | lot | Coworking | |
|---|---|---|---|---|---|---|---|---|---|---|---|---|---|---|---|---|---|---|
| RDC | Activités | 460 | 15 % HT du loyer annuel HT/HC à la charge du preneur, payables à la signature du bail | T.V.A. (20%) | ILAT Indice des Loyers des Activités Tertiaires | Mensuel d'avance | ||||||||||||
| RDC | Bureaux | 31 | 15 % HT du loyer annuel HT/HC à la charge du preneur, payables à la signature du bail | T.V.A. (20%) | ILAT Indice des Loyers des Activités Tertiaires | Mensuel d'avance | ||||||||||||
| R+1 | Bureaux | 78 | 15 % HT du loyer annuel HT/HC à la charge du preneur, payables à la signature du bail | T.V.A. (20%) | ILAT Indice des Loyers des Activités Tertiaires | Mensuel d'avance | ||||||||||||
| Total Cellule 3B & 4 | Activités | 569 | Sous 4/5 semaines | 92,79 HT/HC/m²/an | 2 040 HT/an | 15 % HT du loyer annuel HT/HC à la charge du preneur, payables à la signature du bail | T.V.A. (20%) | commercial 3-6-9 ans | ILAT Indice des Loyers des Activités Tertiaires | Mensuel d'avance | 3B & 4 | |||||||
| RDC | Activités | 230 | 15 % HT du loyer annuel HT/HC à la charge du preneur, payables à la signature du bail | T.V.A. (20%) | ILAT Indice des Loyers des Activités Tertiaires | Mensuel d'avance | ||||||||||||
| RDC | Bureaux | 33 | 15 % HT du loyer annuel HT/HC à la charge du preneur, payables à la signature du bail | T.V.A. (20%) | ILAT Indice des Loyers des Activités Tertiaires | Mensuel d'avance | ||||||||||||
| R+1 | Bureaux | 78 | 15 % HT du loyer annuel HT/HC à la charge du preneur, payables à la signature du bail | T.V.A. (20%) | ILAT Indice des Loyers des Activités Tertiaires | Mensuel d'avance | ||||||||||||
| Total Cellule 6 | Activités | 341 | 16 février 2026 | 91,5 HT/HC/m²/an | 1 200 HT/an | 15 % HT du loyer annuel HT/HC à la charge du preneur, payables à la signature du bail | T.V.A. (20%) | commercial 3-6-9 ans | ILAT Indice des Loyers des Activités Tertiaires | Mensuel d'avance | 6 | |||||||
| RDC | Activités | 176 | 15 % HT du loyer annuel HT/HC à la charge du preneur, payables à la signature du bail | T.V.A. (20%) | ILAT Indice des Loyers des Activités Tertiaires | Mensuel d'avance | ||||||||||||
| R+1 | Bureaux | 50 | 15 % HT du loyer annuel HT/HC à la charge du preneur, payables à la signature du bail | T.V.A. (20%) | ILAT Indice des Loyers des Activités Tertiaires | Mensuel d'avance | ||||||||||||
| Total Cellule 9 | Activités | 226 | 1er janvier 2026 | 92,92 HT/HC/m²/an | 1 200 HT/an | 15 % HT du loyer annuel HT/HC à la charge du preneur, payables à la signature du bail | T.V.A. (20%) | commercial 3-6-9 ans | ILAT Indice des Loyers des Activités Tertiaires | Mensuel d'avance | 9 | |||||||
| Total | 1 136 m² |
Localisation et accessibilité
- Autoroute: A proximité immédiate de l'A43 (à 2 km de l'entrée d'autoroute Isle d'Abeau n° 5)
Ces biens pourraient vous intéresser
| Étage | Bâtiment | Type | Surfaces | Disponibilité | Loyer | Charges | Honoraires | Fiscal | Bail | Révision annuelle | Prix | Charges | Honoraires | Fiscal | Paiement Loyer | lot | Coworking | |
|---|---|---|---|---|---|---|---|---|---|---|---|---|---|---|---|---|---|---|
| RDC | Activités | 460 | 15 % HT du loyer annuel HT/HC à la charge du preneur, payables à la signature du bail | T.V.A. (20%) | ILAT Indice des Loyers des Activités Tertiaires | Mensuel d'avance | ||||||||||||
| RDC | Bureaux | 31 | 15 % HT du loyer annuel HT/HC à la charge du preneur, payables à la signature du bail | T.V.A. (20%) | ILAT Indice des Loyers des Activités Tertiaires | Mensuel d'avance | ||||||||||||
| R+1 | Bureaux | 78 | 15 % HT du loyer annuel HT/HC à la charge du preneur, payables à la signature du bail | T.V.A. (20%) | ILAT Indice des Loyers des Activités Tertiaires | Mensuel d'avance | ||||||||||||
| Total Cellule 3B & 4 | Activités | 569 | Sous 4/5 semaines | 92,79 HT/HC/m²/an | 2 040 HT/an | 15 % HT du loyer annuel HT/HC à la charge du preneur, payables à la signature du bail | T.V.A. (20%) | commercial 3-6-9 ans | ILAT Indice des Loyers des Activités Tertiaires | Mensuel d'avance | 3B & 4 | |||||||
| RDC | Activités | 230 | 15 % HT du loyer annuel HT/HC à la charge du preneur, payables à la signature du bail | T.V.A. (20%) | ILAT Indice des Loyers des Activités Tertiaires | Mensuel d'avance | ||||||||||||
| RDC | Bureaux | 33 | 15 % HT du loyer annuel HT/HC à la charge du preneur, payables à la signature du bail | T.V.A. (20%) | ILAT Indice des Loyers des Activités Tertiaires | Mensuel d'avance | ||||||||||||
| R+1 | Bureaux | 78 | 15 % HT du loyer annuel HT/HC à la charge du preneur, payables à la signature du bail | T.V.A. (20%) | ILAT Indice des Loyers des Activités Tertiaires | Mensuel d'avance | ||||||||||||
| Total Cellule 6 | Activités | 341 | 16 février 2026 | 91,5 HT/HC/m²/an | 1 200 HT/an | 15 % HT du loyer annuel HT/HC à la charge du preneur, payables à la signature du bail | T.V.A. (20%) | commercial 3-6-9 ans | ILAT Indice des Loyers des Activités Tertiaires | Mensuel d'avance | 6 | |||||||
| RDC | Activités | 176 | 15 % HT du loyer annuel HT/HC à la charge du preneur, payables à la signature du bail | T.V.A. (20%) | ILAT Indice des Loyers des Activités Tertiaires | Mensuel d'avance | ||||||||||||
| R+1 | Bureaux | 50 | 15 % HT du loyer annuel HT/HC à la charge du preneur, payables à la signature du bail | T.V.A. (20%) | ILAT Indice des Loyers des Activités Tertiaires | Mensuel d'avance | ||||||||||||
| Total Cellule 9 | Activités | 226 | 1er janvier 2026 | 92,92 HT/HC/m²/an | 1 200 HT/an | 15 % HT du loyer annuel HT/HC à la charge du preneur, payables à la signature du bail | T.V.A. (20%) | commercial 3-6-9 ans | ILAT Indice des Loyers des Activités Tertiaires | Mensuel d'avance | 9 | |||||||
| Total | 1 136 m² |



























































