Ref : 1011968-0L_MA
Location Local d'activités
VENISSIEUX (69200) - Locaux d'Activités 9435 m² divisibles à partir de 542 m² + Terrains pour construction de clé en main locatif - A LOUER
Vénissieux (69200)
Loyer : 925 872 € / an
Surface 9 435 m²
Divisible dès 542 m²
Description du bien
MALSH Realty vous propose à la location à Vénissieux sur un site de 10 ha, des locaux d'activités d'environ 9 435 m² divisibles à partir de 542 m² et des terrains pour la construction d'un clé en main.
Ce parc industriel, dans un écosystème industriel historique, est particulièrement bien connecté aux transports en communs (Métro Parilly et Tramway T4).
Prestations du bien
- Bâtiment 101 : Moitié Nord
- Local d'activités d'environ 5 773 m² dédiés à la production industrielle
- 30 places de parking incluses pour ce lot
- Bâtiment 105 : Sud-Ouest :
- Local d'activités d'environ 1756 m²
- 9 places de parking incluses pour ce lot
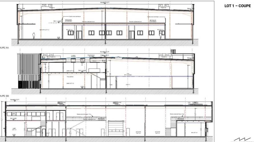
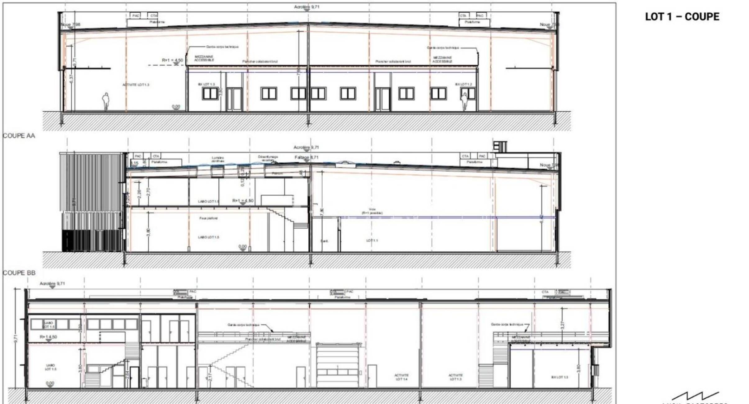
- Bâtiment 1 : PC obtenu
- Livraison prévisionnelle : Septembre 2026
- Local d'activités neuf d'environ 2 537 m² dédiés à la production industrielle :
- 5 lots de 400 à 800 m²
- Possibilité de regrouper 2 lots
- 1 porte sectionnelle motorisée par lot
- 1 espace technique extérieur par lot
- Hauteur de 6,42 m à 7,80 m
- Dallage béton quartzée
- Charges d'exploitation admissibles : 2T/m²
- Puissance électrique disponible : 120 kVA (raccordement tarif jaune à prévoir par l'exploitant)
- Bureaux en RDC
- Sanitaires PMR
- Local douche
- Menuiseries vitrées équipées de volets roulants
- Chauffage / Climatisation réversible
- Parkings : (Places incluses dans le loyer) : en foisonnement
- Répartition conforme au PLUH :
- Industriel : 1 place/200 m²
- Tertiaire : 1 place/120 ²
- Stationnements vélos en entrée de site
- Parking Sud (Joliot CURIE) : 140 places
- Parking Nord (Marcel SEMBAT) : 220 places
- Terrains disponibles également pour construction d'un clé en main locatif :
- - Lot 5 : 5 000 m²
- - Lot 6 : 3 000 m²
- Cf. plan de masse
Informations financières
- Charges minimales : 21 229 €
- Bail : 9 ans
- Informations location :
Conditions particulières à la location : Places de parking comprises dans le loyer
Bâtiment 1 :
Loyer activités : 105 euros HT/HC/m²/an
Loyer bureaux : 140 euros HT/HC/m²/an - Dépôt de garantie : 3 mois de loyer HT/HC
Ce local professionnel vous est présenté par
Vous souhaitez nous joindre ?
Surfaces des locaux
| Étage | Bâtiment | Type | Surfaces | Disponibilité | Loyer | Charges | Honoraires | Fiscal | Bail | Révision annuelle | Prix | Charges | Honoraires | Fiscal | Paiement Loyer | lot | Coworking | |
|---|---|---|---|---|---|---|---|---|---|---|---|---|---|---|---|---|---|---|
| RDC + R+1 | Locaux sociaux | 250,97 | 15 % HT du loyer annuel HT/HC à la charge du preneur, payables à la signature du bail | T.V.A. (20%) | ILAT Indice des Loyers des Activités Tertiaires | Trimestriel d'avance | ||||||||||||
| RDC + R+1 | Bureaux | 200,89 | 15 % HT du loyer annuel HT/HC à la charge du preneur, payables à la signature du bail | T.V.A. (20%) | ILAT Indice des Loyers des Activités Tertiaires | Trimestriel d'avance | ||||||||||||
| RDC + R+1 | Autres | 49,99 | 15 % HT du loyer annuel HT/HC à la charge du preneur, payables à la signature du bail | T.V.A. (20%) | ILAT Indice des Loyers des Activités Tertiaires | Trimestriel d'avance | ||||||||||||
| RDC + R+1 | Locaux techniques | 15,95 | 15 % HT du loyer annuel HT/HC à la charge du preneur, payables à la signature du bail | T.V.A. (20%) | ILAT Indice des Loyers des Activités Tertiaires | Trimestriel d'avance | ||||||||||||
| RDC | Activités | 1 238,29 | 15 % HT du loyer annuel HT/HC à la charge du preneur, payables à la signature du bail | T.V.A. (20%) | ILAT Indice des Loyers des Activités Tertiaires | Trimestriel d'avance | ||||||||||||
| Total Cellule Sud Ouest | Activités | 1 756,09 | Immédiate | 85,42 HT/HC/m²/an | 27 HT/m²/an | 15 % HT du loyer annuel HT/HC à la charge du preneur, payables à la signature du bail | T.V.A. (20%) | 6 ans fermes | ILAT Indice des Loyers des Activités Tertiaires | Trimestriel d'avance | Sud Ouest | |||||||
| Activités | 3 700 | 15 % HT du loyer annuel HT/HC à la charge du preneur, payables à la signature du bail | T.V.A. (20%) | ILAT Indice des Loyers des Activités Tertiaires | Trimestriel d'avance | |||||||||||||
| Bureaux | 1 021 | 15 % HT du loyer annuel HT/HC à la charge du preneur, payables à la signature du bail | T.V.A. (20%) | ILAT Indice des Loyers des Activités Tertiaires | Trimestriel d'avance | |||||||||||||
| Locaux sociaux | 534 | 15 % HT du loyer annuel HT/HC à la charge du preneur, payables à la signature du bail | T.V.A. (20%) | ILAT Indice des Loyers des Activités Tertiaires | Trimestriel d'avance | |||||||||||||
| Locaux techniques | 428 | 15 % HT du loyer annuel HT/HC à la charge du preneur, payables à la signature du bail | T.V.A. (20%) | ILAT Indice des Loyers des Activités Tertiaires | Trimestriel d'avance | |||||||||||||
| Autres | 90 | 15 % HT du loyer annuel HT/HC à la charge du preneur, payables à la signature du bail | T.V.A. (20%) | ILAT Indice des Loyers des Activités Tertiaires | Trimestriel d'avance | |||||||||||||
| Total Cellule Moitié Nord | Activités | 5 773 | Immédiate | 95,27 HT/HC/m²/an | 27 HT/m²/an | 15 % HT du loyer annuel HT/HC à la charge du preneur, payables à la signature du bail | T.V.A. (20%) | 9 ans | ILAT Indice des Loyers des Activités Tertiaires | Trimestriel d'avance | Moitié Nord | |||||||
| RDC | Activités | 521,31 | 15 % HT du loyer annuel HT/HC à la charge du preneur, payables à la signature du bail | T.V.A. (20%) | ILAT Indice des Loyers des Activités Tertiaires | Trimestriel d'avance | ||||||||||||
| RDC | Bureaux | 20,99 | 15 % HT du loyer annuel HT/HC à la charge du preneur, payables à la signature du bail | T.V.A. (20%) | ILAT Indice des Loyers des Activités Tertiaires | Trimestriel d'avance | ||||||||||||
| Total Cellule 1.1 | Activités | 542,3 | Septembre 2026 | 106,35 HT/HC/m²/an | 24 HT/m²/an | 15 % HT du loyer annuel HT/HC à la charge du preneur, payables à la signature du bail | T.V.A. (20%) | 6 ans fermes | ILAT Indice des Loyers des Activités Tertiaires | Trimestriel d'avance | 1.1 | |||||||
| RDC | Activités | 650,31 | 15 % HT du loyer annuel HT/HC à la charge du preneur, payables à la signature du bail | T.V.A. (20%) | ILAT Indice des Loyers des Activités Tertiaires | Trimestriel d'avance | ||||||||||||
| RDC | Bureaux | 138,89 | 15 % HT du loyer annuel HT/HC à la charge du preneur, payables à la signature du bail | T.V.A. (20%) | ILAT Indice des Loyers des Activités Tertiaires | Trimestriel d'avance | ||||||||||||
| Total Cellule 1.3 | Activités | 789,2 | Septembre 2026 | 111,16 HT/HC/m²/an | 24 HT/m²/an | 15 % HT du loyer annuel HT/HC à la charge du preneur, payables à la signature du bail | T.V.A. (20%) | 6 ans fermes | ILAT Indice des Loyers des Activités Tertiaires | Trimestriel d'avance | 1.3 | |||||||
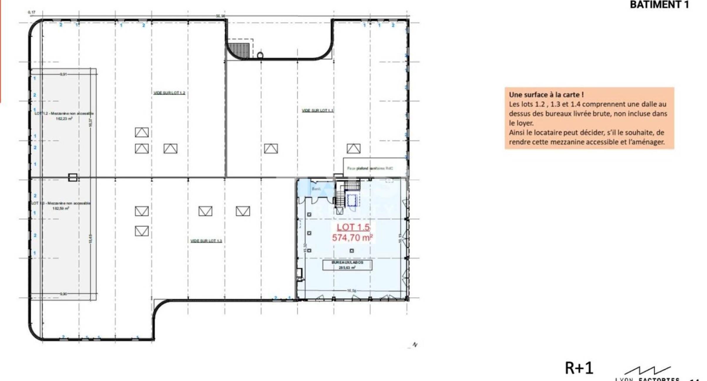
| R+1 | Bureaux | 285,63 | 15 % HT du loyer annuel HT/HC à la charge du preneur, payables à la signature du bail | T.V.A. (20%) | ILAT Indice des Loyers des Activités Tertiaires | Trimestriel d'avance | ||||||||||||
| RDC | Bureaux | 289,07 | 15 % HT du loyer annuel HT/HC à la charge du preneur, payables à la signature du bail | T.V.A. (20%) | ILAT Indice des Loyers des Activités Tertiaires | Trimestriel d'avance | ||||||||||||
| Total Cellule 1.5 | Activités | 574,7 | Septembre 2026 | 140 HT/HC/m²/an | 24 HT/m²/an | 15 % HT du loyer annuel HT/HC à la charge du preneur, payables à la signature du bail | T.V.A. (20%) | 6 ans fermes | ILAT Indice des Loyers des Activités Tertiaires | Trimestriel d'avance | 1.5 | |||||||
| Total | 9 435,29 m² |
Localisation et accessibilité
- Bus: Bus TCL lignes 35, 39 et 79
- Metro: Métro ligne D station "Parilly"
- Tramway: Tramway ligne T4 arrêt "Joliot Curie - Marcel Sembat"
Ces biens pourraient vous intéresser
| Étage | Bâtiment | Type | Surfaces | Disponibilité | Loyer | Charges | Honoraires | Fiscal | Bail | Révision annuelle | Prix | Charges | Honoraires | Fiscal | Paiement Loyer | lot | Coworking | |
|---|---|---|---|---|---|---|---|---|---|---|---|---|---|---|---|---|---|---|
| RDC + R+1 | Locaux sociaux | 250,97 | 15 % HT du loyer annuel HT/HC à la charge du preneur, payables à la signature du bail | T.V.A. (20%) | ILAT Indice des Loyers des Activités Tertiaires | Trimestriel d'avance | ||||||||||||
| RDC + R+1 | Bureaux | 200,89 | 15 % HT du loyer annuel HT/HC à la charge du preneur, payables à la signature du bail | T.V.A. (20%) | ILAT Indice des Loyers des Activités Tertiaires | Trimestriel d'avance | ||||||||||||
| RDC + R+1 | Autres | 49,99 | 15 % HT du loyer annuel HT/HC à la charge du preneur, payables à la signature du bail | T.V.A. (20%) | ILAT Indice des Loyers des Activités Tertiaires | Trimestriel d'avance | ||||||||||||
| RDC + R+1 | Locaux techniques | 15,95 | 15 % HT du loyer annuel HT/HC à la charge du preneur, payables à la signature du bail | T.V.A. (20%) | ILAT Indice des Loyers des Activités Tertiaires | Trimestriel d'avance | ||||||||||||
| RDC | Activités | 1 238,29 | 15 % HT du loyer annuel HT/HC à la charge du preneur, payables à la signature du bail | T.V.A. (20%) | ILAT Indice des Loyers des Activités Tertiaires | Trimestriel d'avance | ||||||||||||
| Total Cellule Sud Ouest | Activités | 1 756,09 | Immédiate | 85,42 HT/HC/m²/an | 27 HT/m²/an | 15 % HT du loyer annuel HT/HC à la charge du preneur, payables à la signature du bail | T.V.A. (20%) | 6 ans fermes | ILAT Indice des Loyers des Activités Tertiaires | Trimestriel d'avance | Sud Ouest | |||||||
| Activités | 3 700 | 15 % HT du loyer annuel HT/HC à la charge du preneur, payables à la signature du bail | T.V.A. (20%) | ILAT Indice des Loyers des Activités Tertiaires | Trimestriel d'avance | |||||||||||||
| Bureaux | 1 021 | 15 % HT du loyer annuel HT/HC à la charge du preneur, payables à la signature du bail | T.V.A. (20%) | ILAT Indice des Loyers des Activités Tertiaires | Trimestriel d'avance | |||||||||||||
| Locaux sociaux | 534 | 15 % HT du loyer annuel HT/HC à la charge du preneur, payables à la signature du bail | T.V.A. (20%) | ILAT Indice des Loyers des Activités Tertiaires | Trimestriel d'avance | |||||||||||||
| Locaux techniques | 428 | 15 % HT du loyer annuel HT/HC à la charge du preneur, payables à la signature du bail | T.V.A. (20%) | ILAT Indice des Loyers des Activités Tertiaires | Trimestriel d'avance | |||||||||||||
| Autres | 90 | 15 % HT du loyer annuel HT/HC à la charge du preneur, payables à la signature du bail | T.V.A. (20%) | ILAT Indice des Loyers des Activités Tertiaires | Trimestriel d'avance | |||||||||||||
| Total Cellule Moitié Nord | Activités | 5 773 | Immédiate | 95,27 HT/HC/m²/an | 27 HT/m²/an | 15 % HT du loyer annuel HT/HC à la charge du preneur, payables à la signature du bail | T.V.A. (20%) | 9 ans | ILAT Indice des Loyers des Activités Tertiaires | Trimestriel d'avance | Moitié Nord | |||||||
| RDC | Activités | 521,31 | 15 % HT du loyer annuel HT/HC à la charge du preneur, payables à la signature du bail | T.V.A. (20%) | ILAT Indice des Loyers des Activités Tertiaires | Trimestriel d'avance | ||||||||||||
| RDC | Bureaux | 20,99 | 15 % HT du loyer annuel HT/HC à la charge du preneur, payables à la signature du bail | T.V.A. (20%) | ILAT Indice des Loyers des Activités Tertiaires | Trimestriel d'avance | ||||||||||||
| Total Cellule 1.1 | Activités | 542,3 | Septembre 2026 | 106,35 HT/HC/m²/an | 24 HT/m²/an | 15 % HT du loyer annuel HT/HC à la charge du preneur, payables à la signature du bail | T.V.A. (20%) | 6 ans fermes | ILAT Indice des Loyers des Activités Tertiaires | Trimestriel d'avance | 1.1 | |||||||
| RDC | Activités | 650,31 | 15 % HT du loyer annuel HT/HC à la charge du preneur, payables à la signature du bail | T.V.A. (20%) | ILAT Indice des Loyers des Activités Tertiaires | Trimestriel d'avance | ||||||||||||
| RDC | Bureaux | 138,89 | 15 % HT du loyer annuel HT/HC à la charge du preneur, payables à la signature du bail | T.V.A. (20%) | ILAT Indice des Loyers des Activités Tertiaires | Trimestriel d'avance | ||||||||||||
| Total Cellule 1.3 | Activités | 789,2 | Septembre 2026 | 111,16 HT/HC/m²/an | 24 HT/m²/an | 15 % HT du loyer annuel HT/HC à la charge du preneur, payables à la signature du bail | T.V.A. (20%) | 6 ans fermes | ILAT Indice des Loyers des Activités Tertiaires | Trimestriel d'avance | 1.3 | |||||||
| R+1 | Bureaux | 285,63 | 15 % HT du loyer annuel HT/HC à la charge du preneur, payables à la signature du bail | T.V.A. (20%) | ILAT Indice des Loyers des Activités Tertiaires | Trimestriel d'avance | ||||||||||||
| RDC | Bureaux | 289,07 | 15 % HT du loyer annuel HT/HC à la charge du preneur, payables à la signature du bail | T.V.A. (20%) | ILAT Indice des Loyers des Activités Tertiaires | Trimestriel d'avance | ||||||||||||
| Total Cellule 1.5 | Activités | 574,7 | Septembre 2026 | 140 HT/HC/m²/an | 24 HT/m²/an | 15 % HT du loyer annuel HT/HC à la charge du preneur, payables à la signature du bail | T.V.A. (20%) | 6 ans fermes | ILAT Indice des Loyers des Activités Tertiaires | Trimestriel d'avance | 1.5 | |||||||
| Total | 9 435,29 m² |




















































