Ref : 1285659-0V_MA
Vente Terrain
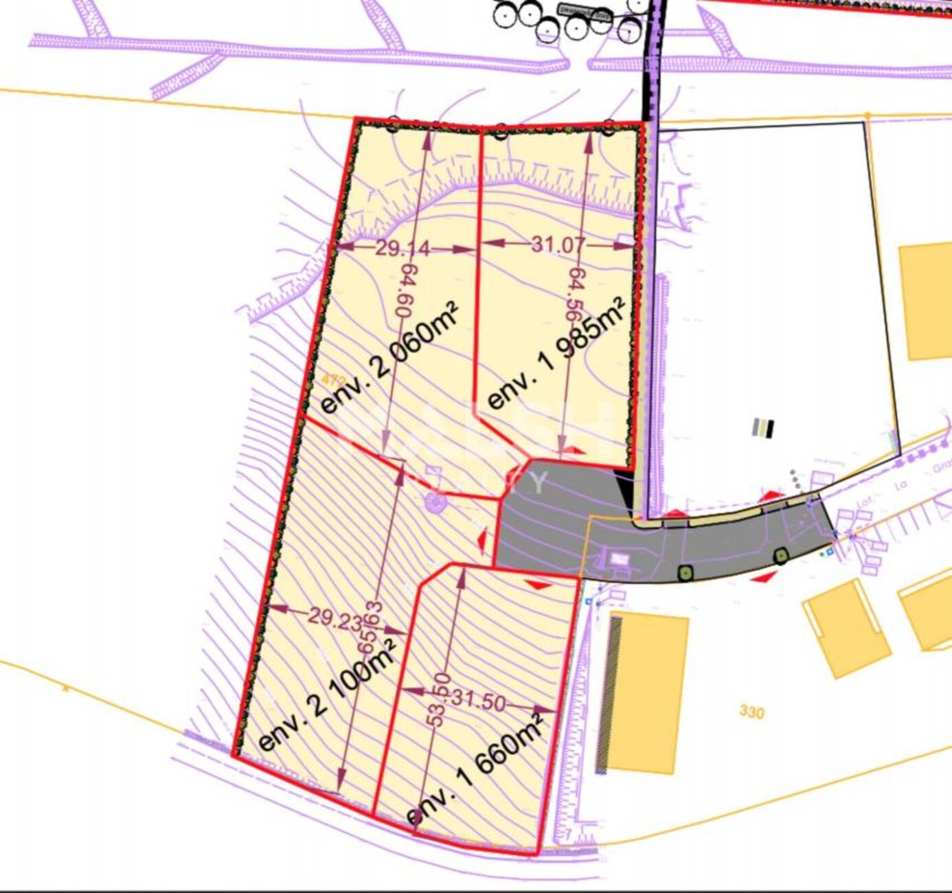
Vente Terrains - Baudemont / La Clayette (71800) - 41 073 m² divisibles à partir de 1660 m²
Amanzé (71800)
Prix : 1 232 190 €
Surface 41 073 m²
Description du bien
MALSH Realty & Property vous propose en exclusivité à la vente, 9 terrains d'une surface totale de plus de 41 000 m² pour la construction de locaux d'activités.
À destination artisanale, de stockage ou de production, les parcelles, vendues viabilisées et réseaux en attente, sont divisibles selon les besoins des acheteurs.
Ce local professionnel vous est présenté par
Vous souhaitez nous joindre ?
Surfaces des locaux
| Étage | Bâtiment | Type | Surfaces | Disponibilité | Loyer | Charges | Honoraires | Fiscal | Bail | Révision annuelle | Prix | Charges | Honoraires | Fiscal | Paiement Loyer | lot | Coworking | |
|---|---|---|---|---|---|---|---|---|---|---|---|---|---|---|---|---|---|---|
| Terrain | 2 100 | Après accord | 30 HT/m² | Inclus dans le prix de vente | TVA | 2 | ||||||||||||
| Terrain | 2 060 | Après accord | 30 HT/m² | Inclus dans le prix de vente | TVA | 3 | ||||||||||||
| Terrain | 1 985 | Après accord | 30 HT/m² | Inclus dans le prix de vente | TVA | 4 | ||||||||||||
| Terrain | 1 660 | Après accord | 30 HT/m² | Inclus dans le prix de vente | TVA | 1 | ||||||||||||
| Terrain | 11 800 | Après accord | 30 HT/m² | Inclus dans le prix de vente | TVA | 5 | ||||||||||||
| Terrain | 8 400 | Après accord | 30 HT/m² | Inclus dans le prix de vente | TVA | 4 | ||||||||||||
| Terrain | 6 020 | Après accord | 30 HT/m² | Inclus dans le prix de vente | TVA | 3 | ||||||||||||
| Terrain | 4 048 | Après accord | 30 HT/m² | Inclus dans le prix de vente | TVA | 2 | ||||||||||||
| Terrain | 3 000 | Après accord | 30 HT/m² | Inclus dans le prix de vente | TVA | 1 | ||||||||||||
| Total | 41 073 m² |
Localisation et accessibilité
- SCNF: Gare de la Clayette - Baudemont à 1 min
| Étage | Bâtiment | Type | Surfaces | Disponibilité | Loyer | Charges | Honoraires | Fiscal | Bail | Révision annuelle | Prix | Charges | Honoraires | Fiscal | Paiement Loyer | lot | Coworking | |
|---|---|---|---|---|---|---|---|---|---|---|---|---|---|---|---|---|---|---|
| Terrain | 2 100 | Après accord | 30 HT/m² | Inclus dans le prix de vente | TVA | 2 | ||||||||||||
| Terrain | 2 060 | Après accord | 30 HT/m² | Inclus dans le prix de vente | TVA | 3 | ||||||||||||
| Terrain | 1 985 | Après accord | 30 HT/m² | Inclus dans le prix de vente | TVA | 4 | ||||||||||||
| Terrain | 1 660 | Après accord | 30 HT/m² | Inclus dans le prix de vente | TVA | 1 | ||||||||||||
| Terrain | 11 800 | Après accord | 30 HT/m² | Inclus dans le prix de vente | TVA | 5 | ||||||||||||
| Terrain | 8 400 | Après accord | 30 HT/m² | Inclus dans le prix de vente | TVA | 4 | ||||||||||||
| Terrain | 6 020 | Après accord | 30 HT/m² | Inclus dans le prix de vente | TVA | 3 | ||||||||||||
| Terrain | 4 048 | Après accord | 30 HT/m² | Inclus dans le prix de vente | TVA | 2 | ||||||||||||
| Terrain | 3 000 | Après accord | 30 HT/m² | Inclus dans le prix de vente | TVA | 1 | ||||||||||||
| Total | 41 073 m² |
















































