Ref : 1675852-0V_MA
Vente Bureau
Vente Bâtiment de bureaux indépendant en très bon état de 570 m² sur son terrain de 1997 m² - Thizy les Bourgs (69240)
Bourg-de-Thizy (69240)
Prix : 520 000 €
Surface 570 m²
Description du bien
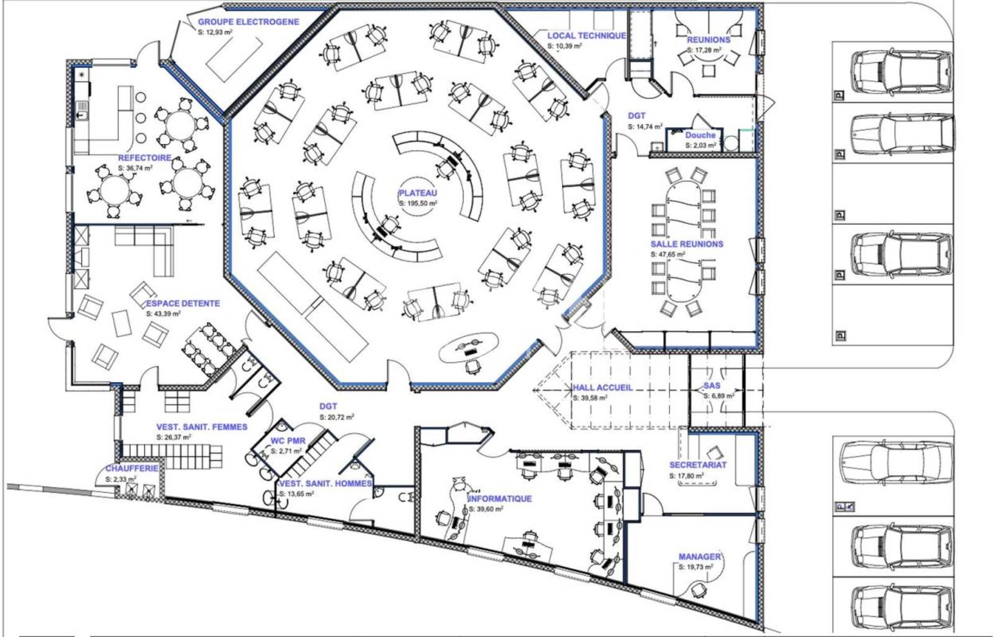
MALSH Realty vous propose à la vente à proximité immédiate du centre-ville de Thizy-les-Bourgs et à 20 min de Roanne, un bâtiment indépendant de bureaux de plain-pied en très bon état d'une surface totale d'environ 570 m², sur son terrain clos de 1997 m². Idéal pour un siège de PME, centre de services, activité de back-office, professions tertiaires - support. Ces bureaux sont aménagés, câblés et climatisés et disposent de locaux techniques, de locaux sociaux et d'un jardin avec terrasse.
Disponible immédiatement !
Prestations du bien
- Terrain de 1 997 m² clos et aménagé
- Accès véhicules légers faciles
- Aire de manoeuvre
- Entrée piétonne indépendante
- 20 places de stationnement environ dont des places PMR
- Bureaux aménagés, câblés, avec faux plafonds techniques
- Plancher technique avec plinthes périphériques
- Éclairage LED
- Volets roulants centralisés
- Chauffage au sol
- Climatisation en faux plafond
- Salle de bain avec douche
- Accueil / entrée indépendante donnant sur le parking et le jardin
- Jardin avec terrasse
- Coin détente / salle de pause
- Salle serveur dédiée, sécurisée et climatisée
- Groupe électrogène avec cuve GNR et Réservoir d'eau (autonomie renforcée)
- Espaces de bureaux opérationnels immédiatement
- Possibilités d'adaptation en open-space ou bureaux cloisonnés selon les besoins de
- l'occupant
- Espaces techniques et locaux de services (salle serveur, locaux annexes.)
- Immeuble indépendant
Diagnostic énergétiques
Diagnostic de performance énergétique
D 208
Indice d'émission de gaz à effet de serre
D 25
Logement très performant
Logement extrêmement consommateur d'énergie
Peu d'émission de GES
Emissions de GES très importantes
Ce local professionnel vous est présenté par
Vous souhaitez nous joindre ?
Surfaces des locaux
| Étage | Bâtiment | Type | Surfaces | Disponibilité | Loyer | Charges | Honoraires | Fiscal | Bail | Révision annuelle | Prix | Charges | Honoraires | Fiscal | Paiement Loyer | lot | Coworking | |
|---|---|---|---|---|---|---|---|---|---|---|---|---|---|---|---|---|---|---|
| Terrain | 1 997 | 2 % HT du prix de vente HDE, à la charge de l'acquéreur, payables à la signature de l'acte | Droits d'enregistrement | |||||||||||||||
| RDC | Bureaux | 570 | 2 % HT du prix de vente HDE, à la charge de l'acquéreur, payables à la signature de l'acte | Droits d'enregistrement | ||||||||||||||
| Total Cellule | Bureaux | 570 | Immédiate | 912,28 HDE/m² | 2 % HT du prix de vente HDE, à la charge de l'acquéreur, payables à la signature de l'acte | Droits d'enregistrement | ||||||||||||
| Total | 2 567 m² |
Localisation et accessibilité
- Bus: Bus TCL lignes 237 et 240
- Autoroute: Accès A89 Tarare Ouest à 28 min et Accès N7 Roanne à 20 min
| Étage | Bâtiment | Type | Surfaces | Disponibilité | Loyer | Charges | Honoraires | Fiscal | Bail | Révision annuelle | Prix | Charges | Honoraires | Fiscal | Paiement Loyer | lot | Coworking | |
|---|---|---|---|---|---|---|---|---|---|---|---|---|---|---|---|---|---|---|
| Terrain | 1 997 | 2 % HT du prix de vente HDE, à la charge de l'acquéreur, payables à la signature de l'acte | Droits d'enregistrement | |||||||||||||||
| RDC | Bureaux | 570 | 2 % HT du prix de vente HDE, à la charge de l'acquéreur, payables à la signature de l'acte | Droits d'enregistrement | ||||||||||||||
| Total Cellule | Bureaux | 570 | Immédiate | 912,28 HDE/m² | 2 % HT du prix de vente HDE, à la charge de l'acquéreur, payables à la signature de l'acte | Droits d'enregistrement | ||||||||||||
| Total | 2 567 m² |

















































