Ref : 1236358-0_MA
Vente Bureau
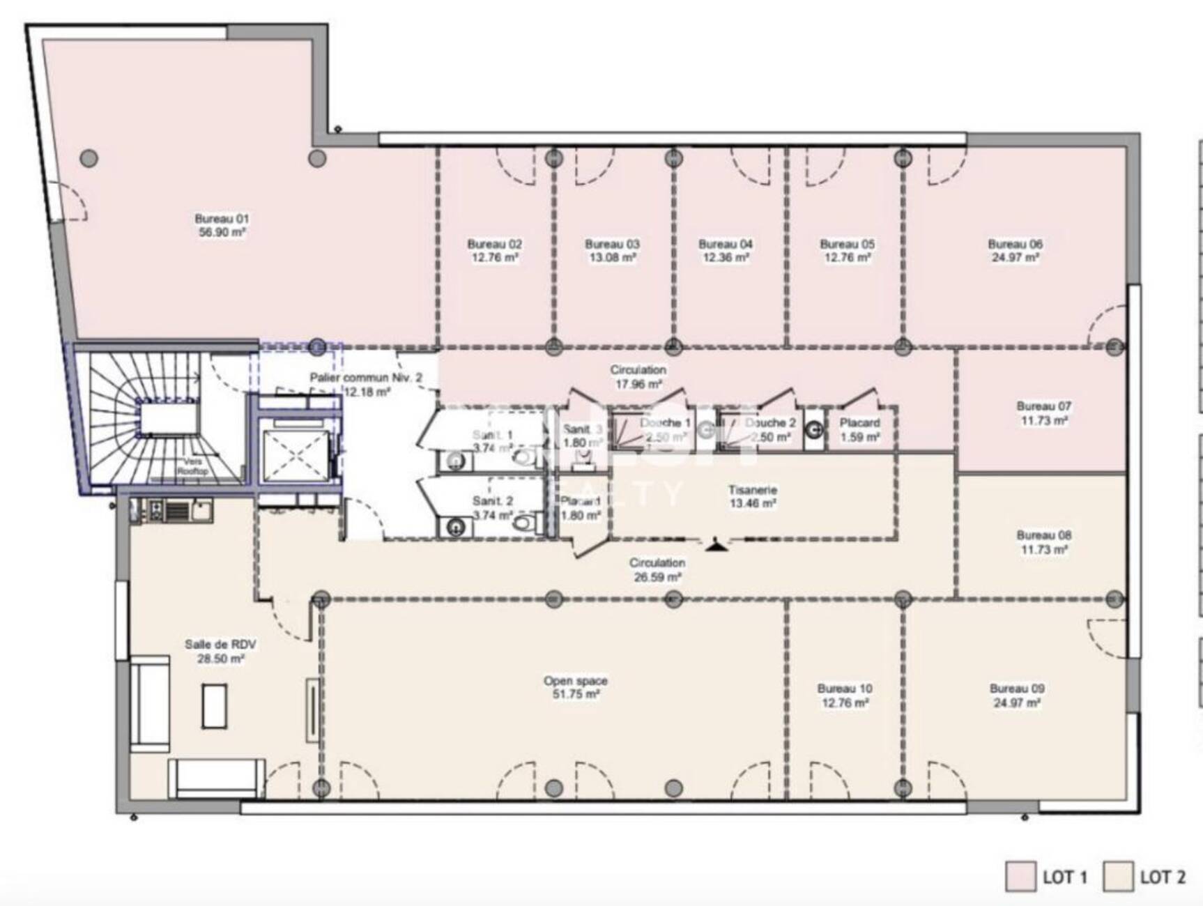
DARDILLY - Bureaux - A LOUER ou A VENDRE - 370 m²
Dardilly (69570)
Prix : 1 054 500 €
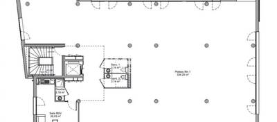
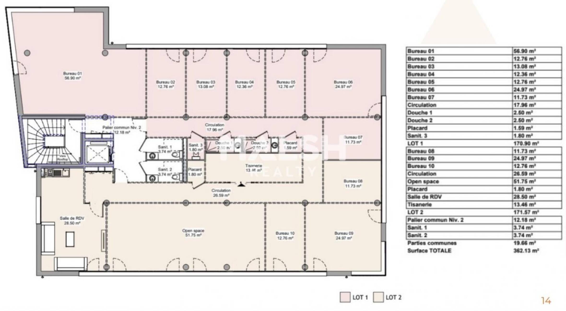
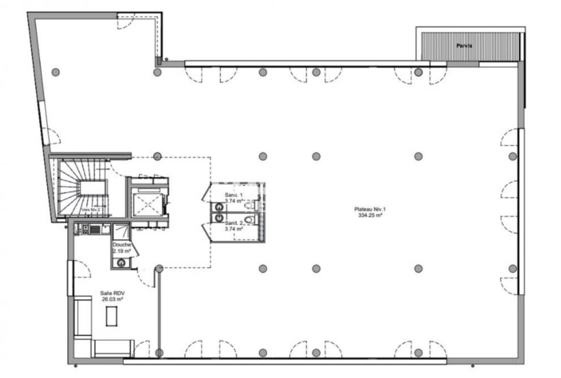
Surface 370 m²
Divisible dès 170 m²
Description du bien
MALSH Realty vous propose, à la vente ou à la location, une surface de bureaux de 370 m² située dans la zone de TECHLID, sur la commune de Dardilly. Des places de stationnement complètent ce bien.
Prestations du bien
- Etage indépendant en cas de location de la totalité du plateau
- Bureaux très lumineux
- Faux plancher technique
- Rooftop partagé
- Douches
- Climatisation réversible
- Ascenseur
- Local vélos
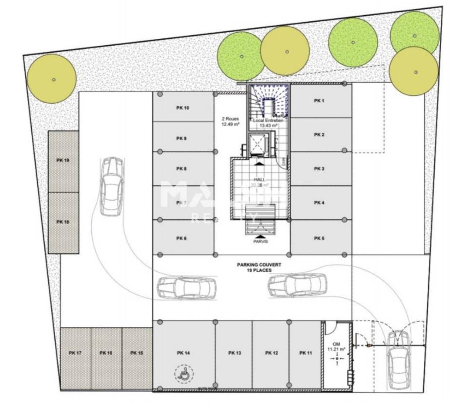
- 9 places de stationnement
Informations financières
- Bail : commercial 3-6-9 ans
- Dépôt de garantie : 3 mois de loyer HT/HC
Ce local professionnel vous est présenté par
Vous souhaitez nous joindre ?
Surfaces des locaux
| Étage | Bâtiment | Type | Surfaces | Disponibilité | Loyer | Charges | Honoraires | Fiscal | Bail | Révision annuelle | Prix | Charges | Honoraires | Fiscal | Paiement Loyer | lot | Coworking | |
|---|---|---|---|---|---|---|---|---|---|---|---|---|---|---|---|---|---|---|
| 3 | Terrasse | 261,88 | Immédiate | 15 % HT du loyer annuel HT à la charge du preneur, payables à la signature du bail | T.V.A. (20%) | commercial 3-6-9 ans | ILAT Indice des Loyers des Activités Tertiaires | 400 m² HD | 2,50 % HT du montant de la vente HDE, à la charge de l'acquéreur | Droits d'enregistrement | Trimestriel d'avance | |||||||
| 1 | Bureaux | 370 | Immédiate | 145 HT/HC/m²/an | 15 % HT du loyer annuel HT à la charge du preneur, payables à la signature du bail | T.V.A. (20%) | commercial 3-6-9 ans | ILAT Indice des Loyers des Activités Tertiaires | 2 850 m² HD | 2,50 % HT du montant de la vente HDE, à la charge de l'acquéreur | Droits d'enregistrement | Trimestriel d'avance | ||||||
| RDC | Parkings | - | Immédiate | 15 % HT du loyer annuel HT à la charge du preneur, payables à la signature du bail | T.V.A. (20%) | commercial 3-6-9 ans | ILAT Indice des Loyers des Activités Tertiaires | 8 500 m² HD | 2,50 % HT du montant de la vente HDE, à la charge de l'acquéreur | Droits d'enregistrement | Trimestriel d'avance | |||||||
| Total | 631,88 m² | |||||||||||||||||
| 9 | ||||||||||||||||||
Localisation et accessibilité
- Bus: Lignes : 3, 10, 89
- SCNF: Gare TER Dardilly Les Mouilles à 4 min, Gare TER Dardilly Le Jubin à 6 min
- Autoroute: A6, A89, Périphérique Nord (TEO) à 5 min
Ces biens pourraient vous intéresser
| Étage | Bâtiment | Type | Surfaces | Disponibilité | Loyer | Charges | Honoraires | Fiscal | Bail | Révision annuelle | Prix | Charges | Honoraires | Fiscal | Paiement Loyer | lot | Coworking | |
|---|---|---|---|---|---|---|---|---|---|---|---|---|---|---|---|---|---|---|
| 3 | Terrasse | 261,88 | Immédiate | 15 % HT du loyer annuel HT à la charge du preneur, payables à la signature du bail | T.V.A. (20%) | commercial 3-6-9 ans | ILAT Indice des Loyers des Activités Tertiaires | 400 m² HD | 2,50 % HT du montant de la vente HDE, à la charge de l'acquéreur | Droits d'enregistrement | Trimestriel d'avance | |||||||
| 1 | Bureaux | 370 | Immédiate | 145 HT/HC/m²/an | 15 % HT du loyer annuel HT à la charge du preneur, payables à la signature du bail | T.V.A. (20%) | commercial 3-6-9 ans | ILAT Indice des Loyers des Activités Tertiaires | 2 850 m² HD | 2,50 % HT du montant de la vente HDE, à la charge de l'acquéreur | Droits d'enregistrement | Trimestriel d'avance | ||||||
| RDC | Parkings | - | Immédiate | 15 % HT du loyer annuel HT à la charge du preneur, payables à la signature du bail | T.V.A. (20%) | commercial 3-6-9 ans | ILAT Indice des Loyers des Activités Tertiaires | 8 500 m² HD | 2,50 % HT du montant de la vente HDE, à la charge de l'acquéreur | Droits d'enregistrement | Trimestriel d'avance | |||||||
| Total | 631,88 m² | |||||||||||||||||
| 9 | ||||||||||||||||||





































