Ref : 13_1085_BA
Vente Bureau
BUREAUX A VENDRE
Éguilles (13510)
Prix : 2 950 500 €
Surface 831 m²
Divisible dès 99 m²
Description du bien
BAUX LOCAUX IMMOBILIER, vous propose A LA VENTE 831 m2 de bureaux divisibles neufs aux belles prestations à partir de 99m2 pour une partie des bureaux
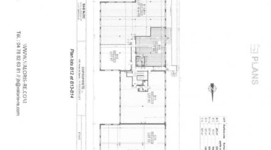
Les bureaux se composent de la façon suivante:
LOT C10: divisible en deux lots de 187m2 ( 374m2) ( C11+C12)
12 places de parking privatifs pour les bureaux
26 places en stationnement libre pour l'ensemble des commerces
- Situé au 1er étage sans ascenseur
- Livrés en open space, peinture blanche au mur
- Menuiserie aluminium, fenêtre double vitrage avec ouvrant à la française
- Faux plafond avec dalle de 60X60, HSFP de 2.60m
- Sol souple imitation chêne classification U4
- Eclairage par pavé LED en faux plafond
- Climatisation réversible en faux plafond
- Parking identifié au nom de la société, en option possibilité de pré équipement pour véhicules
- électriques ( hors borne)
- Sanitaire: 2 portes d'entrée stratifié, 3 points/ 1 bloc sanitaireLOT B13-B14: terrasse privative de 25m2
LOT B13 + B14: bureaux de 357m2 en open space
LOT B12: bureau de 99m2 en open space
- Ascenseur dans le hall B. toutes les prestations sont identiques aux bureaux C10
- 13 places de parking privatif
- Idéalement situé , à l'entrée d'une zone d'activité et proche des axes routiers d'Aix en Provence, Les Milles, Salon de ProvencePour toutes visites merci de nous contacter
Prestations du bien
- EDF Tarif jaune
- Fibre optique
- Issue de secours
- Luminaires faux plafond
- Nbre Parkings extérieurs :
- Parquet
- Sanitaires privés
- Terrain bitumé
Ce local professionnel vous est présenté par
Vous souhaitez nous joindre ?
Localisation et accessibilité
Ces biens pourraient vous intéresser
| Batiment - Lot | Etage | Type | Surface |
| LOT C10 | 1ER sans ascenseur 1220000€ + 4940€ | PLATEAU | 375m2 |
| LOT B12 | 1ER avec ascenseur 350000€+1320€ | PLATEAU | 99m2 |
| LOT B13+14 | 1ER avec ascenseur 1240000€+4720€ | PLATEAU | 357m2 |













































