Ref : 1287015-0V_MA
Vente Bureau
Bureau Lyon
Lyon (69003)
Prix : 650 000 €
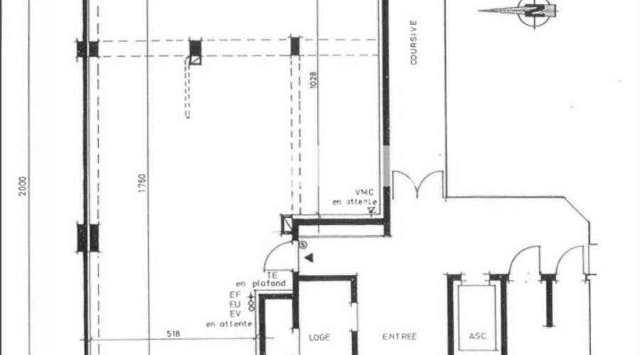
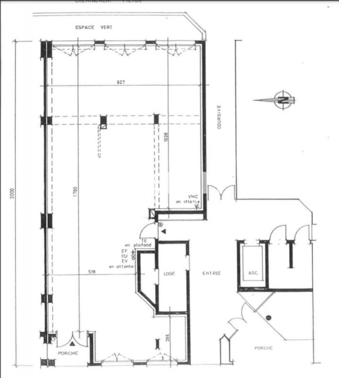
Surface 144 m²
Description du bien
MALSH Realty & Property vous propose une offre rare à l'acquisition sur Lyon 3ème, des bureaux très lumineux de 144 m² en rez-de-chaussée d'un immeuble résidentiel avec une entrée sur rue et une autre par le hall de l'immeuble.
Prestations du bien
- Sol carrelage
- Luminaires encastrés
- Sanitaires privatifs
- Chauffage individuel électrique
- Deux entrées : sur rue et par le hall de l'immeuble
Diagnostic énergétiques
Diagnostic de performance énergétique
B 71
Indice d'émission de gaz à effet de serre
A 1
Logement très performant
Logement extrêmement consommateur d'énergie
Peu d'émission de GES
Emissions de GES très importantes
Ce local professionnel vous est présenté par
Vous souhaitez nous joindre ?
Surfaces des locaux
| Étage | Bâtiment | Type | Surfaces | Disponibilité | Loyer | Charges | Honoraires | Fiscal | Bail | Révision annuelle | Prix | Charges | Honoraires | Fiscal | Paiement Loyer | lot | Coworking | |
|---|---|---|---|---|---|---|---|---|---|---|---|---|---|---|---|---|---|---|
| RDC | Bureaux | 144 | Immédiate | 4 722,22 m² HD | 5 % HT du prix de vente HD à la charge de l'acquéreur, payable à la signature de l'acte | Droits d'enregistrement | ||||||||||||
| Total | 144 m² |
Localisation et accessibilité
- Bus: Lignes C7,C9,C11C13,C25
- SCNF: Gare Part-Dieu
- Metro: Métro D
- Tramway: Tram T4
| Étage | Bâtiment | Type | Surfaces | Disponibilité | Loyer | Charges | Honoraires | Fiscal | Bail | Révision annuelle | Prix | Charges | Honoraires | Fiscal | Paiement Loyer | lot | Coworking | |
|---|---|---|---|---|---|---|---|---|---|---|---|---|---|---|---|---|---|---|
| RDC | Bureaux | 144 | Immédiate | 4 722,22 m² HD | 5 % HT du prix de vente HD à la charge de l'acquéreur, payable à la signature de l'acte | Droits d'enregistrement | ||||||||||||
| Total | 144 m² |


































































