Ref : 1122399-0_MA
Vente Bureau
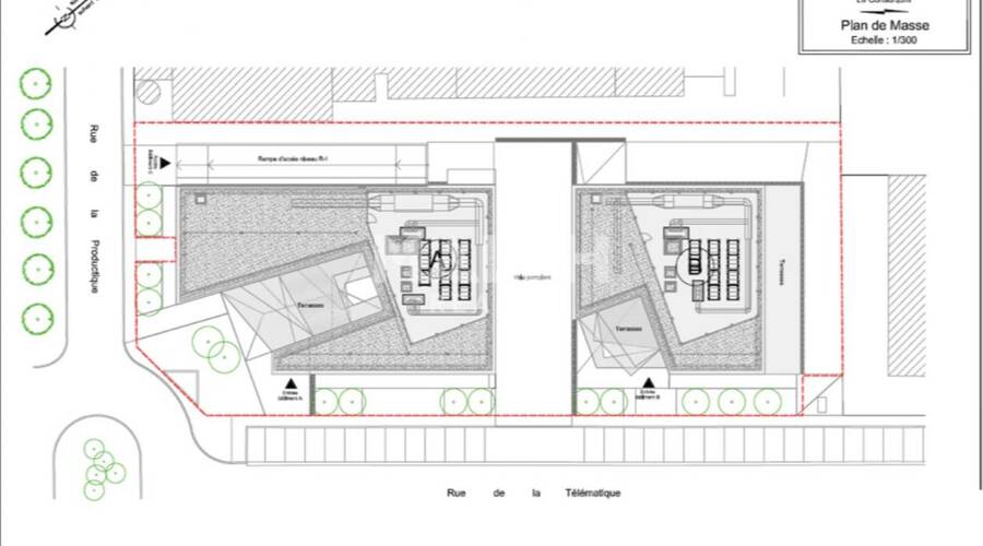
SAINT ETIENNE - Bureaux neufs de 1127 m² divisibles à partir de 179 m² - A VENDRE OU A LOUER
Saint-Étienne (42000)
Prix : 2 809 899 €
Surface 1 035 m²
Divisible dès 194 m²
Description du bien
MALSH Realty & Property vous propose plusieurs lots de bureaux dans un immeuble neuf de 5 étages idéalement placé au coeur du Technopole de St etienne. Lumineux et belle vue. Conforme aux Réglementations Acoustiques, Thermique (RT 2012) et d'accessibilité handicapés.
Les travaux de second oeuvre sont à la charge du preneur. Cela permet de faire des bureaux sur-mesure.
Prestations du bien
- Parkings sous-sol / Accès ascenseur
- Bureaux
- Sanitaires
- Ascenseur
- Murs : béton branché
- Sol : dalle béton
- Chaque lot est livré aménagé non cloisonné
- Faux plafond dalles minérales avec luminaires encastrés
- Sol moquette
- Climatisation réversible
- Sanitaires normes PMR
Informations financières
- Informations location :
Conditions particulières à la location : Le 6-03-2024 :
155 euros HT/HC/m2 brut béton, en l'état
170 euros HT/HC/m2 aménagé non cloisonné
185 euros HT/HC/m2 terminé - Dépôt de garantie : 3 mois de loyer HT/HC
Ce local professionnel vous est présenté par
Vous souhaitez nous joindre ?
Surfaces des locaux
| Étage | Bâtiment | Type | Surfaces | Disponibilité | Loyer | Charges | Honoraires | Fiscal | Bail | Révision annuelle | Prix | Charges | Honoraires | Fiscal | Paiement Loyer | lot | Coworking | |
|---|---|---|---|---|---|---|---|---|---|---|---|---|---|---|---|---|---|---|
| 2 | Bureaux | 335,5 | 185 HT/HC/m²/an | 20% HT du loyer annuel HT à la charge du bailleur, payables à la signature du bail | T.V.A. (20%) | ILAT Indice des Loyers des Activités Tertiaires | 1 850 HT/m² | 2% HT du montant de la vente HDE, à la charge de l'acquéreur | TVA | Trimestriel d'avance | ||||||||
| 2 | Terrasse | 33 | 75 HT/HC/m²/an | 20% HT du loyer annuel HT à la charge du bailleur, payables à la signature du bail | T.V.A. (20%) | ILAT Indice des Loyers des Activités Tertiaires | 500 HT/m² | 2% HT du montant de la vente HDE, à la charge de l'acquéreur | TVA | Trimestriel d'avance | ||||||||
| Parkings | - | 1 000 HT/HC/Unité/an | 20% HT du loyer annuel HT à la charge du bailleur, payables à la signature du bail | T.V.A. (20%) | ILAT Indice des Loyers des Activités Tertiaires | 11 000 HT/Unité | 2% HT du montant de la vente HDE, à la charge de l'acquéreur | TVA | Trimestriel d'avance | |||||||||
| Total Cellule A2-1 | Bureaux | 335,5 | Immédiate | 20% HT du loyer annuel HT à la charge du bailleur, payables à la signature du bail | T.V.A. (20%) | ILAT Indice des Loyers des Activités Tertiaires | 2% HT du montant de la vente HDE, à la charge de l'acquéreur | TVA | Trimestriel d'avance | A2-1 | ||||||||
| 1 | Bureaux | 210,5 | 185 HT/HC/m²/an | 20% HT du loyer annuel HT à la charge du bailleur, payables à la signature du bail | T.V.A. (20%) | ILAT Indice des Loyers des Activités Tertiaires | 1 850 HT/m² | 2% HT du montant de la vente HDE, à la charge de l'acquéreur | TVA | Trimestriel d'avance | ||||||||
| 1 | Terrasse | 39 | 75 HT/HC/m²/an | 20% HT du loyer annuel HT à la charge du bailleur, payables à la signature du bail | T.V.A. (20%) | ILAT Indice des Loyers des Activités Tertiaires | 500 HT/m² | 2% HT du montant de la vente HDE, à la charge de l'acquéreur | TVA | Trimestriel d'avance | ||||||||
| Parkings | - | 1 000 HT/HC/Unité/an | 20% HT du loyer annuel HT à la charge du bailleur, payables à la signature du bail | T.V.A. (20%) | ILAT Indice des Loyers des Activités Tertiaires | 11 000 HT/Unité | 2% HT du montant de la vente HDE, à la charge de l'acquéreur | TVA | Trimestriel d'avance | |||||||||
| Total Cellule B1-1 | Bureaux | 210,5 | Immédiate | 20% HT du loyer annuel HT à la charge du bailleur, payables à la signature du bail | T.V.A. (20%) | ILAT Indice des Loyers des Activités Tertiaires | 2% HT du montant de la vente HDE, à la charge de l'acquéreur | TVA | Trimestriel d'avance | B1-1 | ||||||||
| 1 | Bureaux | 294,5 | 185 HT/HC/m²/an | 20% HT du loyer annuel HT à la charge du bailleur, payables à la signature du bail | T.V.A. (20%) | ILAT Indice des Loyers des Activités Tertiaires | 1 850 HT/m² | 2% HT du montant de la vente HDE, à la charge de l'acquéreur | TVA | Trimestriel d'avance | ||||||||
| 1 | Terrasse | 28 | 75 HT/HC/m²/an | 20% HT du loyer annuel HT à la charge du bailleur, payables à la signature du bail | T.V.A. (20%) | ILAT Indice des Loyers des Activités Tertiaires | 500 HT/m² | 2% HT du montant de la vente HDE, à la charge de l'acquéreur | TVA | Trimestriel d'avance | ||||||||
| Parkings | - | 1 000 HT/HC/Unité/an | 20% HT du loyer annuel HT à la charge du bailleur, payables à la signature du bail | T.V.A. (20%) | ILAT Indice des Loyers des Activités Tertiaires | 11 000 HT/Unité | 2% HT du montant de la vente HDE, à la charge de l'acquéreur | TVA | Trimestriel d'avance | |||||||||
| Total Cellule B1-2 | Bureaux | 294,5 | Immédiate | 20% HT du loyer annuel HT à la charge du bailleur, payables à la signature du bail | T.V.A. (20%) | ILAT Indice des Loyers des Activités Tertiaires | 1 916,34 HT/m² | 2% HT du montant de la vente HDE, à la charge de l'acquéreur | TVA | Trimestriel d'avance | B1-2 | |||||||
| 3 | Bureaux | 194,5 | 185 HT/HC/m²/an | 20% HT du loyer annuel HT à la charge du bailleur, payables à la signature du bail | T.V.A. (20%) | ILAT Indice des Loyers des Activités Tertiaires | 1 850 HT/m² | 2% HT du montant de la vente HDE, à la charge de l'acquéreur | TVA | Trimestriel d'avance | ||||||||
| Parkings | - | 1 000 HT/HC/Unité/an | 20% HT du loyer annuel HT à la charge du bailleur, payables à la signature du bail | T.V.A. (20%) | ILAT Indice des Loyers des Activités Tertiaires | 11 000 HT/Unité | 2% HT du montant de la vente HDE, à la charge de l'acquéreur | TVA | Trimestriel d'avance | |||||||||
| Total Cellule B3-2 | Bureaux | 194,5 | Immédiate | 20% HT du loyer annuel HT à la charge du bailleur, payables à la signature du bail | T.V.A. (20%) | ILAT Indice des Loyers des Activités Tertiaires | 1 850 HT/m² | 2% HT du montant de la vente HDE, à la charge de l'acquéreur | TVA | Trimestriel d'avance | B3-2 | |||||||
| Total | 1 135 m² | |||||||||||||||||
| 3 2 2 en sous-sol 2 en sous-sol | ||||||||||||||||||
Localisation et accessibilité
- Bus: Bus
- Autoroute: Accès par l'autoroute A72
Ces biens pourraient vous intéresser
| Étage | Bâtiment | Type | Surfaces | Disponibilité | Loyer | Charges | Honoraires | Fiscal | Bail | Révision annuelle | Prix | Charges | Honoraires | Fiscal | Paiement Loyer | lot | Coworking | |
|---|---|---|---|---|---|---|---|---|---|---|---|---|---|---|---|---|---|---|
| 2 | Bureaux | 335,5 | 185 HT/HC/m²/an | 20% HT du loyer annuel HT à la charge du bailleur, payables à la signature du bail | T.V.A. (20%) | ILAT Indice des Loyers des Activités Tertiaires | 1 850 HT/m² | 2% HT du montant de la vente HDE, à la charge de l'acquéreur | TVA | Trimestriel d'avance | ||||||||
| 2 | Terrasse | 33 | 75 HT/HC/m²/an | 20% HT du loyer annuel HT à la charge du bailleur, payables à la signature du bail | T.V.A. (20%) | ILAT Indice des Loyers des Activités Tertiaires | 500 HT/m² | 2% HT du montant de la vente HDE, à la charge de l'acquéreur | TVA | Trimestriel d'avance | ||||||||
| Parkings | - | 1 000 HT/HC/Unité/an | 20% HT du loyer annuel HT à la charge du bailleur, payables à la signature du bail | T.V.A. (20%) | ILAT Indice des Loyers des Activités Tertiaires | 11 000 HT/Unité | 2% HT du montant de la vente HDE, à la charge de l'acquéreur | TVA | Trimestriel d'avance | |||||||||
| Total Cellule A2-1 | Bureaux | 335,5 | Immédiate | 20% HT du loyer annuel HT à la charge du bailleur, payables à la signature du bail | T.V.A. (20%) | ILAT Indice des Loyers des Activités Tertiaires | 2% HT du montant de la vente HDE, à la charge de l'acquéreur | TVA | Trimestriel d'avance | A2-1 | ||||||||
| 1 | Bureaux | 210,5 | 185 HT/HC/m²/an | 20% HT du loyer annuel HT à la charge du bailleur, payables à la signature du bail | T.V.A. (20%) | ILAT Indice des Loyers des Activités Tertiaires | 1 850 HT/m² | 2% HT du montant de la vente HDE, à la charge de l'acquéreur | TVA | Trimestriel d'avance | ||||||||
| 1 | Terrasse | 39 | 75 HT/HC/m²/an | 20% HT du loyer annuel HT à la charge du bailleur, payables à la signature du bail | T.V.A. (20%) | ILAT Indice des Loyers des Activités Tertiaires | 500 HT/m² | 2% HT du montant de la vente HDE, à la charge de l'acquéreur | TVA | Trimestriel d'avance | ||||||||
| Parkings | - | 1 000 HT/HC/Unité/an | 20% HT du loyer annuel HT à la charge du bailleur, payables à la signature du bail | T.V.A. (20%) | ILAT Indice des Loyers des Activités Tertiaires | 11 000 HT/Unité | 2% HT du montant de la vente HDE, à la charge de l'acquéreur | TVA | Trimestriel d'avance | |||||||||
| Total Cellule B1-1 | Bureaux | 210,5 | Immédiate | 20% HT du loyer annuel HT à la charge du bailleur, payables à la signature du bail | T.V.A. (20%) | ILAT Indice des Loyers des Activités Tertiaires | 2% HT du montant de la vente HDE, à la charge de l'acquéreur | TVA | Trimestriel d'avance | B1-1 | ||||||||
| 1 | Bureaux | 294,5 | 185 HT/HC/m²/an | 20% HT du loyer annuel HT à la charge du bailleur, payables à la signature du bail | T.V.A. (20%) | ILAT Indice des Loyers des Activités Tertiaires | 1 850 HT/m² | 2% HT du montant de la vente HDE, à la charge de l'acquéreur | TVA | Trimestriel d'avance | ||||||||
| 1 | Terrasse | 28 | 75 HT/HC/m²/an | 20% HT du loyer annuel HT à la charge du bailleur, payables à la signature du bail | T.V.A. (20%) | ILAT Indice des Loyers des Activités Tertiaires | 500 HT/m² | 2% HT du montant de la vente HDE, à la charge de l'acquéreur | TVA | Trimestriel d'avance | ||||||||
| Parkings | - | 1 000 HT/HC/Unité/an | 20% HT du loyer annuel HT à la charge du bailleur, payables à la signature du bail | T.V.A. (20%) | ILAT Indice des Loyers des Activités Tertiaires | 11 000 HT/Unité | 2% HT du montant de la vente HDE, à la charge de l'acquéreur | TVA | Trimestriel d'avance | |||||||||
| Total Cellule B1-2 | Bureaux | 294,5 | Immédiate | 20% HT du loyer annuel HT à la charge du bailleur, payables à la signature du bail | T.V.A. (20%) | ILAT Indice des Loyers des Activités Tertiaires | 1 916,34 HT/m² | 2% HT du montant de la vente HDE, à la charge de l'acquéreur | TVA | Trimestriel d'avance | B1-2 | |||||||
| 3 | Bureaux | 194,5 | 185 HT/HC/m²/an | 20% HT du loyer annuel HT à la charge du bailleur, payables à la signature du bail | T.V.A. (20%) | ILAT Indice des Loyers des Activités Tertiaires | 1 850 HT/m² | 2% HT du montant de la vente HDE, à la charge de l'acquéreur | TVA | Trimestriel d'avance | ||||||||
| Parkings | - | 1 000 HT/HC/Unité/an | 20% HT du loyer annuel HT à la charge du bailleur, payables à la signature du bail | T.V.A. (20%) | ILAT Indice des Loyers des Activités Tertiaires | 11 000 HT/Unité | 2% HT du montant de la vente HDE, à la charge de l'acquéreur | TVA | Trimestriel d'avance | |||||||||
| Total Cellule B3-2 | Bureaux | 194,5 | Immédiate | 20% HT du loyer annuel HT à la charge du bailleur, payables à la signature du bail | T.V.A. (20%) | ILAT Indice des Loyers des Activités Tertiaires | 1 850 HT/m² | 2% HT du montant de la vente HDE, à la charge de l'acquéreur | TVA | Trimestriel d'avance | B3-2 | |||||||
| Total | 1 135 m² | |||||||||||||||||
| 3 2 2 en sous-sol 2 en sous-sol | ||||||||||||||||||



































