Indisponible
Ref : 13_001961_SV
Cession Local commercial
IMMEUBLE COMMERCIAL A LOUER
Marseille (13006)
Surface 310 m²
Description du bien
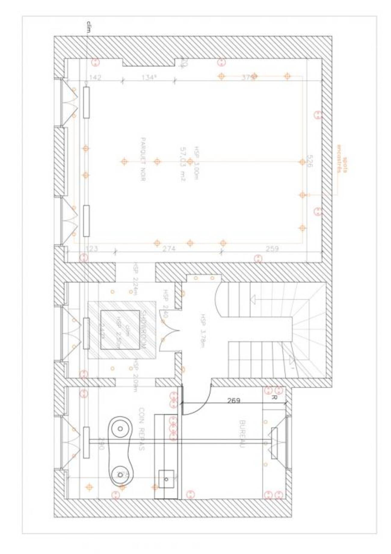
SVRE vous propose à la location un immeuble commercial de 310 m² en R+3. Les activités tertiaires et de services sont possibles.
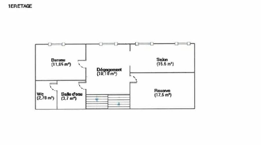
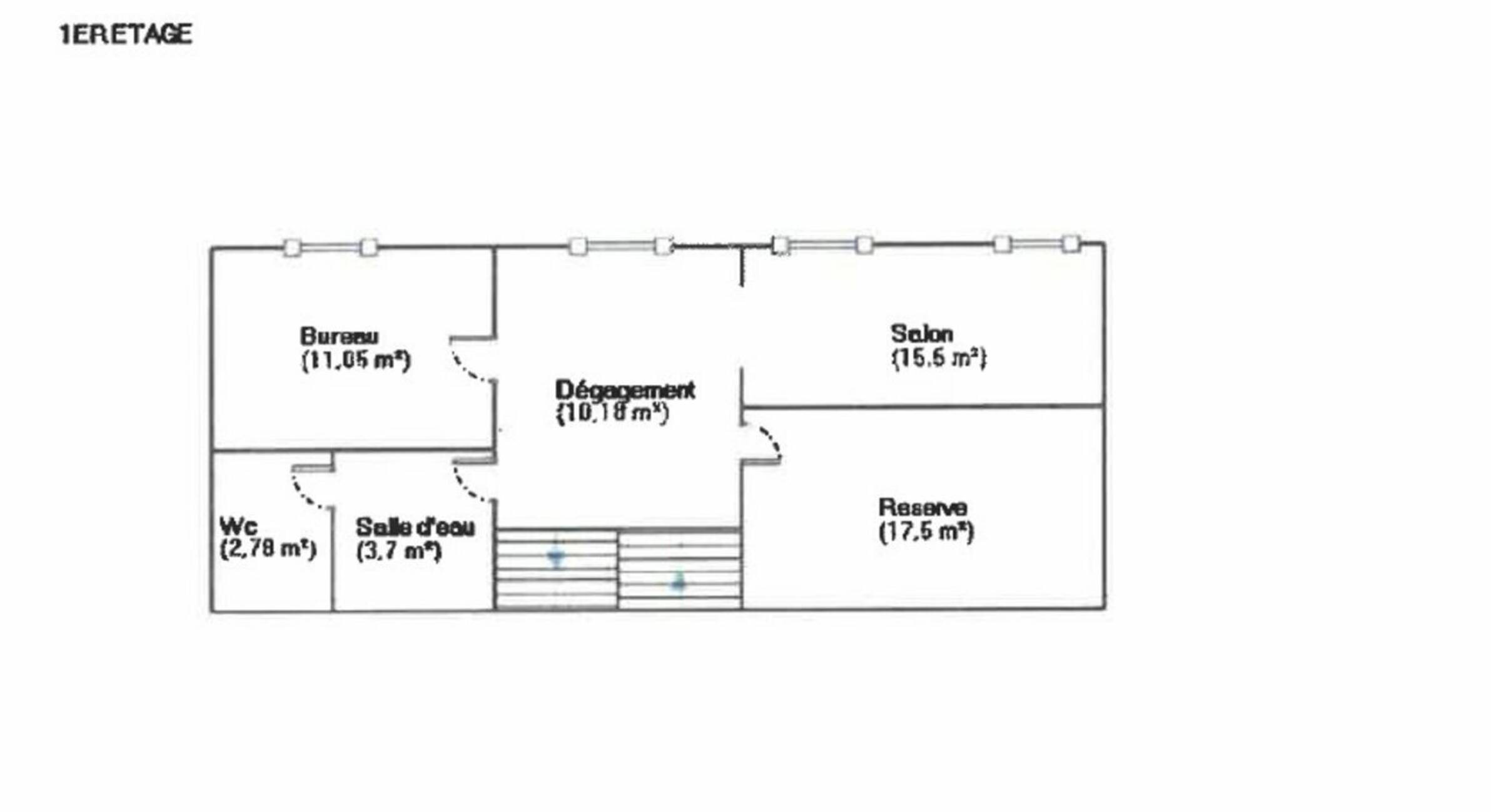
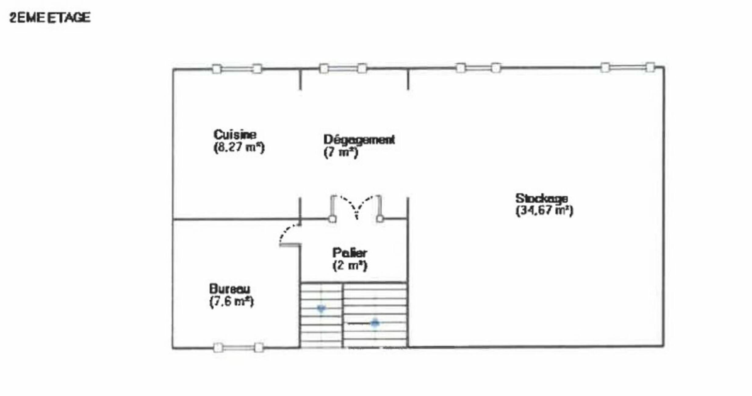
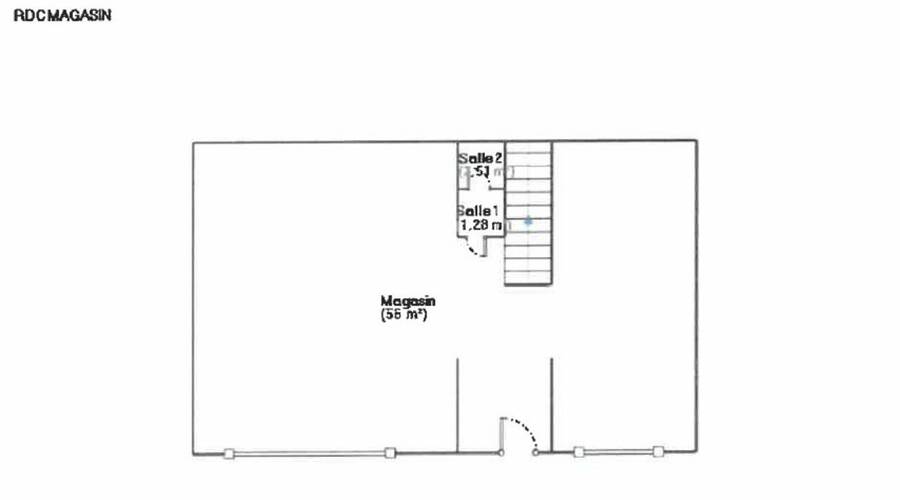
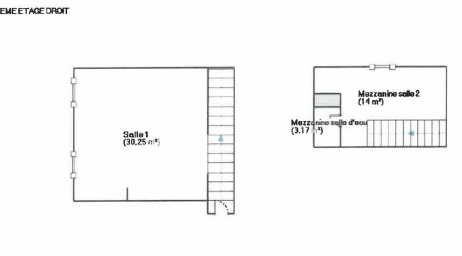
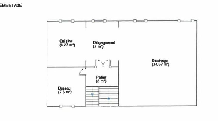
Cet immeuble est distribué comme suit :
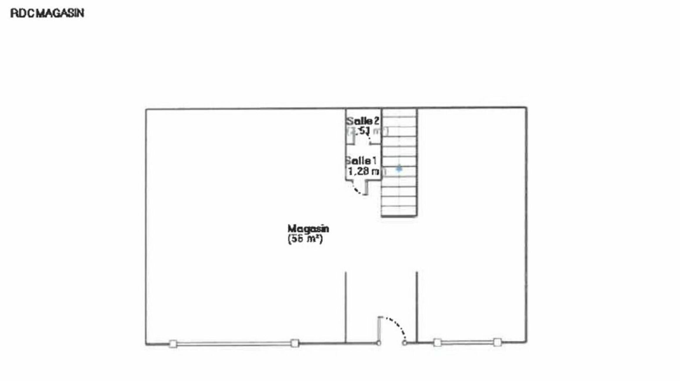
- RDC : local commercial de 70 m²
- R+1 Annexe au local commercial de 70 m²
- R+2 bureaux de 70 m²
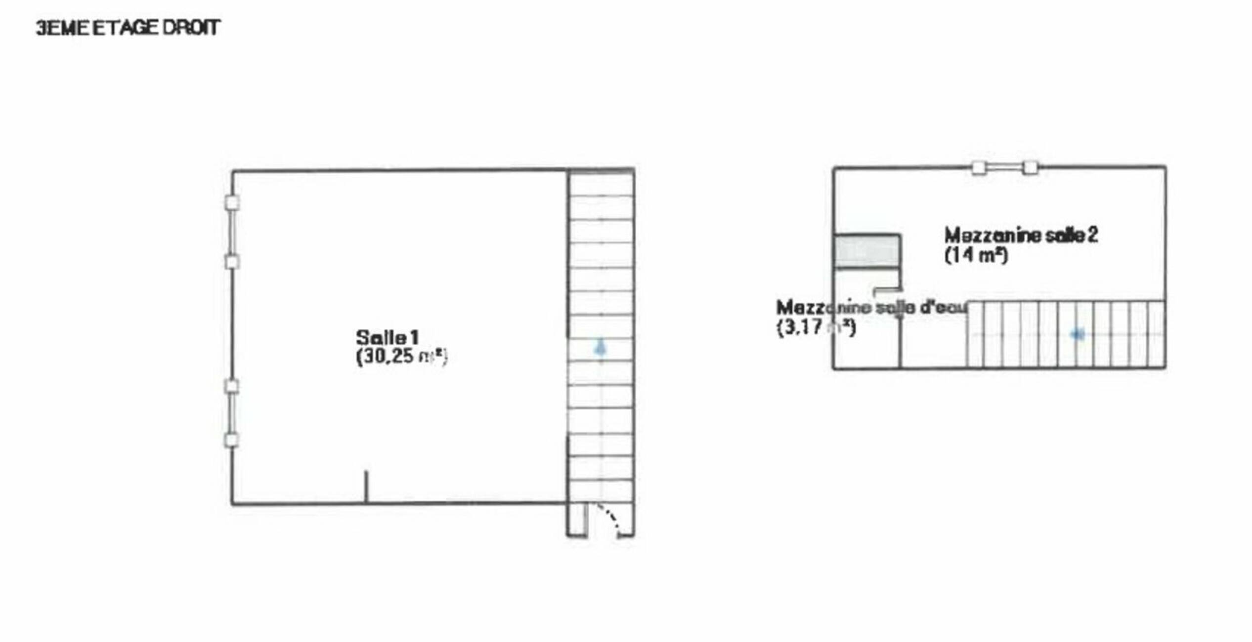
- R+3 appartements de 100 m² en duplex (2 lots)
Prestations du bien
- Câblage RJ45
- Chauffage réversible
- Fibre optique
- Haussmanien
- Immeuble en pierre de taille
- Rideaux électriques
Ce local professionnel vous est présenté par
Vous souhaitez nous joindre ?
Localisation et accessibilité
- Bus: Nombreuses lignes de bus
Métro : Ligne 1- station Estrangin Préfecture
Tram : Ligne T3 - Station Place de Rome
Ces biens pourraient vous intéresser
| Bat / Etage | Type | Surface | Prix | Prix /m2 | Disponibilité |
| RDC | Local commercial | 70 | |||
| R+1 | Annexe local commercial | 70 | |||
| R+2 | Bureaux | 70 | |||
| R+3 | Appartements en duplex | 100 |























