Ref : 63_2390_SR
Vente Entrepôt
ENTREPOTS / LOCAUX D'ACTIVITES A VENDRE
Lempdes (63370)
Prix : 1 200 000 €
Surface 756 m²
Description du bien
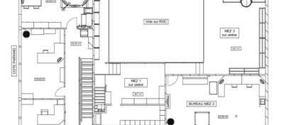
Notre agence spécialisée en immobilier d'entreprise vous propose à l'acquisition un ensemble immobilier professionnel d'environ 756 m², situés à Lempdes, dans l'agglomération clermontoise.
- ESPACES PRINCIPAUX : 582 m2
- 1er entrepôt : 314 m2.
- 2e entrepôt : 268 m2.- ESPACES SECONDAIRES :
- Accueil / secrétariat : 26 m2.
- Bureaux : 11 m2.
- Salle de réunion : 25 m2.
- Salle d'archives : 5 m2.
- Espace détente : 22 m2.
- 1er étage: appartement / bureaux de 75 m² : idéal également pour des bureaux.- PARKING : environ 900 m² parfaitement adaptées aux besoins de circulation et de stationnement des véhicules lourds (chaussée conçue pour supporter des charges importantes).
- CUVE A ESSENCE SUR DALLE (pour activités nécessitant un approvisionnement en carburant).
- TERRAIN restant de 4300 m².
- ÉQUIPEMENTS COMPLEMENTAIRES : fibre optique et climatisation (dans l'appartement).
- CARACTERISTIQUES TECHNIQUES :
- bâtiment équipé d'un bardage en acier laqué (excellente durabilité et aspect esthétique soigné).
- Structure : charpente en acier galvanisé (assurant robustesse et résistance dans le temps).
- Portes sectionnelles.
- Exutoires de fumées, répartis sur la toiture aux dimensions variées (respect des normes de sécurité en vigueur).Ces bâtiments se distinguent par leurs caractéristiques techniques et aménagements extérieurs de qualité, répondant aux exigences modernes des activités professionnelles, à 5 min de l'A75, l'A71, l'A89.
Contactez-nous dès maintenant pour découvrir également nos offres non diffusées. Nous sommes à votre écoute.
Prestations du bien
- Accès gros porteur
- Bâtiment grand terrain
- Climatisation
- Couverture bac acier
- Cuve
- Douche(s)
- Fibre optique
- Porte Sectionelle :
- Salle de repos
- Salle de réunion
- Sanitaires privés
- Secrétariat
- Site clos
- Type de charpente : en acier galvanisé
Ce local professionnel vous est présenté par
Vous souhaitez nous joindre ?
Localisation et accessibilité
- Bus: Aéroport d'Aulnat.
Lignes de bus.
Gare SNCF de Lempdes. - Autoroute: A71, A75, A89
Ces biens pourraient vous intéresser
| Batiment - Lot | Etage | Type | Surface | Prix vente | Prix vente m2 | Parkings | Disponibilité |













































