Ref : 13_1325_BA
Location Local commercial
BUREAU A LOUER
Aubagne (13400)
Loyer : 156 504 € / an
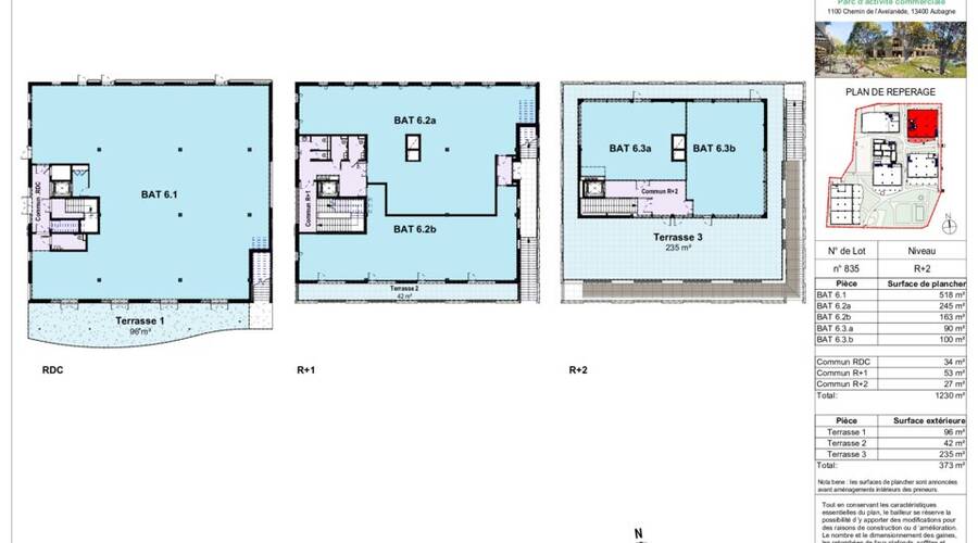
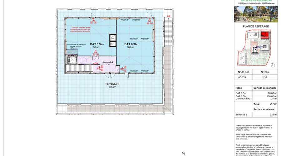
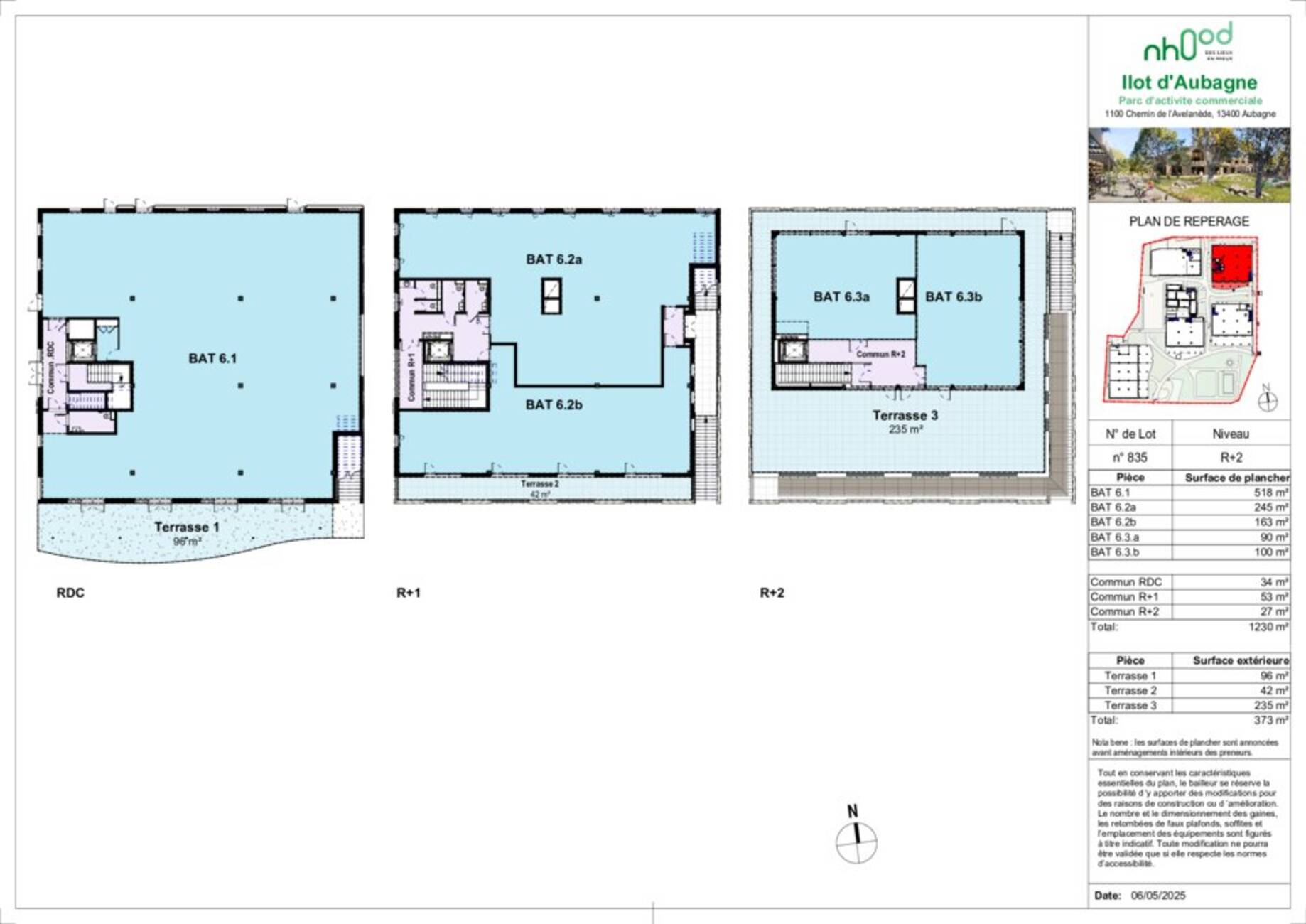
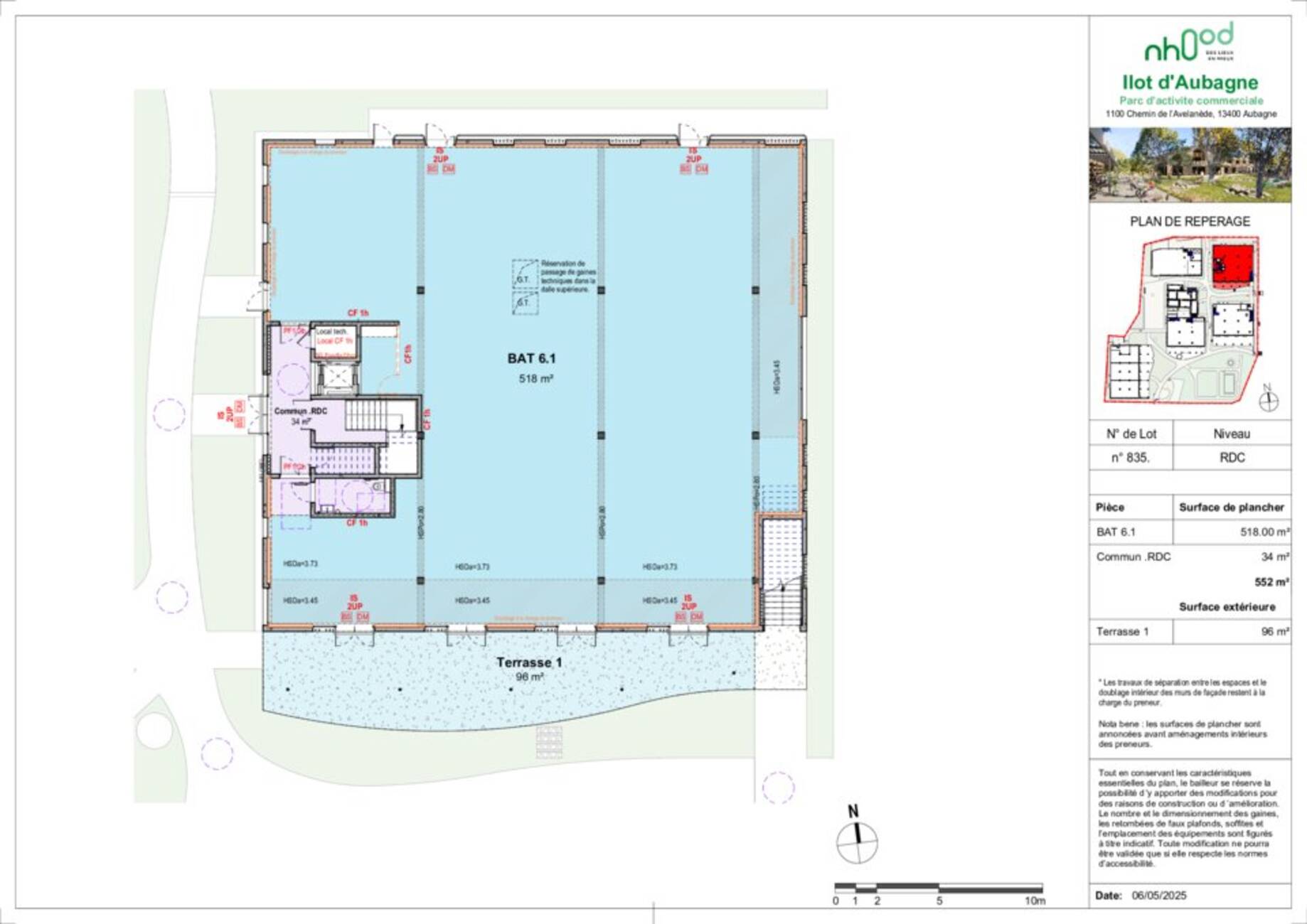
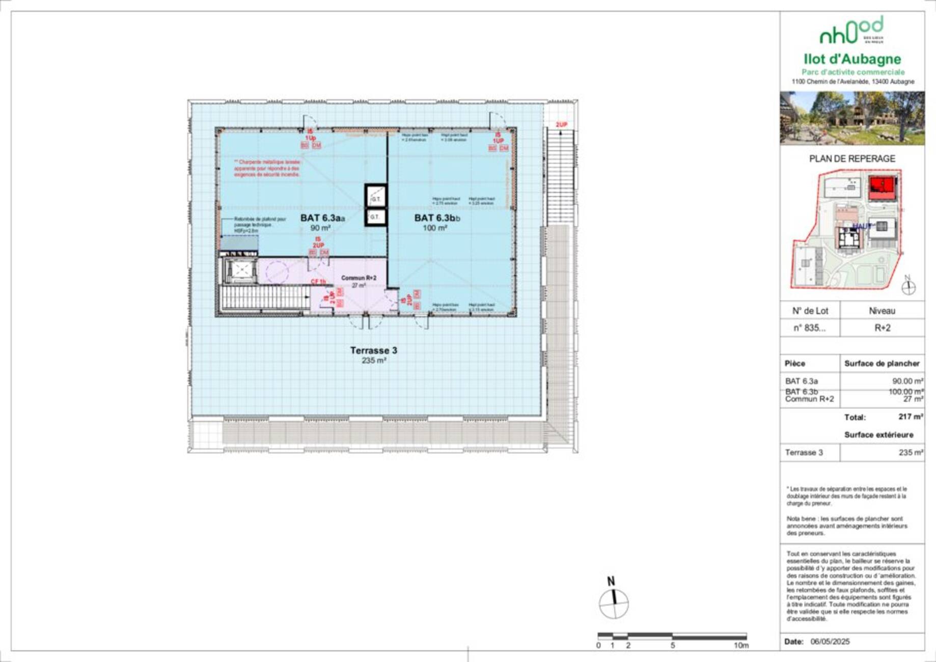
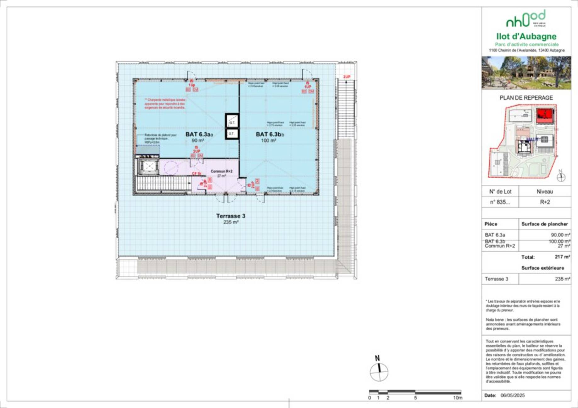
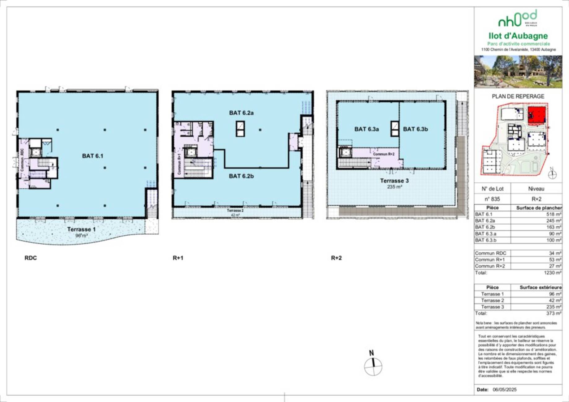
Surface 405 m²
Description du bien
À LOUER - Local commercial - AUBAGNE, dans la zone commerciale d'Aubagne
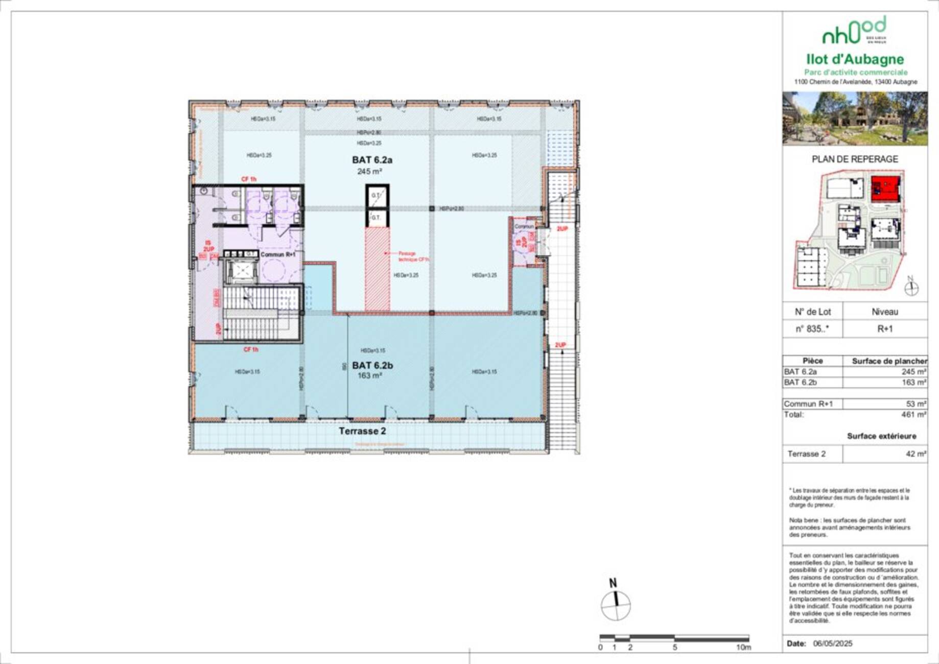
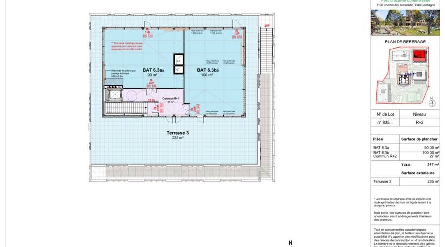
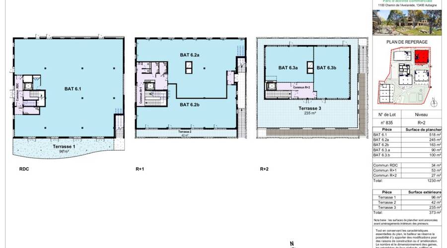
Un projet exemplaire et durable en 1er étage avec accès PMR : 405 m² + 42 m² de terrasseLivrés hors d'eau / hors d'air, prêts à l'aménagement selon vos besoins.Implanté au coeur d'un écosystème innovant, L'ÎLOT D'AUBAGNE est un programme pilote de régénération urbaine à impact positif, intégrant :Matériaux biosourcés : béton de chanvre, à faible empreinte carbone.Production photovoltaïque : 260 MWh/an d'énergie renouvelable.Gestion écologique des eaux pluviales : 100 % infiltrées sur site.Parc arboré avec +10 arbres plantés et 2 590 m² d'espaces verts.Labellisation BiodiverCity : biodiversité et confort d'usage au coeur du projet.Accès PMR, stationnements mutualisés, espaces de détente extérieurs, parc arboré.Idéal pour : siège d'entreprise, activité tertiaire, pôle médical, coworking ou restauration. Une situation privilégiéeSitué dans un quartier vivant et connecté, à proximité immédiate :De nombreux commerces et restaurantsDu nouvel hôpital d'AubagneDes axes autoroutiers A50 / A52 reliant Marseille, Cassis et Toulon Atouts principaux - Bâtiment éco-conçu - RE2020 - Espaces verdoyants & agriculture urbaine - Terrasses généreuses avec vues dégagées - Environnement mixte : tertiaire, médical, restauration - Locaux évolutifs selon votre aménagement3 LOTS DISPONIBLES ( Me contacter)Contact : Cathy SANCHEZ - Agence Baux Locaux Immobilier
c.sanchez@baux-locaux.com | 07 63 46 12 10
Un projet exemplaire et durable en 1er étage avec accès PMR : 405 m² + 42 m² de terrasseLivrés hors d'eau / hors d'air, prêts à l'aménagement selon vos besoins.Implanté au coeur d'un écosystème innovant, L'ÎLOT D'AUBAGNE est un programme pilote de régénération urbaine à impact positif, intégrant :Matériaux biosourcés : béton de chanvre, à faible empreinte carbone.Production photovoltaïque : 260 MWh/an d'énergie renouvelable.Gestion écologique des eaux pluviales : 100 % infiltrées sur site.Parc arboré avec +10 arbres plantés et 2 590 m² d'espaces verts.Labellisation BiodiverCity : biodiversité et confort d'usage au coeur du projet.Accès PMR, stationnements mutualisés, espaces de détente extérieurs, parc arboré.Idéal pour : siège d'entreprise, activité tertiaire, pôle médical, coworking ou restauration. Une situation privilégiéeSitué dans un quartier vivant et connecté, à proximité immédiate :De nombreux commerces et restaurantsDu nouvel hôpital d'AubagneDes axes autoroutiers A50 / A52 reliant Marseille, Cassis et Toulon Atouts principaux - Bâtiment éco-conçu - RE2020 - Espaces verdoyants & agriculture urbaine - Terrasses généreuses avec vues dégagées - Environnement mixte : tertiaire, médical, restauration - Locaux évolutifs selon votre aménagement3 LOTS DISPONIBLES ( Me contacter)Contact : Cathy SANCHEZ - Agence Baux Locaux Immobilier
c.sanchez@baux-locaux.com | 07 63 46 12 10
Prestations du bien
- Accès Handicapés
- Ascenseur
- Etablissement recevant du public
- Hauteur sous ferme :
- Issue de secours
- Murs agglo
- Nbre Parkings extérieurs :
- Rez-de-chaussée
- Vitrine
Informations financières
- Charges minimales : 12 925 €
Ce local professionnel vous est présenté par
Vous souhaitez nous joindre ?
Localisation et accessibilité
Ces biens pourraient vous intéresser
| Batiment - Lot | Etage | Type | Surface | Loyer annuel | Charges annuelles | Parkings | Disponibilité |







































