Ref : 84_1231_BA
Location Bureau
BUREAUX A LOUER
Avignon (84140)
Loyer : 49 836 € / an
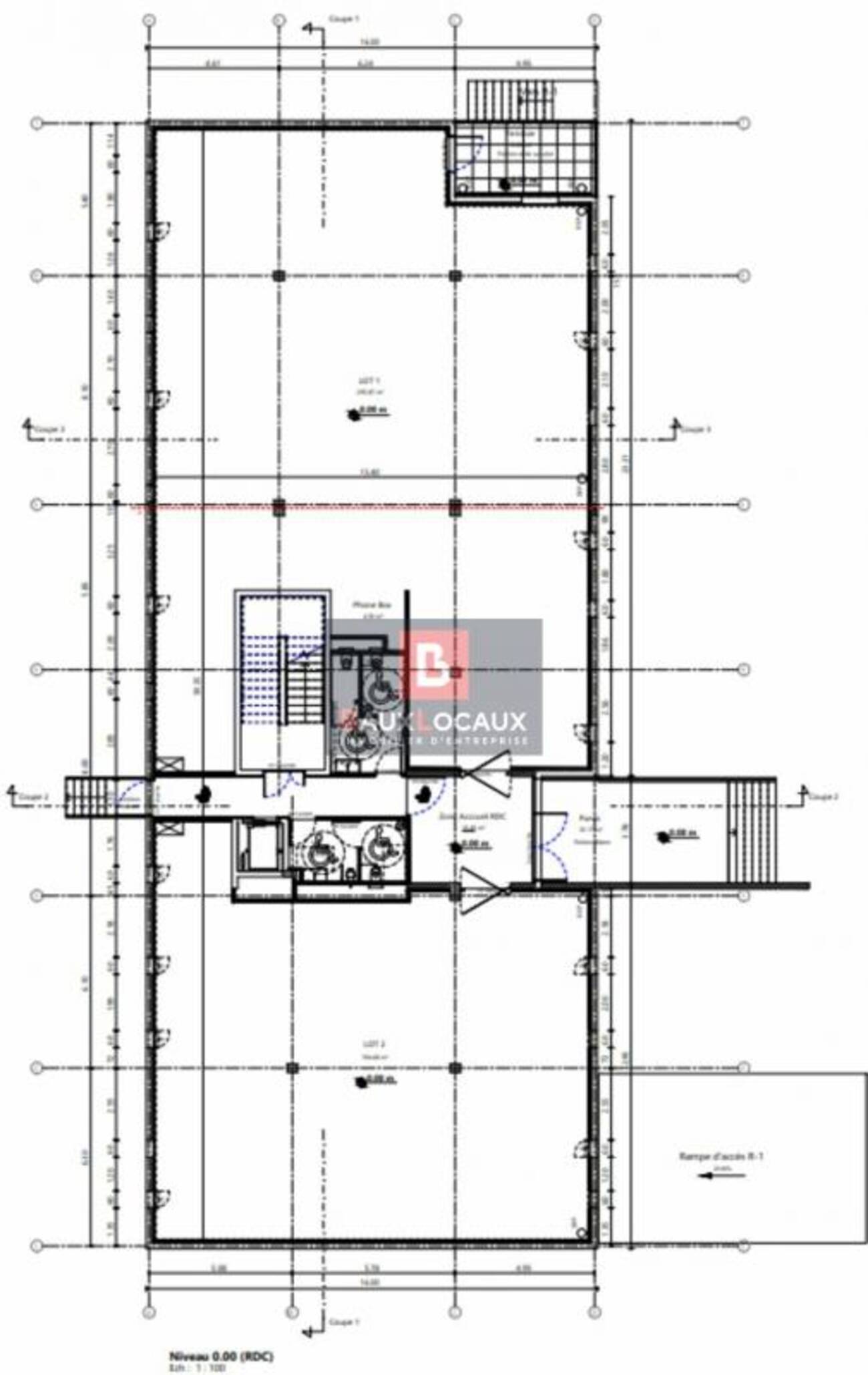
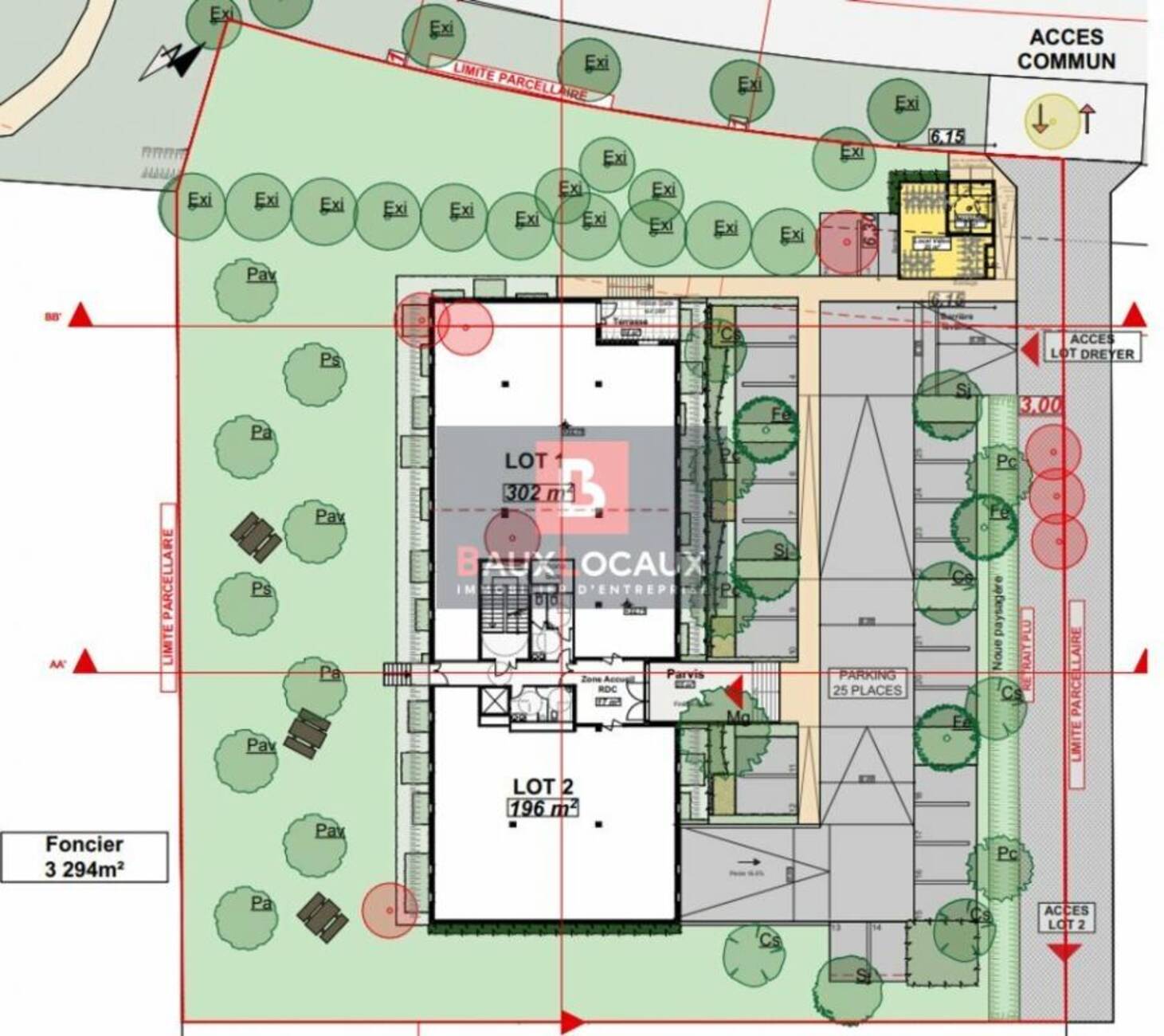
Surface 302 m²
Description du bien
Nous vous proposons à la location des bureaux neufs de standing au coeur de la zone d'AGROPARC à Avignon.
Ce plateau de bureaux fait une superficie d'environ 302m² avec moquette au sol et entièrement climatisé. Le hall d'accueil avec accès PMR et les sanitaires sont en communs avec un lot adjacent de 302m² aussi disponible à la location.
Vous bénéficierez d'un parking commun avec 47 places, sécurisé par contrôle d'accès et barrière.
Espaces verts avec possibilité de déjeuner à l'extérieur.
Prestations du bien
- Alarme anti intrusions
- Climatisation
- Nbre Parkings extérieurs : 47
- Accès PMR
- Espaces verts
Informations financières
- Bail : Commercial 3/6/9 ans
- Dépôt de garantie : 2 mois de loyer HT/HC
Ce local professionnel vous est présenté par
Vous souhaitez nous joindre ?
Localisation et accessibilité
- Autoroute: A7/A9, voie rapide
| Batiment - Lot | Etage | Type | Surface | Loyer annuel | Charges annuelles | Parkings | Disponibilité |





































