Indisponible
Ref : 95_0614_IN
Location Bureau
BUREAUX A LOUER
Belloy-en-France (95270)
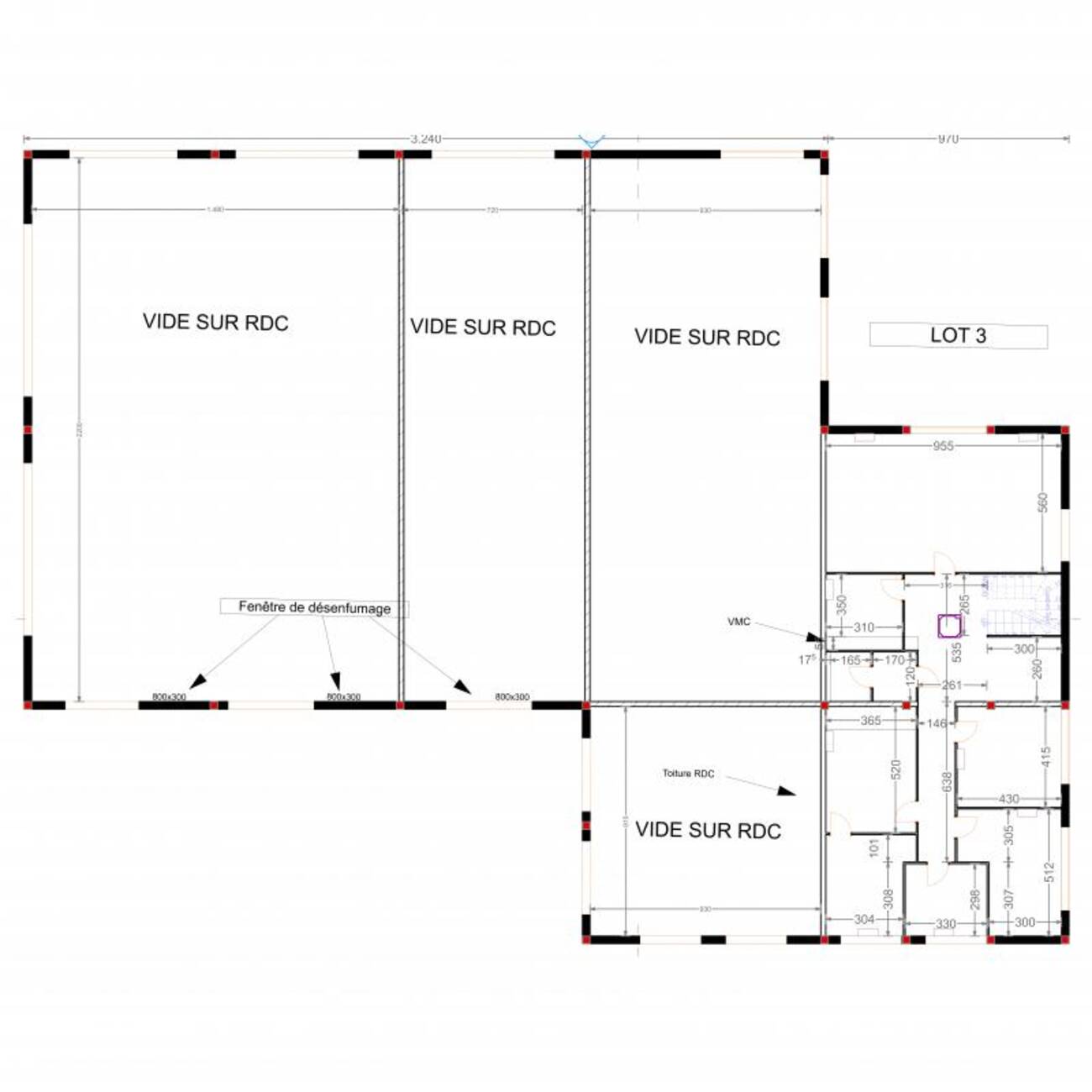
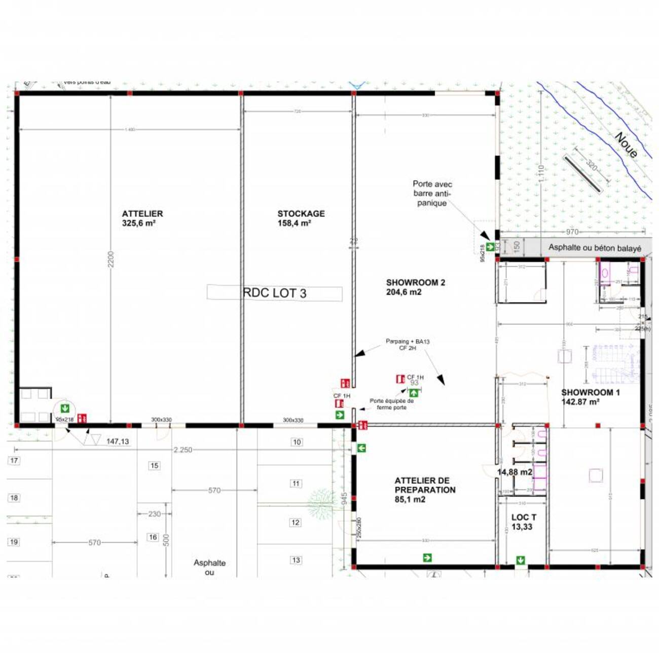
Surface 487 m²
Description du bien
INVEST CONSEIL vous propose à la location des bureaux de 487 m² situés dans la ZAC de l'Orme de BELLOY EN FRANCE.
Les + :
- Terrasse de 65 m²
- Showroom et bureaux construits avec des matériaux haut de gamme
- Visibilité commerciale
Prestations du bien
- Archives/Stockage
- Bureaux cloisonnés
- Climatisation réversible
- Convecteurs électriques
- Cuisine
- Double vitrage
- Eclairage extérieur
- Eclairage LED
- Espaces verts
- Faux plafond
- Fibre optique
- Open Space
- Parking clos 8
- Revêtement sol en carrelage
- Salle de réunion
- Sanitaires privés
- Showroom
- Site clos
- Vidéosurveillance
Ce local professionnel vous est présenté par
Vous souhaitez nous joindre ?
Localisation et accessibilité
- Autoroute: A1
Ces biens pourraient vous intéresser
| Batiment - Lot | Etage | Type | Surface totale (en m2) | Parking | Loyer annuel HT/HC | Provision annuelle pour charges et taxes HT | Disponibilité |
| Bâtiment indépendant | Bureaux | 487,28 | 6 | 57 011,76 € | 6 334,20 € | immédiate | |
| RDC | Showroom | 180 | |||||
| R+1 | Bureaux/salle de réunion | 165,18 | |||||
| R+2 | Penthouse | 77,10 | |||||
| Terrasse | 65 |





























