Ref : 78_002220_AP
Location Bureau
BUREAUX A LOUER
Chesnay (78150)
Loyer : 62 340 € / an
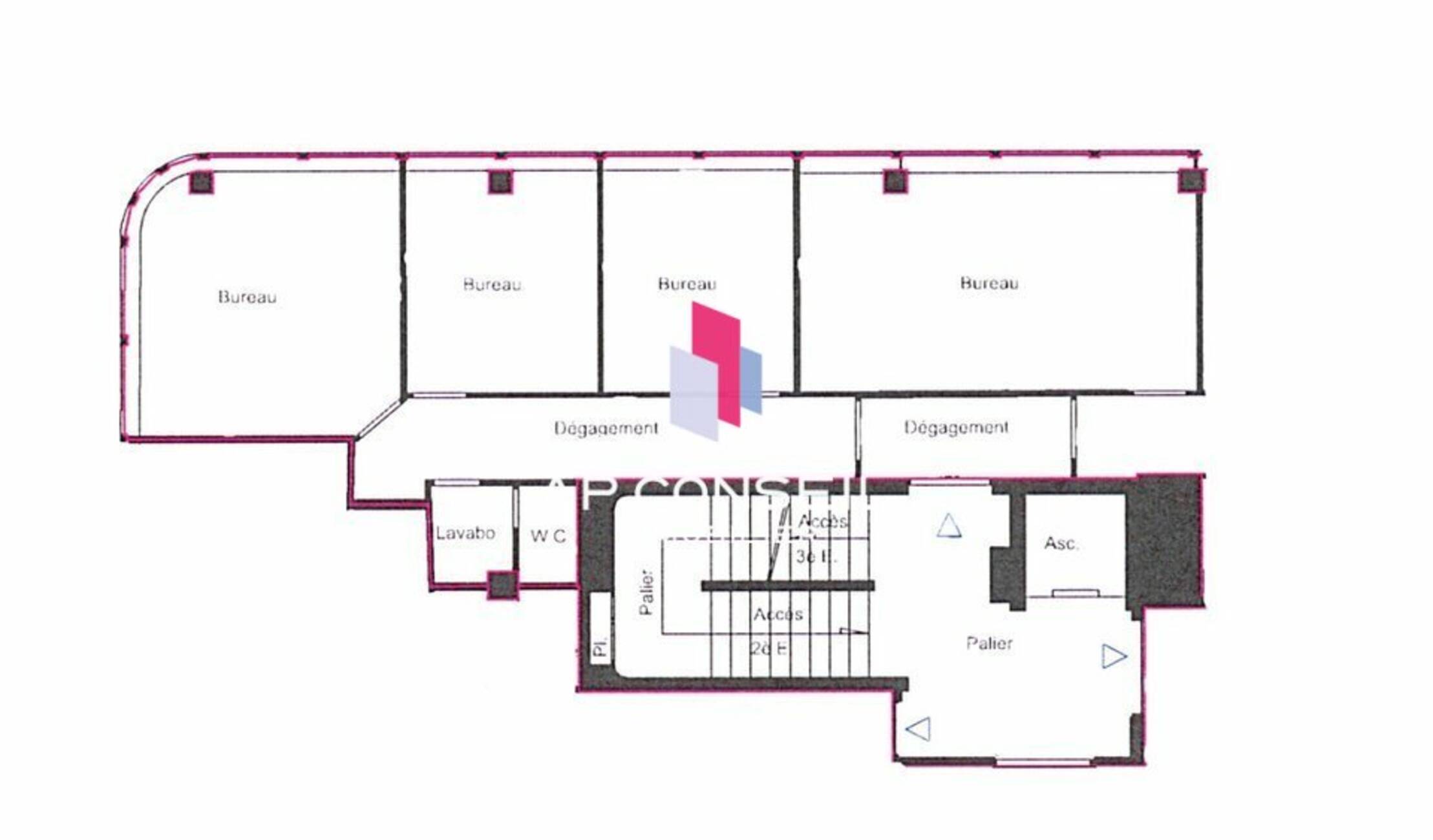
Surface 271 m²
Description du bien
AP CONSEIL vous propose à la location une surface de bureaux de 271 m2, dans un immeuble idéalement situé au Chesnay, à proximité immédiate du Centre commercial Parly 2 et de sa gare routière.
Possibilité de places de parking sur demande.
N'hésitez pas à nous contacter pour programmer une visite.
Prestations du bien
- Bureaux cloisonnés
- Cloisons amovibles
- Fibre optique
- Sanitaires privés
- Possibilité de parkings sur demande
- Ascenseur PMR
- Possibilité de climatiser
Informations financières
- Charges minimales : 18 970 €
- Bail : Commercial 3/6/9 ans
- Dépôt de garantie : 3 mois de loyer HT/HC
Ce local professionnel vous est présenté par
Vous souhaitez nous joindre ?
Localisation et accessibilité
- Bus: Versailles
- Autoroute: A13 / A12
Ces biens pourraient vous intéresser
| Bat / Etage | Type | Surface | Prix | Prix /m2 | Disponibilité |
| 3ème | Bureaux | 271 | 62330 | 230 | immédiate |































