Ref : 1384513-0L_MA
Location Bureau
Bureau Lyon
Lyon (69006)
Loyer : 56 004 € / an
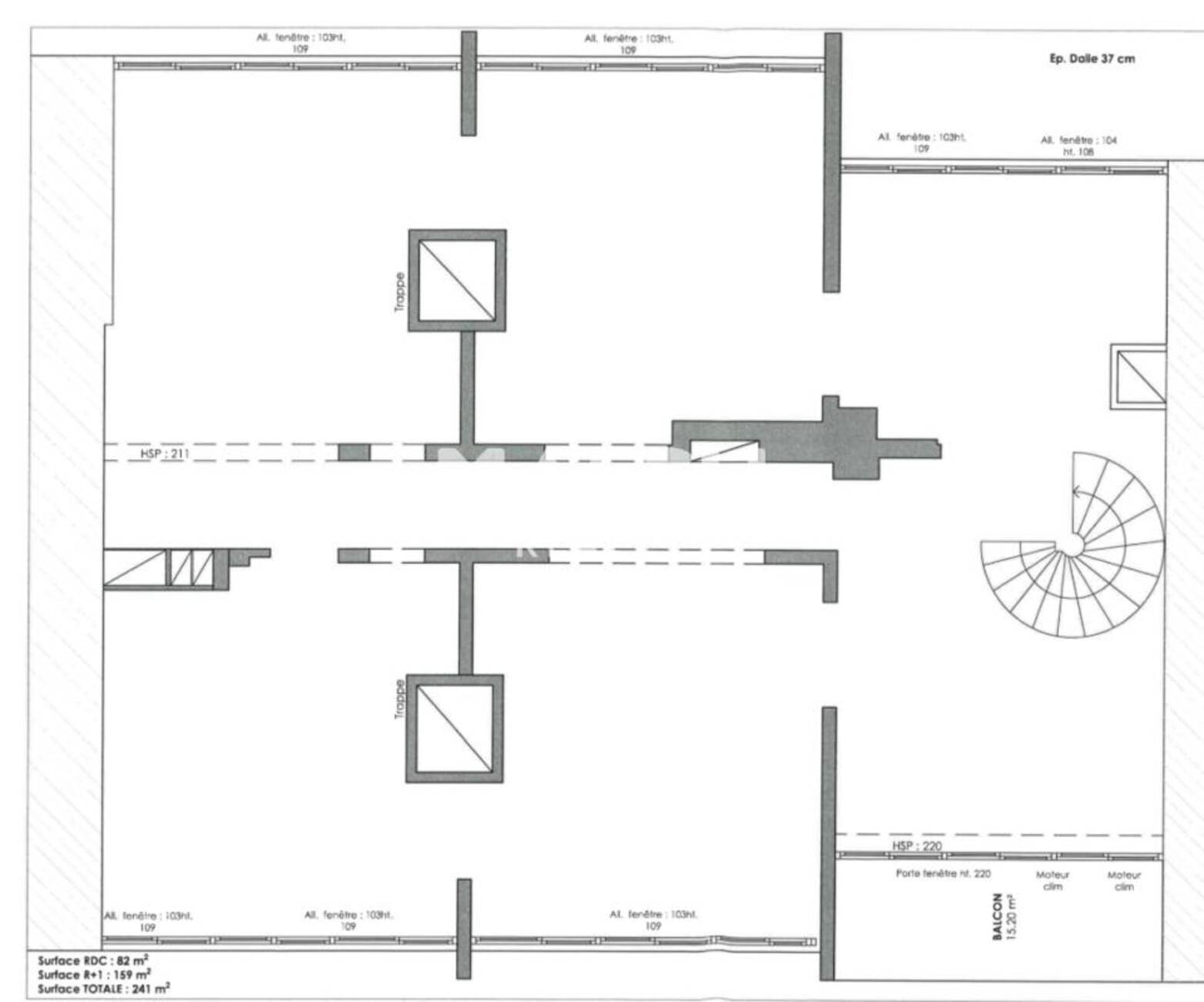
Surface 262 m²
Description du bien
MALSH Realty propose une nouvelle opportunité à la LOCATION de vastes bureaux de 262 m² en duplex, idéalement situés dans le quartier d'affaires de la Part-Dieu 6°.
4 places de parking complètent cette offre.
Prestations du bien
- Bureaux cloisonnés comprenant un premier niveau en RDC, et un 1° étage avec accès interne privé.,
- Climatisation réversible
- Parquet
- Eclairage LED
- Sanitaire
- 4 places de parking en sous sol
Informations financières
- Charges minimales : 5 €
- Bail : commercial 3-6-9 ans
- Taxe foncière : 5 670 €
- Informations location :
Conditions particulières à la location : Charges comprenant : Chauffage collectif, Eau Chaude et Eau Froide.
- Dépôt de garantie : 3 mois de loyer HT/HC
Ce local professionnel vous est présenté par
Vous souhaitez nous joindre ?
Surfaces des locaux
| Étage | Bâtiment | Type | Surfaces | Disponibilité | Loyer | Charges | Honoraires | Fiscal | Bail | Révision annuelle | Prix | Charges | Honoraires | Fiscal | Paiement Loyer | lot | Coworking | |
|---|---|---|---|---|---|---|---|---|---|---|---|---|---|---|---|---|---|---|
| RDC + R+1 | Bureaux | 262 | Immédiate | 213,74 HT/HC/m²/an | 57,25 HT/An | 15% HT d'un an de loyer HT à la charge du preneur, payables à la signature du bail | T.V.A. (20%) | commercial 3-6-9 ans | ILAT Indice des Loyers des Activités Tertiaires | Trimestriel d'avance | 111-112 | |||||||
| Parkings | - | Immédiate | 1 200 HT/HC/place/an | 400 HT/An | 15% HT d'un an de loyer HT à la charge du preneur, payables à la signature du bail | T.V.A. (20%) | commercial 3-6-9 ans | ILAT Indice des Loyers des Activités Tertiaires | Trimestriel d'avance | 233-234-235-240 | ||||||||
| Total | 262 m² | |||||||||||||||||
| 4 | ||||||||||||||||||
Localisation et accessibilité
- Bus: Ligne 38 - Arrêt Bugueaud
- SCNF: Lyon-Part-Dieu (France)
- Metro: Hôtel de Ville L. Pradel (Ligne C), Brotteaux (Lig
| Étage | Bâtiment | Type | Surfaces | Disponibilité | Loyer | Charges | Honoraires | Fiscal | Bail | Révision annuelle | Prix | Charges | Honoraires | Fiscal | Paiement Loyer | lot | Coworking | |
|---|---|---|---|---|---|---|---|---|---|---|---|---|---|---|---|---|---|---|
| RDC + R+1 | Bureaux | 262 | Immédiate | 213,74 HT/HC/m²/an | 57,25 HT/An | 15% HT d'un an de loyer HT à la charge du preneur, payables à la signature du bail | T.V.A. (20%) | commercial 3-6-9 ans | ILAT Indice des Loyers des Activités Tertiaires | Trimestriel d'avance | 111-112 | |||||||
| Parkings | - | Immédiate | 1 200 HT/HC/place/an | 400 HT/An | 15% HT d'un an de loyer HT à la charge du preneur, payables à la signature du bail | T.V.A. (20%) | commercial 3-6-9 ans | ILAT Indice des Loyers des Activités Tertiaires | Trimestriel d'avance | 233-234-235-240 | ||||||||
| Total | 262 m² | |||||||||||||||||
| 4 | ||||||||||||||||||
























































