Ref : 13_1033_BA
Location Bureau
BUREAUX A LOUER
Martigues (13500)
Loyer : 28 848 € / an
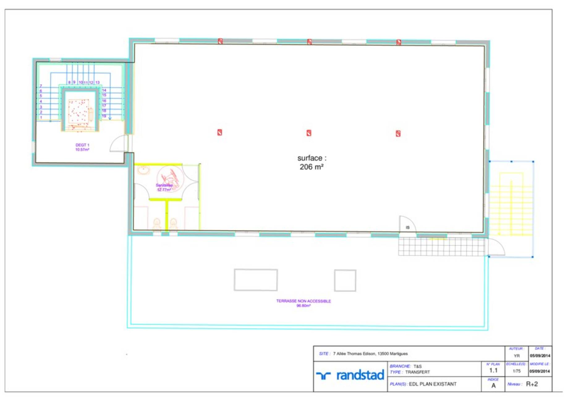
Surface 206 m²
Description du bien
À Louer - Bureau Open Space de 206 m² avec Terrasse et Accessibilité PMR - Martigues Emplacement privilégié - Accessibilité, confort et modernitéSitué à seulement 5 minutes du centre-ville de Martigues, avec un accès direct aux axes autoroutiers, à la gare TGV d'Aix-en-Provence et à l'aéroport de Marseille Provence, ce bureau de 206 m² en open space constitue une opportunité rare sur le marché.Implanté au 2ème étage d'un immeuble professionnel, l'ensemble est accessible aux personnes à mobilité réduite (PMR) et se distingue par ses prestations de qualité, prêtes à accueillir votre activité dans un environnement fonctionnel et agréable.Des atouts majeurs pour votre entreprise :Open space lumineux avec double vitrage et faux plafondsVaste terrasse sur les toits pour des pauses en plein air ou des événements informelsPortail automatique assurant un accès sécurisé2 espaces détente, 1 salle de réunion, 2 sanitaires, 1 réfectoire et 1 espace d'accueil parfaitement agencésEn résumé :
- Surface de 206 m²
- Accessibilité PMR
- En excellent état général
- Environnement professionnel calme et stratégique
- À proximité immédiate des grands axes et commoditésUne visite s'impose pour apprécier tout le potentiel de ce bien.
Contactez moi dès maintenant pour organiser un rendez-vous !
Contactez moi dès maintenant pour organiser un rendez-vous !
Prestations du bien
- Accès Handicapés
- Ascenseur
- Climatisation
- Double vitrage
- Eclairage
- Immeuble indépendant
Informations financières
- Charges minimales : 1 073 €
- Bail : Commercial 3/6/9 ans
- Taxe foncière : 6 741 €
- Dépôt de garantie : 3 mois de loyer HT/HC
Ce local professionnel vous est présenté par
Vous souhaitez nous joindre ?
Localisation et accessibilité
Ces biens pourraient vous intéresser
| Batiment - Lot | Etage | Type | Surface |
| OPEN SPACE | 206 |


















































