Indisponible
Ref : 989419-0L
Location Bureau
MEYZIEU - Bureaux de 886 m² divisibles à partir de 205 m² - A LOUER
Meyzieu (69330)
Surface 871 m²
Divisible dès 205 m²
Description du bien
MALSH Realty & Property vous propose des Bureaux à louer 886 m² divisibles à partir de 205 m² - Meyzieu 69330 - Zac des Gaulnes - Accès aisé depuis la Rocade et le réseau autoroutier - Immeuble labellisé BBC, conception architecturale et toiture photovoltaïque.
Prestations du bien
- Conception architecturale et technique bio-climatique
- Production d'énergie renouvelable et toitures photovoltaïques
- Environnement paysager
- Hauteur libre 2,70 m
- Hall et circulation en carrelage type grès cérame et moquette dans les bureaux
- Plinthes périphériques
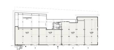
- Lot 102 : Archives de 4 m²
- Parkings :
- Lot 114 : 4 en sous-sol et 1 en extérieur
- Lot 112 : 4 en sous-sol et 1 en extérieur
- Lot de 410,60 m² : 5 en sous-sol et 2 en extérieur
- Surface RDC : 666,2 m²
Ce local professionnel vous est présenté par
Vous souhaitez nous joindre ?
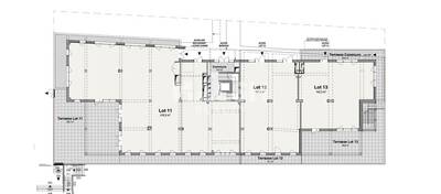
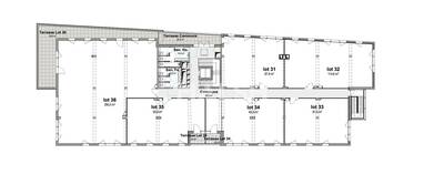
Surfaces des locaux
| Étage | Bâtiment | Type | Surfaces | Disponibilité | Loyer | Charges | Honoraires | Fiscal | Bail | Révision annuelle | Prix | Charges | Honoraires | Fiscal | Paiement Loyer | lot | Coworking | |
|---|---|---|---|---|---|---|---|---|---|---|---|---|---|---|---|---|---|---|
| RDC | Bureaux | 410,6 | 115 HT/HC/m²/an | 12 426,28 an HT | 15 % HT d'un an de loyer HT à la charge du preneur, payables à la signature du bail | T.V.A. (20%) | commercial 3-6-9 ans | ILAT Indice des Loyers des Activités Tertiaires | Trimestriel d'avance | |||||||||
| RDC | Bureaux | 255,6 | 115 HT/HC/m²/an | 7 873,65 m²/an HT | 15 % HT d'un an de loyer HT à la charge du preneur, payables à la signature du bail | T.V.A. (20%) | commercial 3-6-9 ans | ILAT Indice des Loyers des Activités Tertiaires | Trimestriel d'avance | 112 | ||||||||
| 1 | Bureaux | 205,2 | 115 HT/HC/m²/an | 5 628,37 m²/an HT | 15 % HT d'un an de loyer HT à la charge du preneur, payables à la signature du bail | T.V.A. (20%) | commercial 3-6-9 ans | ILAT Indice des Loyers des Activités Tertiaires | Trimestriel d'avance | 114 | ||||||||
| Archives | 4,6 | 15 % HT d'un an de loyer HT à la charge du preneur, payables à la signature du bail | T.V.A. (20%) | ILAT Indice des Loyers des Activités Tertiaires | Trimestriel d'avance | 112 | ||||||||||||
| Total | 876 m² |
Localisation et accessibilité
- SCNF: Gare de la Part Dieu à 20 min
- Metro: Connexion métro ligne A station « Carré de Soie »
- Tramway: Tramway ligne T3 ou Rhône Express à 3 min à pied
| Étage | Bâtiment | Type | Surfaces | Disponibilité | Loyer | Charges | Honoraires | Fiscal | Bail | Révision annuelle | Prix | Charges | Honoraires | Fiscal | Paiement Loyer | lot | Coworking | |
|---|---|---|---|---|---|---|---|---|---|---|---|---|---|---|---|---|---|---|
| RDC | Bureaux | 410,6 | 115 HT/HC/m²/an | 12 426,28 an HT | 15 % HT d'un an de loyer HT à la charge du preneur, payables à la signature du bail | T.V.A. (20%) | commercial 3-6-9 ans | ILAT Indice des Loyers des Activités Tertiaires | Trimestriel d'avance | |||||||||
| RDC | Bureaux | 255,6 | 115 HT/HC/m²/an | 7 873,65 m²/an HT | 15 % HT d'un an de loyer HT à la charge du preneur, payables à la signature du bail | T.V.A. (20%) | commercial 3-6-9 ans | ILAT Indice des Loyers des Activités Tertiaires | Trimestriel d'avance | 112 | ||||||||
| 1 | Bureaux | 205,2 | 115 HT/HC/m²/an | 5 628,37 m²/an HT | 15 % HT d'un an de loyer HT à la charge du preneur, payables à la signature du bail | T.V.A. (20%) | commercial 3-6-9 ans | ILAT Indice des Loyers des Activités Tertiaires | Trimestriel d'avance | 114 | ||||||||
| Archives | 4,6 | 15 % HT d'un an de loyer HT à la charge du preneur, payables à la signature du bail | T.V.A. (20%) | ILAT Indice des Loyers des Activités Tertiaires | Trimestriel d'avance | 112 | ||||||||||||
| Total | 876 m² |


































