Ref : 3448219061_TH
Location Bureau
IMMEUBLE DE BUREAUX A LOUER
Saint-Gély-du-Fesc (34980)
Loyer : 246 576 € / an
Surface 1 409 m²
Divisible dès 64 m²
Description du bien
Situé au nord de Montpellier, sur la commune dynamique de Saint-Gély-du-Fesc, cet ensemble immobilier neuf bénéficie d'un emplacement stratégique, à proximité immédiate d'une zone d'activité en plein essor.
THELENE ENTREPRISES vous propose à la location, plusieurs surfaces de bureaux en R+1 et R+2 allant de 64 à 650 m² environ.
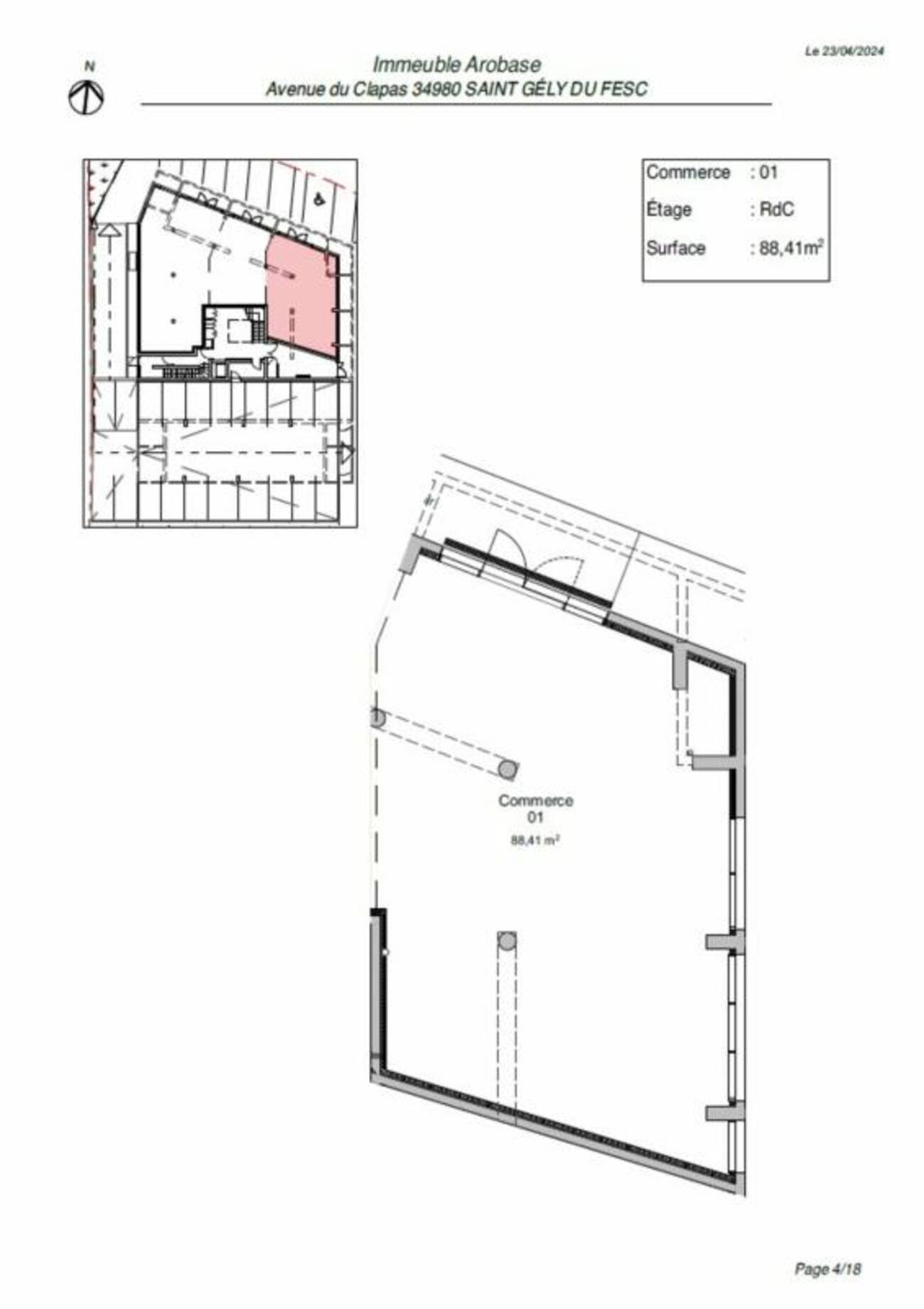
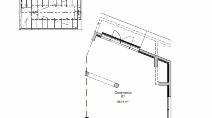
Commerces au rez-de-chaussée de l'immeuble.
Les bureaux offriront des prestations modernes avec des locaux climatisés, précâblés et fibrés.
Chaque lot dispose d'une platine compteur disjoncteur et d'un accès facilité grâce à un ascenseur desservant tous les niveaux.
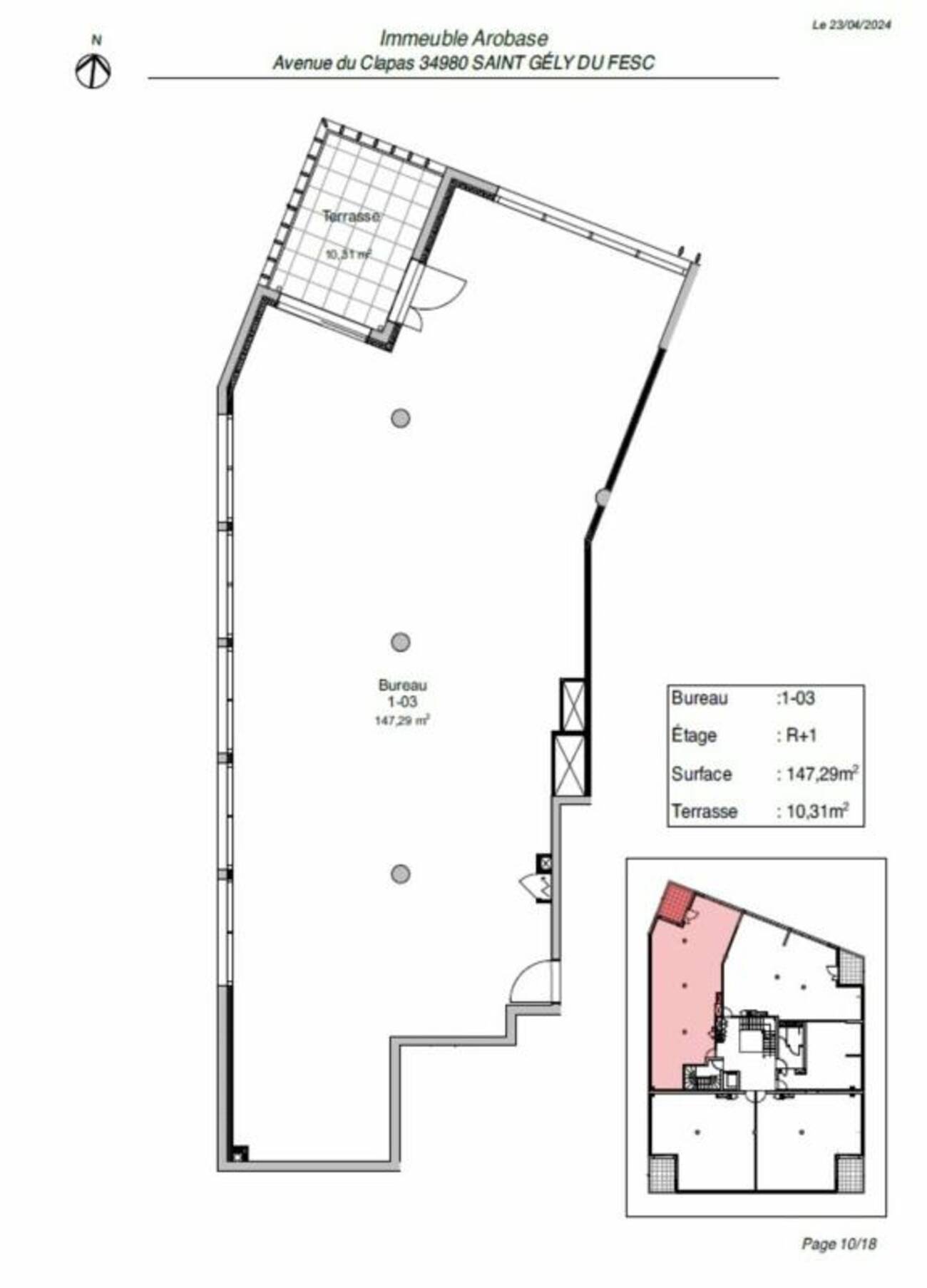
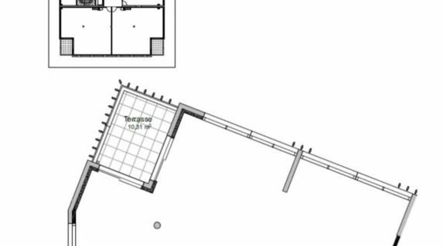
Pour le confort des occupants, plusieurs terrasses privatives seront disponibles aux étages, et l'environnement paysager apportera un cadre de travail agréable.
Le bâtiment disposera d'un stationnement optimisé avec :
26 places en sous-sol, réservées aux bureaux
20 places extérieures, dont 8 couvertes, en rez-de-chaussée
9 places supplémentaires dédiées aux commerces
Total : 55 places de stationnement
Disponibilité : immédiate.
Conditions locatives :
Loyer annuel Bureaux : 175 Euros HT HC/m²/an
Honoraires en sus : 15 % HT du loyer annuel HT
Retrouvez l'ensemble de nos offres sur notre site : https://www.thelene-entreprises.com/
Les informations sur les risques auxquels ce bien est exposé sont disponibles sur le site Géorisques : www.georisques.gouv.fr
Prestations du bien
- Ascenseur
- Bureaux cloisonnés
- Câblage RJ45
- Carrelages
- Climatisation
- Eclairage
- EDF 380
- Faux plafond
- Fibre optique
- Hall accueillant
- Luminaires faux plafond
- Menuiseries posées
- Nbre Parkings extérieurs privatifs : 20
- Nbre Parkings sous-sol : 26
- Nbre Parkings visiteurs : 9
- Précâblage
- Toiture isolée
- Ventilation double flux
- Ventilation simple flux
Informations financières
- Charges minimales : 35 225 €
- Taxe foncière : 25 290 €
Ce local professionnel vous est présenté par
Vous souhaitez nous joindre ?
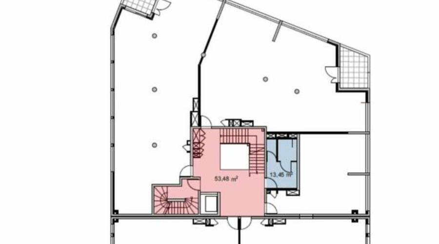
Surfaces des locaux
| Batiment - Lot | Etage | Type | Surface | Loyer annuel HT HC | Charges annuelles HT | Parkings | Loyer annuel des parkings |
| 1-02 | R+1 | BUREAUX | 165 m² + 8.7 m² de terrasse | 28 875 € | 25 € HT/m² | 3 en ss-sol + 1 extérieur + 1 ext couvert | 4 860 € |
| 1-03 | R+1 | BUREAUX | 185 m² + 10.31 m² de terrasse | 32 375 € | 25 € HT/m² | 3 en ss-sol + 2 extérieurs + 1 ext couvert | 5 580 € |
| 1-05 | R+1 | BUREAUX | 147 m²+ 10.31 m² de terrasse | 25 725 € | 25 € HT/m² | 3 en ss-sol + 1 extérieur + 1 ext couvert | 4 860 € |
| 2-01 | R+2 | BUREAUX | 153 m² + 8.7 m² de terrasse | 26 775 € | 25 € HT/m² | 3 en ss-sol + 1 extérieur + 1 ext couvert | 4 860 € |
| 2-02 | R+2 | BUREAUX (OPTION) | 170 m² + 10.31 m² de terrasse | 29 750 € | 25 € HT/m² | 3 en ss-sol + 1 extérieur + 1 ext couvert | 4 860 € |
| 2-04 | R+2 | BUREAUX | 145 m² + 10.31 m² de terrasse | 25 375 € | 25 € HT/m² | 3 en ss-sol + 1 extérieur + 1 ext couvert | 4 860 € |
Localisation et accessibilité
- Autoroute: A9 A750
| Batiment - Lot | Etage | Type | Surface | Loyer annuel HT HC | Charges annuelles HT | Parkings | Loyer annuel des parkings |
| 1-02 | R+1 | BUREAUX | 165 m² + 8.7 m² de terrasse | 28 875 € | 25 € HT/m² | 3 en ss-sol + 1 extérieur + 1 ext couvert | 4 860 € |
| 1-03 | R+1 | BUREAUX | 185 m² + 10.31 m² de terrasse | 32 375 € | 25 € HT/m² | 3 en ss-sol + 2 extérieurs + 1 ext couvert | 5 580 € |
| 1-05 | R+1 | BUREAUX | 147 m²+ 10.31 m² de terrasse | 25 725 € | 25 € HT/m² | 3 en ss-sol + 1 extérieur + 1 ext couvert | 4 860 € |
| 2-01 | R+2 | BUREAUX | 153 m² + 8.7 m² de terrasse | 26 775 € | 25 € HT/m² | 3 en ss-sol + 1 extérieur + 1 ext couvert | 4 860 € |
| 2-02 | R+2 | BUREAUX (OPTION) | 170 m² + 10.31 m² de terrasse | 29 750 € | 25 € HT/m² | 3 en ss-sol + 1 extérieur + 1 ext couvert | 4 860 € |
| 2-04 | R+2 | BUREAUX | 145 m² + 10.31 m² de terrasse | 25 375 € | 25 € HT/m² | 3 en ss-sol + 1 extérieur + 1 ext couvert | 4 860 € |































































