Ref : 2037807-0_MA
Location Bureau
À VENDRE ou À LOUER - Bureaux 450 m² - SAINT GENIS LAVAL
Saint-Genis-Laval (69230)
Loyer : 54 000 € / an
Surface 450 m²
Divisible dès 150 m²
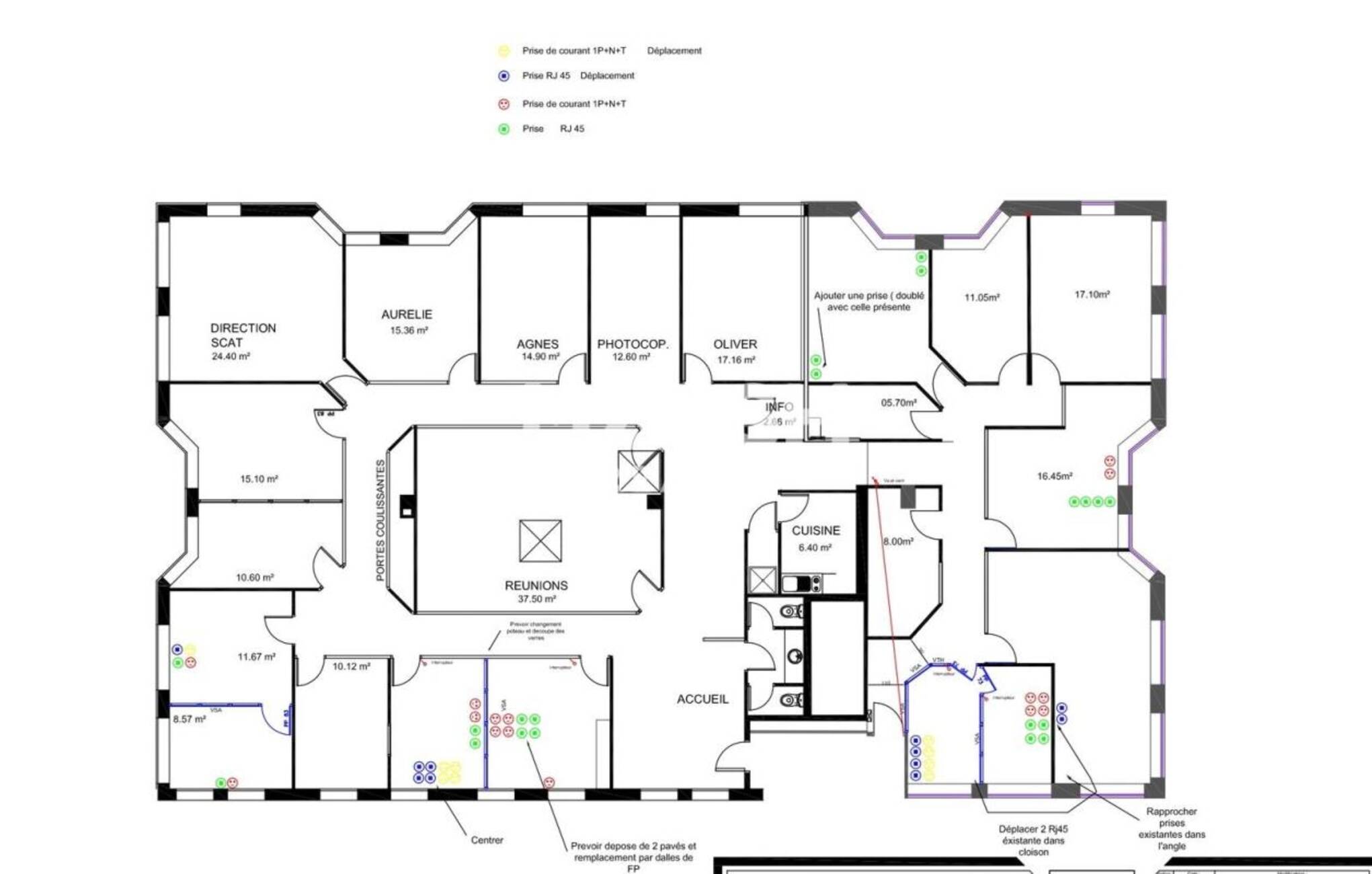
Description du bien
MALSH Realty vous propose à la vente ou à la location un plateau de bureaux d'environ 450 m², divisible en 2 lots flexibles de 300 m² et 150 m², situé au sein d'un parc tertiaire à Saint-Genis-Laval. Cet emplacement stratégique bénéficie d'une excellente accessibilité aux principaux axes autoroutiers de l'ouest lyonnais, idéal pour PME ou entreprises tertiaires en quête de modularité et de visibilité.
Prestations du bien
- Plateau de bureaux entièrement aménagé
- Cloisons vitrées toute hauteur
- Moquette au sol
- Faux plafond avec pavés LED encastrés
- Climatisation réversible
- Espace cuisine
- Baie informatique et réseau déployé en plinthes périphériques
- Sanitaires privatifs, douche
- Plateau pouvant être divisé en 2 lots de 150 et 300 m² r(actuellement regroupés)
- 2 portes palières
- Installation électrique et climatisation individuelle pour chaque lot.
Informations financières
- Charges minimales : 416 €
- Bail : commercial 3-6-9 ans
- Taxe foncière : 10 613 €
- Informations location :
Conditions particulières à la vente : Droit d'enregistrement + frais de notaire environ 7 % à la charge de l'acheteur
- Dépôt de garantie : 3 mois de loyer HT/HC
Ce local professionnel vous est présenté par
Vous souhaitez nous joindre ?
Surfaces des locaux
| Étage | Bâtiment | Type | Surfaces | Disponibilité | Loyer | Charges | Honoraires | Fiscal | Bail | Révision annuelle | Prix | Charges | Honoraires | Fiscal | Paiement Loyer | lot | Coworking | |
|---|---|---|---|---|---|---|---|---|---|---|---|---|---|---|---|---|---|---|
| R+2 | Bureaux | 300 | 15 % HT du loyer annuel HT/HC à la charge du preneur, payables à la signature du bail | T.V.A. (20%) | ILAT Indice des Loyers des Activités Tertiaires | 2,5 % HT du montant de la vente HT, à la charge de l'acquéreur | Droits d'enregistrement | Trimestriel d'avance | ||||||||||
| R+2 | Bureaux | 150 | 15 % HT du loyer annuel HT/HC à la charge du preneur, payables à la signature du bail | T.V.A. (20%) | ILAT Indice des Loyers des Activités Tertiaires | 2,5 % HT du montant de la vente HT, à la charge de l'acquéreur | Droits d'enregistrement | Trimestriel d'avance | ||||||||||
| Total Cellule | Bureaux | 450 | Immédiate | 120 HT/HC/m²/an | 11,1 HT/m²/an | 15 % HT du loyer annuel HT/HC à la charge du preneur, payables à la signature du bail | T.V.A. (20%) | commercial 3-6-9 ans | ILAT Indice des Loyers des Activités Tertiaires | 1 500 HD/m² | 2,5 % HT du montant de la vente HT, à la charge de l'acquéreur | Droits d'enregistrement | Trimestriel d'avance | |||||
| Total | 450 m² |
Localisation et accessibilité
- Bus: Lignes 12, 17 et 78
- SCNF: Brignais (France)
Ces biens pourraient vous intéresser
| Étage | Bâtiment | Type | Surfaces | Disponibilité | Loyer | Charges | Honoraires | Fiscal | Bail | Révision annuelle | Prix | Charges | Honoraires | Fiscal | Paiement Loyer | lot | Coworking | |
|---|---|---|---|---|---|---|---|---|---|---|---|---|---|---|---|---|---|---|
| R+2 | Bureaux | 300 | 15 % HT du loyer annuel HT/HC à la charge du preneur, payables à la signature du bail | T.V.A. (20%) | ILAT Indice des Loyers des Activités Tertiaires | 2,5 % HT du montant de la vente HT, à la charge de l'acquéreur | Droits d'enregistrement | Trimestriel d'avance | ||||||||||
| R+2 | Bureaux | 150 | 15 % HT du loyer annuel HT/HC à la charge du preneur, payables à la signature du bail | T.V.A. (20%) | ILAT Indice des Loyers des Activités Tertiaires | 2,5 % HT du montant de la vente HT, à la charge de l'acquéreur | Droits d'enregistrement | Trimestriel d'avance | ||||||||||
| Total Cellule | Bureaux | 450 | Immédiate | 120 HT/HC/m²/an | 11,1 HT/m²/an | 15 % HT du loyer annuel HT/HC à la charge du preneur, payables à la signature du bail | T.V.A. (20%) | commercial 3-6-9 ans | ILAT Indice des Loyers des Activités Tertiaires | 1 500 HD/m² | 2,5 % HT du montant de la vente HT, à la charge de l'acquéreur | Droits d'enregistrement | Trimestriel d'avance | |||||
| Total | 450 m² |















































