Ref : 78_002165_AP
Location Bureau
BUREAUX A LOUER
Versailles (78000)
Loyer : 14 568 € / an
Surface 52 m²
Description du bien
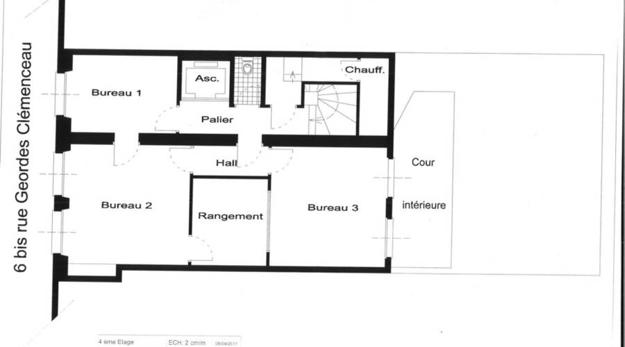
AP CONSEIL vous propose à la location une surface de bureaux de 57 m², idéalement située à Versailles, à proximité immédiate de la gare Rive Gauche.Ce plateau fonctionnel se compose de trois bureaux indépendants, d'une salle d'attente et de sanitaires. Il offre un cadre de travail agréable et pratique, adapté à différentes activités professionnelles.
N'hésitez pas à nous contacter pour programmer une visite.
Prestations du bien
- 2 entrées palières
- Ascenseur
- Bureaux partiellement cloisonnés
- Câblage RJ45
- Collectif au gaz
- Courant faible
- Interphone
- Nbre Parkings sous-sol : av St Cloud
- Peinture
- Plinthes périphériques
Informations financières
- Charges minimales : 2 536 €
- Bail : Commercial 3/6/9 ans
- Taxe foncière : 924 €
- Dépôt de garantie : 3 mois de loyer HT/HC
Ce local professionnel vous est présenté par
Vous souhaitez nous joindre ?
Localisation et accessibilité
- Bus: Versailles Rive Droite
Versailles Rive Gauche - Autoroute: A12 / A13
A86
| Bat / Etage | Type | Surface | Prix | Prix /m2 | Disponibilité |
| 4ème étage | BUREAUX | 52 | 15960 € | 280 €/m2 | IMMEDIATE |











































