Ref : 2138338-0L_MA
Location Bureau
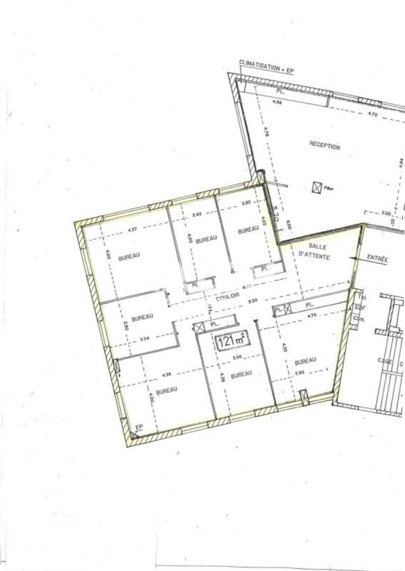
VILLEURBANNE - Bureaux de 121 m² avec garage double - A LOUER
Villeurbanne (69100)
Loyer : 20 580 € / an
Surface 121 m²
Description du bien
MALSH Realty vous propose à la location une surface de bureaux dans un immeuble emblématique situé sur un axe très passant de Villeurbanne. A proximité immédiate du 6 ème arrondissement et des transports en commun. 1 garage double compléte cette offre.
Prestations du bien
- Ascenseur
- Sol moquette
- Luminaires encastrés
- Câblage RJ45
- Fibre optique
- Chauffage réversible
- Climatisation
- Accueil
- 5 bureaux cloisonnés
- Salle de réunion
- Sanitaires communs
- Garage double en sous-sol
Informations financières
- Charges minimales : 275 €
- Bail : commercial 3-6-9 ans
- Taxe foncière : 24 €
- Informations location :
Conditions particulières à la location : Garage double en sous-sol compris dans le prix
- Dépôt de garantie : 3 mois de loyer HT/HC
Ce local professionnel vous est présenté par
Vous souhaitez nous joindre ?
Surfaces des locaux
| Étage | Bâtiment | Type | Surfaces | Disponibilité | Loyer | Charges | Honoraires | Fiscal | Bail | Révision annuelle | Prix | Charges | Honoraires | Fiscal | Paiement Loyer | lot | Coworking | |
|---|---|---|---|---|---|---|---|---|---|---|---|---|---|---|---|---|---|---|
| 2 | Bureaux | 121 | Immédiate | 170 HT/HC/m²/an | 3 300 HT/An | 15 % HT du loyer annuel HT à la charge du preneur, payables à la signature du bail | T.V.A. (20%) | commercial 3-6-9 ans | ILAT Indice des Loyers des Activités Tertiaires | Trimestriel d'avance | ||||||||
| Total | 121 m² | |||||||||||||||||
| 2 | ||||||||||||||||||
Localisation et accessibilité
- Metro: Charpennes - Charles Hernu (E)
- Tramway: Le Tonkin (Tramways)
| Étage | Bâtiment | Type | Surfaces | Disponibilité | Loyer | Charges | Honoraires | Fiscal | Bail | Révision annuelle | Prix | Charges | Honoraires | Fiscal | Paiement Loyer | lot | Coworking | |
|---|---|---|---|---|---|---|---|---|---|---|---|---|---|---|---|---|---|---|
| 2 | Bureaux | 121 | Immédiate | 170 HT/HC/m²/an | 3 300 HT/An | 15 % HT du loyer annuel HT à la charge du preneur, payables à la signature du bail | T.V.A. (20%) | commercial 3-6-9 ans | ILAT Indice des Loyers des Activités Tertiaires | Trimestriel d'avance | ||||||||
| Total | 121 m² | |||||||||||||||||
| 2 | ||||||||||||||||||



















































