Ref : 13_001700_SV
Location Entrepôt
ENTREPOT A LOUER
Marseille (13014)
Loyer : 46 464 € / an
Surface 404 m²
Description du bien
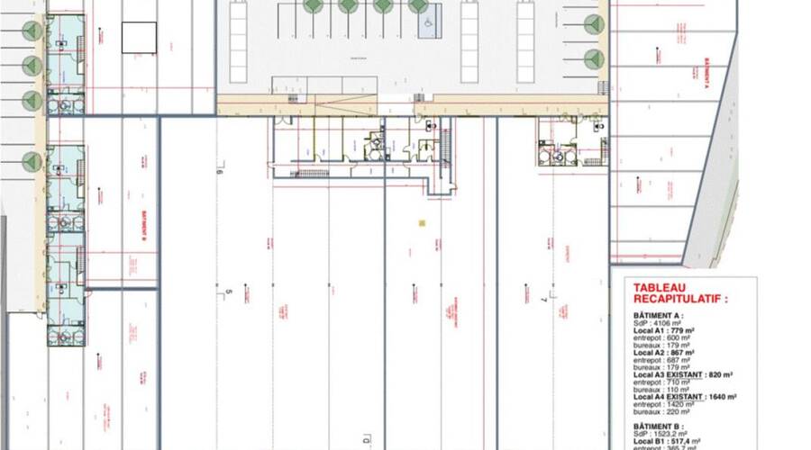
Situé dans le quartier des Arnavaux, le Projet Park Casanova est la rénovation et l'extension d'un bâtiment existant bénéficiant d'une accéssibilité idéale. Il s'agit de locaux d'activités avec bureaux d'accompagnement se situant sur un terrain clos et sécurisé.
Prestations du bien
- Site en cours de totale rénovation.
- Le Lot A1, entièrement neuf sera livré en septembre 2021
- Il disposera d'un accès plain-pied et deux quais.
- Le Lot A2, partie de rénovation de l'existant sera livré en mai 2021
- Il disposera d'un plain-pied latéral arrière et d'un quaiHSF de l'entrepôt de 6,10m à 7,40m.
- Les bureaux en rdc et rdc+1 seront créés dans ce lot.
Informations financières
- Charges minimales : 4 040 €
- Bail : Commercial 3/6/9 ans
- Taxe foncière : 3 636 €
- Dépôt de garantie : 3 mois de loyer HT/HC
Ce local professionnel vous est présenté par
Vous souhaitez nous joindre ?
Localisation et accessibilité
- Bus: Bus lignes 36B, 72, B2
Metro station Bougainville
A 350 m de la future station de métro Capitaine Gèze
A 20 minutes de la gare - Autoroute: Accès routier : liaison avec l'A55 et l'A7 via tunnel Prado Carénage
Ces biens pourraient vous intéresser
| Bat / Etage | Type | Surface | Prix | Prix /m2 | Disponibilité |
| RDC | Bureaux - 4 PKG | 65 | 8775 | 135 | |
| R+1 | Bureaux | 65 | 8775 | 135 | |
| RDC | Entrepôt | 274 | 26030 | 95 |

























