Ref : 63_2177_SR
Location Entrepôt
ENTREPOT - LOCAL D'ACTIVITE A LOUER
Puy-Guillaume (63290)
Loyer : 30 000 € / an
Surface 1 010 m²
Description du bien
Notre agence Conseil en Immobilier d'Entreprise SRI vous propose à la location un bâtiment d'activité / entrepôt idéalement situé en bordure de route à Puy-Guillaume, offrant un emplacement stratégique et de vastes possibilités d'exploitation.
Caractéristiques principales :
- Surface totale du terrain : 7 544 m², avec un grand parking en enrobé et une voirie lourde adaptée aux poids lourds.
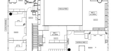
- Bâtiment principal : 650 m², comprenant :
- Atelier : 520 m² équipé d'une porte sectionnelle (4 m de large sur 3 m de haut), système de ventilation, 2 aérothermes gaz, réseau d'air comprimé et réseau canalis. Hauteur sous plafond : 4,86 m au plus haut et 3 m au plus bas.
- Bureaux : 70 m² en parfait état, isolés, avec menuiserie PVC double vitrage et faux plafonds.
- Vestiaires et sanitaires : 30 m² avec douches et WC (homme et femme).
- Atelier supplémentaire : 30 m².
- Mezzanines : 2 mezzanines de 60 m² chacune, dont une aménagée en bureaux sous pente.
- Deuxième bâtiment : 240 m² utilisé pour le stockage.
- Installations techniques : Puissance électrique importante (ancien tarif jaune, aujourd'hui en tarif bleu), vidéosurveillance, alarme, baie de brassage, armoire électrique aux normes, toit en bac acier sur la moitié du bâtiment et en fibrociment non amianté sur l'autre moitié, toiture isolée par shedisol.
- Sécurité : Site entièrement clos avec portail coulissant électrique.L'ensemble immobilier est en excellent état d'entretien, prêt à accueillir votre activité avec un cadre fonctionnel et sécurisé.
Retrouvez cette offre sur notre site web SRI et créez vos alertes de recherches !
Nous sommes à votre écoute. Contactez-nous dès maintenant pour découvrir également nos offres non diffusées.
Prestations du bien
- A.D.S.L.
- Accès gros porteur
- Accès plain-pied
- Accès PMR (Pers. à Mobilité Réduite)
- Aérothermes
- Aire de manoeuvre
- Alarme anti intrusions
- Baie de Brassage
- Bâtiment grand terrain
- Bureau(x) indiv. : : 3
- Carrelages
- Convecteurs électriques
- Couverture bac acier
- Douche(s)
- EDF 380
- Environnement paysager
- Espace extérieur privatif
- Gaine d'extraction
- Hauteur sous ferme : 4.80 m
- Issue de secours
- Luminaires faux plafond
- Mezzanine
- Murs isolés
- Parking Extérieur
- Placard(s)
- Plinthes périphériques
- Porte sectionnelle motorisée
- Portes plain-pied : 1
- Puissance électrique (KVA) : ancien tarif jaune
- Réseau CANALIS
- Sanitaires communs
- Site clos et sécurisé
- Télésurveillance
- Terrain bitumé
- Toiture isolée avec : Shedisol
- Type de couverture : Bac acier neuf et plaques
- Vestiaires
- Volets électriques
- Aérothermes GAZ
- Réseau d'air comprimé
Informations financières
- Bail : Commercial 3/6/9 ans
- Taxe foncière : 3 260 €
- Dépôt de garantie : 2 mois de loyer HT/HC
Ce local professionnel vous est présenté par
Vous souhaitez nous joindre ?
Localisation et accessibilité
- Bus: Ligne de bus.
- Autoroute: D63 , proximité D906
Ces biens pourraient vous intéresser
| Batiment - Lot | Etage | Type | Surface |
| Atelier | 520 | ||
| Bureaux | 70 | ||
| Atelier mécanique | 30 | ||
| Vestiaires douche wc | 30 | ||
| Mezzanine 2 bureaux | 60 | ||
| Mezzanine stockage | 60 | ||
| Terrain | 7544 | ||
| Silo stockage | 120m3 | ||
| Stockage extérieur | 240 |

















































