Ref : 1342726-0L_MA
Location Local commercial
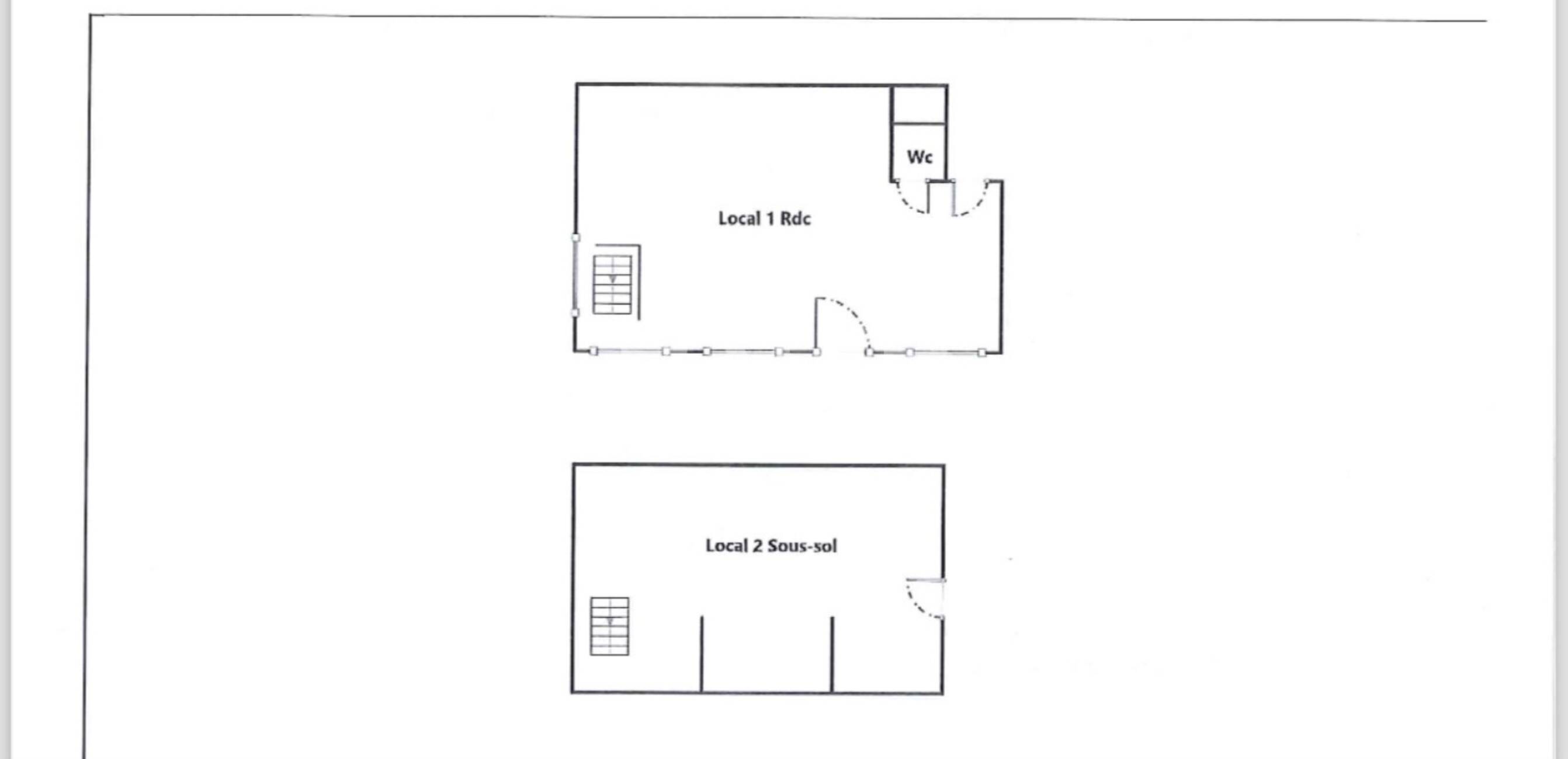
Location Local commercial - Lyon 1er (69001) - 71 m²
Lyon (69001)
Loyer : 24 000 € / an
Surface 71 m²
Description du bien
MALSH Realty & Property vous propose à la location dans les pentes de la Croix-Rousse à Lyon 1er, un local commercial en angle d'une surface totale d'environ 71 m² en RDC. Ce local anciennement occupé par une salle de danse bénéficie d'une vitrine de 10 mètres linéaires et dispose en plus d'une réserve de 64 m² au sous-sol.
Disponible immédiatement !
Prestations du bien
- Vitrine de 10 ml
- Faux-plafonds
- Luminaires encastrés
- Sanitaires privatifs
- Réserves de 64 m² au sous-sol
Informations financières
- Charges minimales : 108 €
- Bail : commercial 3-6-9 ans
- Taxe foncière : 700 € / an charge preneur
- Dépôt de garantie : 3 mois de loyer HT/HC
Ce local professionnel vous est présenté par
Vous souhaitez nous joindre ?
Surfaces des locaux
| Étage | Bâtiment | Type | Surfaces | Disponibilité | Loyer | Charges | Honoraires | Fiscal | Bail | Révision annuelle | Prix | Charges | Honoraires | Fiscal | Paiement Loyer | lot | Coworking | |
|---|---|---|---|---|---|---|---|---|---|---|---|---|---|---|---|---|---|---|
| RDC | Locaux Commerciaux | 71 | Immédiate | 338,03 HT/HC/m²/an | 1 300 HT/an | 30 % HT du loyer annuel HT/HC, à la charge du preneur, payables à la signature du bail | T.V.A. (20%) | commercial 3-6-9 ans | ILC Indice des Loyers Commerciaux | Trimestriel d'avance | 46 | |||||||
| Total | 71 m² |
Localisation et accessibilité
- Bus: Bus TCL lignes C3, C4, C5, C6, C13, C14, C18, 2, 9, 19,27, 31, 33, 40 et 45
- SCNF: Gare Lyon Perrache
- Metro: Hôtel de Ville L. Pradel (Ligne A), Croix Paquet (
Ces biens pourraient vous intéresser
| Étage | Bâtiment | Type | Surfaces | Disponibilité | Loyer | Charges | Honoraires | Fiscal | Bail | Révision annuelle | Prix | Charges | Honoraires | Fiscal | Paiement Loyer | lot | Coworking | |
|---|---|---|---|---|---|---|---|---|---|---|---|---|---|---|---|---|---|---|
| RDC | Locaux Commerciaux | 71 | Immédiate | 338,03 HT/HC/m²/an | 1 300 HT/an | 30 % HT du loyer annuel HT/HC, à la charge du preneur, payables à la signature du bail | T.V.A. (20%) | commercial 3-6-9 ans | ILC Indice des Loyers Commerciaux | Trimestriel d'avance | 46 | |||||||
| Total | 71 m² |























