Indisponible
Ref : 13_001827_SV
Location Local commercial
LOCAL COMMERCIAL A LOUER
Marseille (13006)
Surface 253 m²
Description du bien
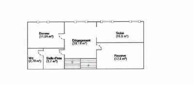
SVRE vous propose à la location local commercial de 253 m² environ + sous-sol de 103 m2. ascenseur privatif .escalier privatif de liaison .
Idéalement située, visibilité de premier ordre, cette offre locative conviendra à l'implantation d'une enseigne commerciale ou tertiaire souhaitant s'implanter dans le quartier de la Préfecture/Palais de Justice. Ideal toutes activités commerciales ou toutes activités tertiaires . possibilité d'agrandissement des vitrines .Devant le métro Estrangin .Possibilité terrasse restauration .
POSSIBLITE division rdc 103 m2 et sous-sol 103 m2 loyer 60000 e
Prestations du bien
- Accès PMR
- Ascenseur
- Bâtiment indépendant
- Bureaux cloisonnés
- Climatisation réversible
- Cloisonnement modulaire alu/verre
- Cuisine aménagée
- Luminaires faux plafond
- 2 accès sous-sol
- Ascenseur privatif et PMR du RDC au R+1
- Possibilité double accès
Ce local professionnel vous est présenté par
Vous souhaitez nous joindre ?
Localisation et accessibilité
- Bus: Métro - Ligne M1 - Station Estrangin -Préfecture
Nombeuses lignes de bus
Tram : T3 - Station Place de Rome
Gare SNCF : Gare - Autoroute: Tunnel Prado Carénage
Ces biens pourraient vous intéresser
| Bat / Etage | Type | Surface | Prix | Prix /m2 | Disponibilité |
| RDC | Local commercial | 103 | |||
| R+1 | Bureaux | 150 | |||
| Sous-sol | Loc sociaux coffres caves | 103 |




































