Ref : 1328969-0L_MA
Location Local d'activités
Location Local d'Activités - Chassieu (69680) - 1250 m²
Chassieu (69680)
Loyer : 105 000 € / an
Surface 1 250 m²
Description du bien
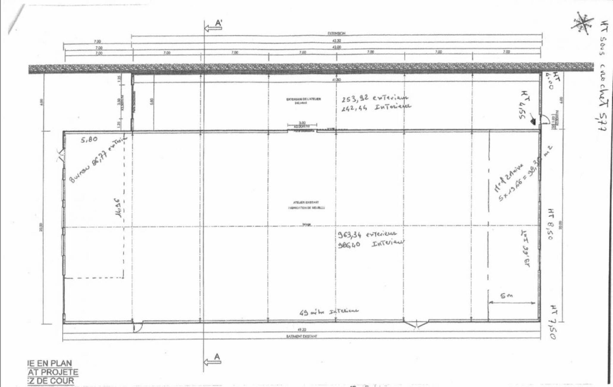
MALSH Realty & Property vous propose à la location à Chassieu à 4 minutes de l'accès à la Rocade Est, sur un terrain indépendant et clos de 2500 m², un bâtiment d'activités d'une surface totale d'environ 1250 m² comprenant 1060 m² d'activités au RDC et 190 m² de bureaux et locaux sociaux répartis sur 2 niveaux. L'espace de stockage, sans aucun poteau intermédiaire, est équipé d'un pont roulant de 5T, et d'une hauteur jusqu'à 8,50 m. Les bureaux avec accès indépendant sont en bon état. Local très polyvalent pour activité, stockage ou activité industrielle.
Disponible immédiatement !
Prestations du bien
- Construction en 1984 (1000 m²) et extension de 250 m² en 2018
- Accès de plain-pied / Accès semi
- 2 portes sectionnelles (1 de 4,50 m x 4 m et 1 de 3,50 m x 3,50 m)
- 1 porte piétonne + 1 porte double piétonne
- Charpente métallique
- Hauteur libre au plus bas : 6,30 m et 4 m pour les 250 m² d'extension
- Structure : bardage double peau et en agglomérés de béton sur 2 mètres de haut
- Couverture : bac acier avec isolation
- Dalle béton anti-poussière
- Éclairage naturel et par tubes fluorescents et tubes LED
- Réseau pour l'air comprimé / Canalys
- 1 pont roulant de 5 Tonnes (Hauteur sous crochet : 5,60 m )
- Électricité 380 volt Puissance 84 kVA
- Tarif Jaune / Gaz de ville
- Plateforme de stockage de 100 m²
- Chauffage par radiant gaz et l'extension par 2 aérothermes
- Locaux sociaux :
- RDC : Sanitaires, Douches, Lavabos, WC-Réfectoire.
- En étage : Vestiaires
- Bureaux :
- Accès indépendant par porte double directement de l'extérieur
- RDC : 1 grand bureau
- 1é étage : 4 bureaux
- Climatisation et chauffage par pompe à chaleur électrique
- Immeuble indépendant
- Surface terrain : 2500
Informations financières
- Bail : commercial 3-6-9 ans
- Taxe foncière : 6 502 €
- Informations location :
Conditions particulières à la location : Frais de bail notarié à la charge du preneur
- Dépôt de garantie : 3 mois de loyer HT/HC
Ce local professionnel vous est présenté par
Vous souhaitez nous joindre ?
Surfaces des locaux
| Étage | Bâtiment | Type | Surfaces | Disponibilité | Loyer | Charges | Honoraires | Fiscal | Bail | Révision annuelle | Prix | Charges | Honoraires | Fiscal | Paiement Loyer | lot | Coworking | |
|---|---|---|---|---|---|---|---|---|---|---|---|---|---|---|---|---|---|---|
| RDC + R+1 | Bureaux | 190 | 15 % HT du loyer annuel HT/HC, à la charge du preneur, payables à la signature du bail | T.V.A. (20%) | ILAT Indice des Loyers des Activités Tertiaires | Trimestriel d'avance | ||||||||||||
| RDC | Activités | 1 060 | 15 % HT du loyer annuel HT/HC, à la charge du preneur, payables à la signature du bail | T.V.A. (20%) | ILAT Indice des Loyers des Activités Tertiaires | Trimestriel d'avance | ||||||||||||
| Total Cellule | Activités | 1 250 | Immédiate | 84 HT/HC/m²/an | 15 % HT du loyer annuel HT/HC, à la charge du preneur, payables à la signature du bail | T.V.A. (20%) | commercial 3-6-9 ans | ILAT Indice des Loyers des Activités Tertiaires | Trimestriel d'avance | |||||||||
| Total | 1 250 m² |
Localisation et accessibilité
- Bus: Bus TCL lignes 28, 68, 76 et Zi5
Ces biens pourraient vous intéresser
| Étage | Bâtiment | Type | Surfaces | Disponibilité | Loyer | Charges | Honoraires | Fiscal | Bail | Révision annuelle | Prix | Charges | Honoraires | Fiscal | Paiement Loyer | lot | Coworking | |
|---|---|---|---|---|---|---|---|---|---|---|---|---|---|---|---|---|---|---|
| RDC + R+1 | Bureaux | 190 | 15 % HT du loyer annuel HT/HC, à la charge du preneur, payables à la signature du bail | T.V.A. (20%) | ILAT Indice des Loyers des Activités Tertiaires | Trimestriel d'avance | ||||||||||||
| RDC | Activités | 1 060 | 15 % HT du loyer annuel HT/HC, à la charge du preneur, payables à la signature du bail | T.V.A. (20%) | ILAT Indice des Loyers des Activités Tertiaires | Trimestriel d'avance | ||||||||||||
| Total Cellule | Activités | 1 250 | Immédiate | 84 HT/HC/m²/an | 15 % HT du loyer annuel HT/HC, à la charge du preneur, payables à la signature du bail | T.V.A. (20%) | commercial 3-6-9 ans | ILAT Indice des Loyers des Activités Tertiaires | Trimestriel d'avance | |||||||||
| Total | 1 250 m² |

















































