Ref : 95_0594_IN
Location Local d'activités
LOCAL D'ACTIVITE A LOUER
Cormeilles-en-Parisis (95240)
Loyer : 24 000 € / an
Surface 130 m²
Description du bien
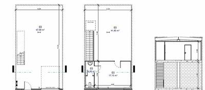
INVEST CONSEIL vous propose à la location un local d'activités de 130 m² dans la ZA des Champs Guillaume de CORMEILLES EN PARISIS.
Les + :
- Local neuf
- Situation au pied de la D392
- Nombreux accès par les transports en communs
Prestations du bien
- Accès de plain pied
- Accès PMR
- Accès poids lourds
- Bardage double peau
- Borne de rechargement électrique :
- Contrôle d'accès
- Convecteurs électriques
- Double vitrage
- Eclairage extérieur
- Eclairage LED
- Espaces verts
- Hauteur sous plafond : 3,50 m à 4,10 m
- Mezzanine
- Porte sectionnelle : 3 m x 3 m et 3,5 m x 3 m
- Puissance électrique : 36
- Revêtement sol en moquette
- Revêtement sol quartzé
- Sanitaires PMR
- Site clos
- Site clos et sécurisé
- Toiture bac acier
- Vidéosurveillance
- Circulation piétonne PMR
Ce local professionnel vous est présenté par
Vous souhaitez nous joindre ?
Localisation et accessibilité
- Bus: RER A - Gare de "Sartrouville"
Bus 5 (gare de Sartrouville) et 3019 ( gare de Cormeilles en Parisis) - Autoroute: A15 / A86 / RD 395
| Batiment - Lot | Etage | Type | Surface totale (en m2) | Emplacement(s) de parking | Loyer annuel HT/HC | Provision annuelle pour charges et taxes HT | Disponibilité |
| - | RDC : 67 m² / R+1 : 63 m² | Local d'activités / Bureaux | 130 | 1 | 24 000,00 € | NC | immédiate |
| RDC | Activités | 67 | |||||
| R+1 | Bureaux | 63 |






































