Ref : 1040398-0L_MA
Location Local d'activités
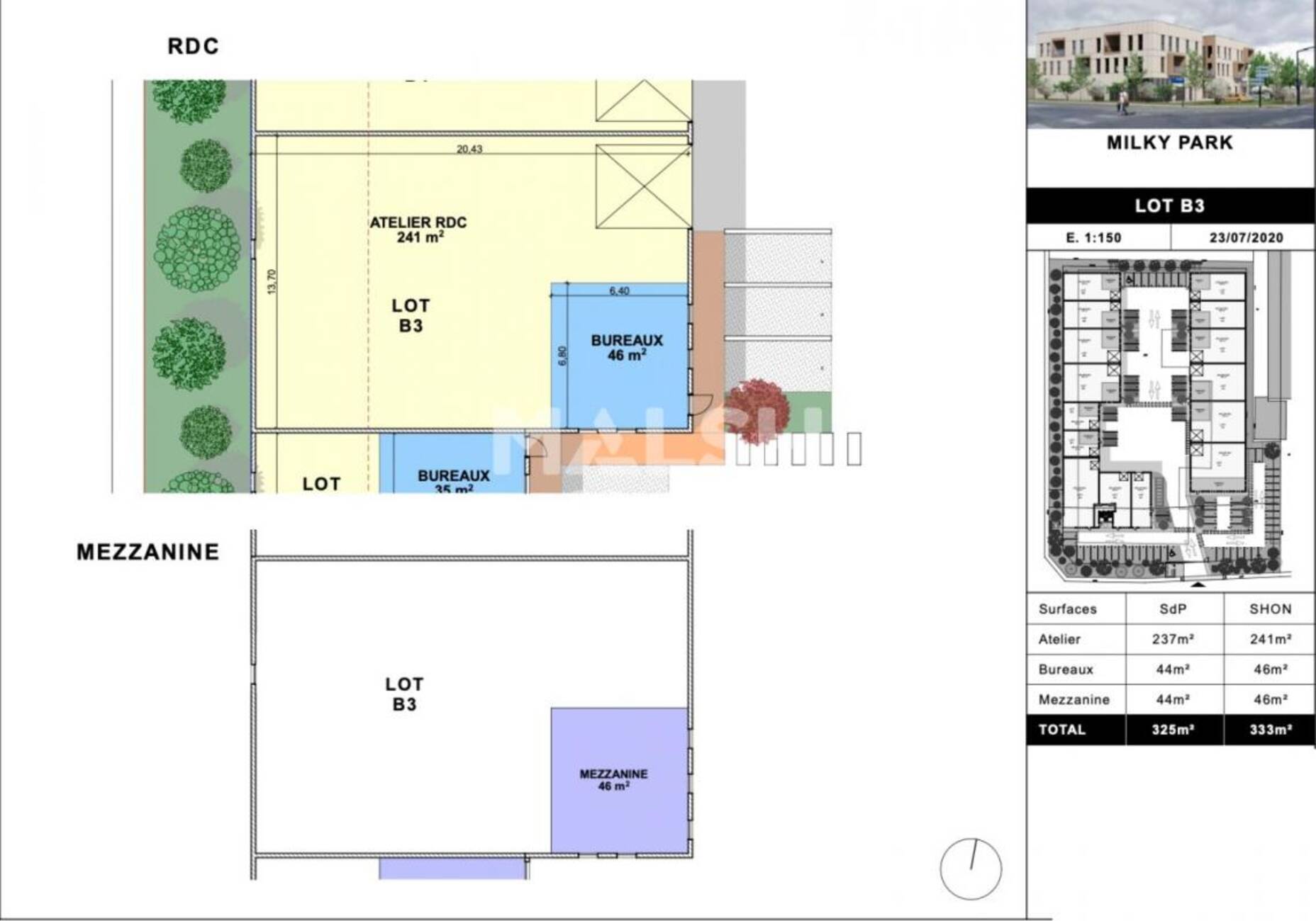
Location Local d'Activités - Décines Charpieu (69150) - 325 m²
Décines-Charpieu (69150)
Loyer : 37 200 € / an
Surface 325 m²
Description du bien
MALSH Realty vous propose à la location au sein d'un parc d'activités à Décines-Charpieu, un local d'activités d'une surface totale d'environ 325 m² comprenant 237 m² d'activités, 44 m² de bureaux en RDC et 44 m² de mezzanine. Ce local dispose de 3 places de parking privatives.
Disponible le 1er décembre 2025 !
Prestations du bien
- Accès poids lourds
- Cour de déchargement
- Portail automatique
- Porte sectionnelle électrique (4 m x 4.50 m)
- 3 emplacements de parking
- Charpente métallique
- Structure : bardage double peau
- Couverture : bac acier / Isolation
- Sol : dalle industrielle
- Tarif bleu en triphasé
- Bureaux aménagés au RDC
Informations financières
- Charges minimales : 174 €
- Bail : commercial 3-6-9 ans
- Taxe foncière : 3 972 €
- Informations location :
Conditions particulières à la location : Frais de rédaction de bail notarié : 1 500 euros HT
GAPD à prévoir - Dépôt de garantie : 3 mois de loyer HT/HC
Ce local professionnel vous est présenté par
Vous souhaitez nous joindre ?
Surfaces des locaux
| Étage | Bâtiment | Type | Surfaces | Disponibilité | Loyer | Charges | Honoraires | Fiscal | Bail | Révision annuelle | Prix | Charges | Honoraires | Fiscal | Paiement Loyer | lot | Coworking | |
|---|---|---|---|---|---|---|---|---|---|---|---|---|---|---|---|---|---|---|
| Mezzanine | 44 | 20 % HT du loyer annuel HT à la charge du preneur, payables à la signature du bail | T.V.A. (20%) | ILAT Indice des Loyers des Activités Tertiaires | Trimestriel d'avance | |||||||||||||
| RDC | Activités | 237 | 20 % HT du loyer annuel HT à la charge du preneur, payables à la signature du bail | T.V.A. (20%) | ILAT Indice des Loyers des Activités Tertiaires | Trimestriel d'avance | ||||||||||||
| RDC | Bureaux | 44 | 20 % HT du loyer annuel HT à la charge du preneur, payables à la signature du bail | T.V.A. (20%) | ILAT Indice des Loyers des Activités Tertiaires | Trimestriel d'avance | ||||||||||||
| Parkings | - | 20 % HT du loyer annuel HT à la charge du preneur, payables à la signature du bail | T.V.A. (20%) | ILAT Indice des Loyers des Activités Tertiaires | Trimestriel d'avance | |||||||||||||
| Total Cellule B3 | Activités | 325 | 1er décembre 2025 | 114,46 HT/HC/m²/an | 2 090 HT/an | 20 % HT du loyer annuel HT à la charge du preneur, payables à la signature du bail | T.V.A. (20%) | commercial 3-6-9 ans | ILAT Indice des Loyers des Activités Tertiaires | Trimestriel d'avance | B3 | |||||||
| Total | 325 m² | |||||||||||||||||
| 3 extérieur | ||||||||||||||||||
Localisation et accessibilité
- Bus: Bus TCL lignes 16, 67, 79 et Zi3
- Tramway: Tramway lignes T3 et T7
- Autoroute: Accès par le Bd Périphérique Laurent Bonnevay, la Rocade Est (A46), l'A43 et l'A42
Ces biens pourraient vous intéresser
| Étage | Bâtiment | Type | Surfaces | Disponibilité | Loyer | Charges | Honoraires | Fiscal | Bail | Révision annuelle | Prix | Charges | Honoraires | Fiscal | Paiement Loyer | lot | Coworking | |
|---|---|---|---|---|---|---|---|---|---|---|---|---|---|---|---|---|---|---|
| Mezzanine | 44 | 20 % HT du loyer annuel HT à la charge du preneur, payables à la signature du bail | T.V.A. (20%) | ILAT Indice des Loyers des Activités Tertiaires | Trimestriel d'avance | |||||||||||||
| RDC | Activités | 237 | 20 % HT du loyer annuel HT à la charge du preneur, payables à la signature du bail | T.V.A. (20%) | ILAT Indice des Loyers des Activités Tertiaires | Trimestriel d'avance | ||||||||||||
| RDC | Bureaux | 44 | 20 % HT du loyer annuel HT à la charge du preneur, payables à la signature du bail | T.V.A. (20%) | ILAT Indice des Loyers des Activités Tertiaires | Trimestriel d'avance | ||||||||||||
| Parkings | - | 20 % HT du loyer annuel HT à la charge du preneur, payables à la signature du bail | T.V.A. (20%) | ILAT Indice des Loyers des Activités Tertiaires | Trimestriel d'avance | |||||||||||||
| Total Cellule B3 | Activités | 325 | 1er décembre 2025 | 114,46 HT/HC/m²/an | 2 090 HT/an | 20 % HT du loyer annuel HT à la charge du preneur, payables à la signature du bail | T.V.A. (20%) | commercial 3-6-9 ans | ILAT Indice des Loyers des Activités Tertiaires | Trimestriel d'avance | B3 | |||||||
| Total | 325 m² | |||||||||||||||||
| 3 extérieur | ||||||||||||||||||






























































