Ref : 92_0027_IN
Location Local d'activités
LOCAL D'ACTIVITE A LOUER
Gennevilliers (92230)
Loyer : 114 600 € / an
Surface 764 m²
Description du bien
INVEST CONSEIL vous propose à la location un local d'activité de 764 m² à proximité immédiate des Quais de Seine à Gennevilliers.
Les + :
- Accès immédiat à l'A86
- Accès immédiat RER C et Bus 177
- Accès poids lourds
- Locaux polyvalents
- Grande hauteur
- Proche Paris
Prestations du bien
- Accès de plain pied
- Accès poids lourds
- Aérothermes gaz
- Climatisation réversible
- Contrôle d'accès
- Eclairage extérieur
- Eclairage LED
- Espaces verts
- Faux plafond
- Fibre optique
- Goulotte technique
- Hauteur sous ferme : 3,80 m
- Porte sectionnelle : 3,8 m x 3 m
- Revêtement sol en moquette
- Revêtement sol quartzé
- Sanitaires privés
- Site clos et sécurisé
- Système de désenfumage
- Toiture bi-peau
- Eau potable : Compteur privatif
- Électricité : Compteur privatif
Informations financières
- Charges minimales : 12 606 €
- Bail : Commercial 6/9/12 ans
- Taxe foncière : 13 095 €
- Dépôt de garantie : 3 mois de loyer HT/HC
Ce local professionnel vous est présenté par
Vous souhaitez nous joindre ?
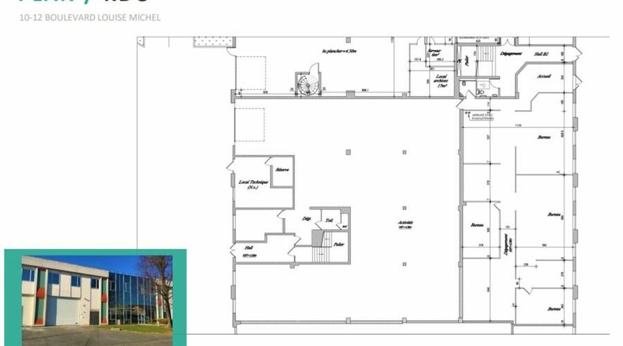
Surfaces des locaux
Localisation et accessibilité
- Bus: RER C : "Les GRÉSILLONS"
METRO : Ligne 13 - 14 "Mairie de Saint Ouen"
BUS n° 137/166 - Autoroute: A 86 / A proximité immédiate des quais de Seine
| Batiment - Lot | Etage | Type | Surface totale (en m2) | Emplacement(s) de parking | Loyer annuel HT/HC | Provision annuelle pour charges et taxes HT | Disponibilité |
| Lot B1 Bis | Local d'activité / Bureaux | 764 | 6 | 114 600,00 € | 30 636,88 € | 3 mois après accord | |
| RDC | Local d'activité | 470 | |||||
| RDC | Bureaux | 284 | |||||
| RDC | Parties communes | 10 |






































