Indisponible
Ref : 3448219815_TH
Location Local d'activités
LOCAL D'ACTIVITE - ENTREPOT A LOUER
Saint-André-de-Sangonis (34725)
Surface 558 m²
Description du bien
Thélène Entreprises vous propose à la location :
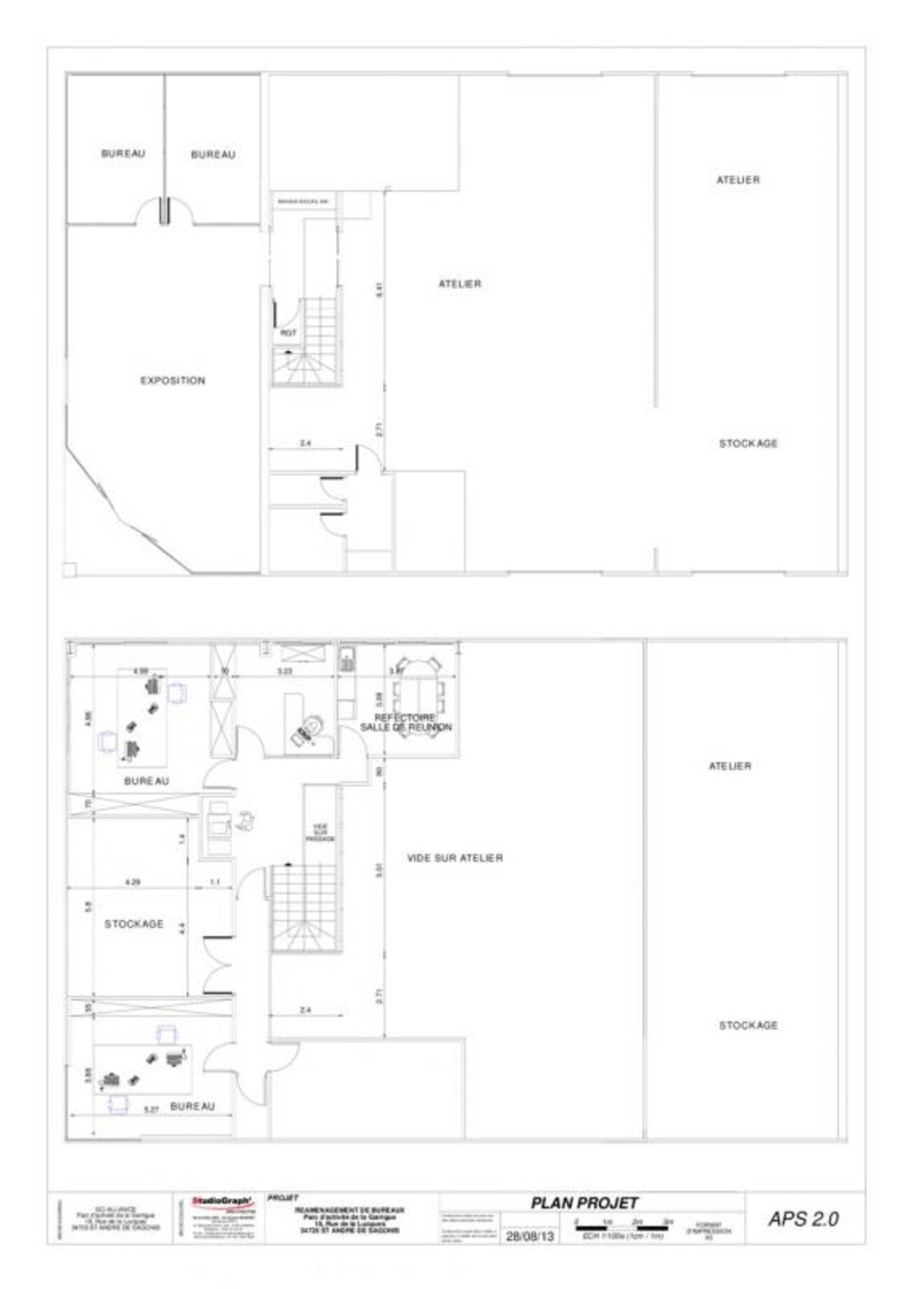
Local mixte de 558 m² composé ainsi :
- Rez-de-chaussée : Atelier de 280 m², showroom de 69 m², bureaux de 30 m² et un toilette.
- A l'étage : 133 m² de bureaux (de 25, 24 et 12 m²), stockage de 36 m², local archives de 20 m², local informatique climatisé, cuisine commune de 14 m².
Espace extérieur de 410 m² dont 250 m² clos
HSP 6m, 2 grandes portes sectionnelles automatiques (4m40 x 4m), courant triphasé, système de vidéo surveillance et alarme, portail d'accès électrique
Loyer : 4000 Euros HT / mois
Honoraires : 15% HT du loyer annuel HT
Retrouvez l'ensemble de nos offres sur notre site : https://www.thelene-entreprises.com/
Les informations sur les risques auxquels ce bien est exposé sont disponibles sur le site Géorisques : www.georisques.gouv.fr
Prestations du bien
- Accès plain-pied
- Alarme anti intrusions
- Bureaux cloisonnés
- Climatisation réversible
- Couverture bac acier
- Double vitrage
- Eclairage extérieur
- EDF 380
- Façade bardage double peau
- Faux plafond
- Fibre optique
- Hall accueillant
- Hauteur sous plafond : 6m
- Immeuble indépendant
- Local social
- Luminaires faux plafond
- Murs isolés
- Parking Extérieur
- Parking Visiteur
- Placard(s)
- Plinthes périphériques
- Portail sur horloge
- Porte sectionnelle motorisée : 4m40 X 4m
- Salle de réunion
- Salle informatique
- Sanitaires privés
- Secrétariat
- Site clos et sécurisé
- Terrain bitumé
- Terrain clos
- Toiture isolée
- Vitrine
Ce local professionnel vous est présenté par
Vous souhaitez nous joindre ?
Localisation et accessibilité
- Autoroute: Local situé à proximité d'une sortie de l'autoroute A75 et A750
Ces biens pourraient vous intéresser
| Batiment - Lot | Etage | Type | Surface | Loyer annuel | Charges annuelles | Parkings | Disponibilité |























































