Ref : 1366377-0L_MA
Location Local d'activités
Locaux d'activités - A louer - Saint Etienne Proximité Technopole - 489 m²
Saint-Étienne (42000)
Loyer : 42 000 € / an
Surface 489 m²
Description du bien
MALSH Realty propose à la location à Saint Etienne, à proximité du Technopole, dans le secteur du Zenith, un local d'activités à usage de commerce, bureaux et stockage en parfait état avec une belle hauteur et un terrain en partie privatif
Prestations du bien
- Les locaux situés en façade de la rue Scheurer Kestner, bénéficient d'un accès depuis le parking.
- Showroom - Dépôt :
- Structure métallique,
- Bardage double peau,
- Couverture bac acier,
- Dalle béton quartzée et peinte dans la masse,
- Huisseries aluminium,
- Chauffage par aérothermes gaz,
- 1 portail sectionnel d'accès,
- 1 accès showroom indépendant,
- Hauteur libre 6 mètres,
- Bureaux :
- Au sein de la structure,
- Cloisons placoplâtre peintes,
- Faux plafonds dalles, pavés leds,
- Chauffage central gaz, distribution par radiateurs,
- Câblage informatique,
- Mezzanine :
- Plancher bois, avec bureaux en cloisons bois vitrées et archives
- Terrain entièrement clos, aménagé et arboré avec entrée commune, stationnements privatifs.
Informations financières
- Bail : commercial 3-6-9 ans
- Taxe foncière : 5 049 €
- Dépôt de garantie : 3 mois de loyer HT/HC
Ce local professionnel vous est présenté par
Vous souhaitez nous joindre ?
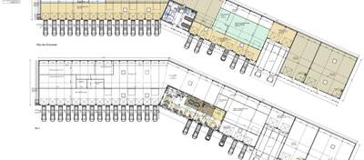
Surfaces des locaux
| Étage | Bâtiment | Type | Surfaces | Disponibilité | Loyer | Charges | Honoraires | Fiscal | Bail | Révision annuelle | Prix | Charges | Honoraires | Fiscal | Paiement Loyer | lot | Coworking | |
|---|---|---|---|---|---|---|---|---|---|---|---|---|---|---|---|---|---|---|
| Mezzanine | Bureaux | 104 | Immédiate | 20% HT du loyer annuel HT à la charge du preneur, payables à la signature du bail | T.V.A. (20%) | ILC Indice des Loyers Commerciaux | Trimestriel d'avance | |||||||||||
| RDC | Stockage | 144 | Immédiate | 20% HT du loyer annuel HT à la charge du preneur, payables à la signature du bail | T.V.A. (20%) | ILC Indice des Loyers Commerciaux | Trimestriel d'avance | |||||||||||
| RDC | Show Room | 138 | Immédiate | 20% HT du loyer annuel HT à la charge du preneur, payables à la signature du bail | T.V.A. (20%) | ILC Indice des Loyers Commerciaux | Trimestriel d'avance | |||||||||||
| RDC | Bureaux | 91 | Immédiate | 20% HT du loyer annuel HT à la charge du preneur, payables à la signature du bail | T.V.A. (20%) | ILC Indice des Loyers Commerciaux | Trimestriel d'avance | |||||||||||
| RDC | Locaux sociaux | 12 | Immédiate | 20% HT du loyer annuel HT à la charge du preneur, payables à la signature du bail | T.V.A. (20%) | ILC Indice des Loyers Commerciaux | Trimestriel d'avance | |||||||||||
| Total Cellule | Bureaux | 489 | Immédiate | 85,89 HT/HC/m²/an | 525 HT/An | 20% HT du loyer annuel HT à la charge du preneur, payables à la signature du bail | T.V.A. (20%) | commercial 3-6-9 ans | ILC Indice des Loyers Commerciaux | Trimestriel d'avance | ||||||||
| Total | 489 m² |
Localisation et accessibilité
- SCNF: St-Étienne-Carnot (France)
- Tramway: Ligne 3 Arrêt Zénith à 100 m
- Autoroute: A72 - Sortie Technonpole à 500 m
Ces biens pourraient vous intéresser
| Étage | Bâtiment | Type | Surfaces | Disponibilité | Loyer | Charges | Honoraires | Fiscal | Bail | Révision annuelle | Prix | Charges | Honoraires | Fiscal | Paiement Loyer | lot | Coworking | |
|---|---|---|---|---|---|---|---|---|---|---|---|---|---|---|---|---|---|---|
| Mezzanine | Bureaux | 104 | Immédiate | 20% HT du loyer annuel HT à la charge du preneur, payables à la signature du bail | T.V.A. (20%) | ILC Indice des Loyers Commerciaux | Trimestriel d'avance | |||||||||||
| RDC | Stockage | 144 | Immédiate | 20% HT du loyer annuel HT à la charge du preneur, payables à la signature du bail | T.V.A. (20%) | ILC Indice des Loyers Commerciaux | Trimestriel d'avance | |||||||||||
| RDC | Show Room | 138 | Immédiate | 20% HT du loyer annuel HT à la charge du preneur, payables à la signature du bail | T.V.A. (20%) | ILC Indice des Loyers Commerciaux | Trimestriel d'avance | |||||||||||
| RDC | Bureaux | 91 | Immédiate | 20% HT du loyer annuel HT à la charge du preneur, payables à la signature du bail | T.V.A. (20%) | ILC Indice des Loyers Commerciaux | Trimestriel d'avance | |||||||||||
| RDC | Locaux sociaux | 12 | Immédiate | 20% HT du loyer annuel HT à la charge du preneur, payables à la signature du bail | T.V.A. (20%) | ILC Indice des Loyers Commerciaux | Trimestriel d'avance | |||||||||||
| Total Cellule | Bureaux | 489 | Immédiate | 85,89 HT/HC/m²/an | 525 HT/An | 20% HT du loyer annuel HT à la charge du preneur, payables à la signature du bail | T.V.A. (20%) | commercial 3-6-9 ans | ILC Indice des Loyers Commerciaux | Trimestriel d'avance | ||||||||
| Total | 489 m² |


























