Ref : 1417490-0L_MA
Location Local d'activités
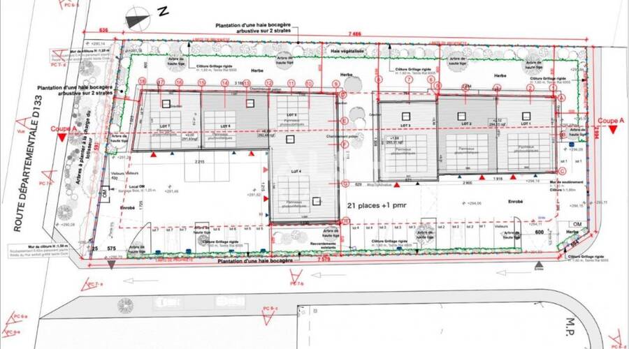
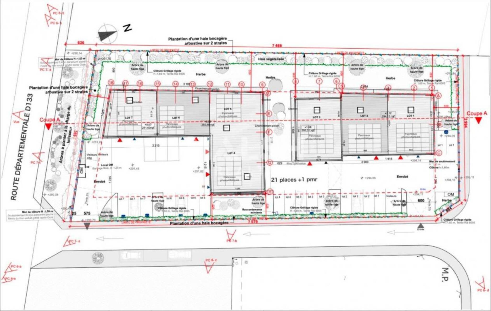
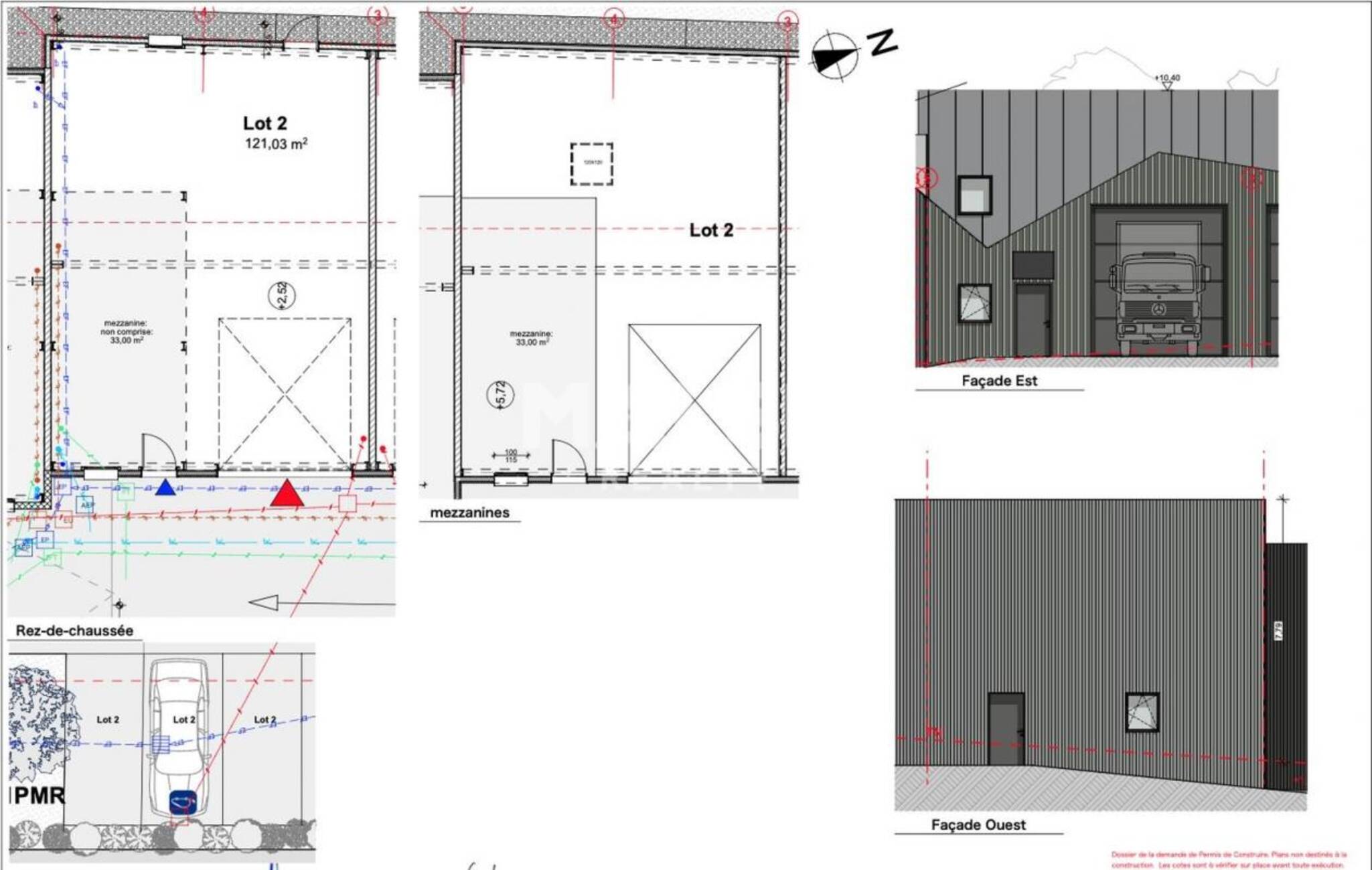
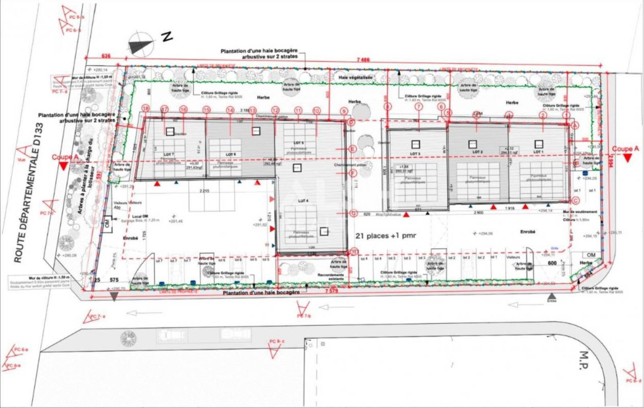
Location Local d'Activités neuf - Saint Etienne la Varenne (69460) - 154 m²
Saint-Étienne-la-Varenne (69460)
Loyer : 16 812 € / an
Surface 154 m²
Description du bien
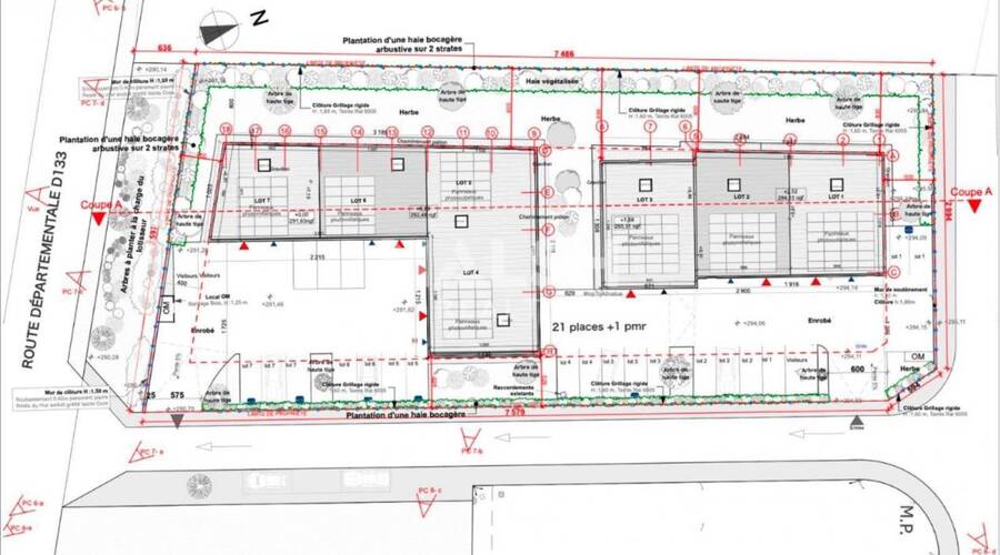
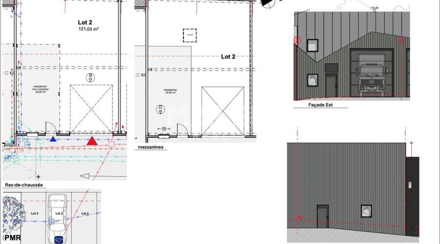
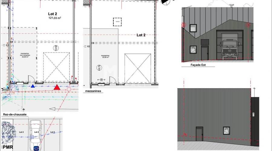
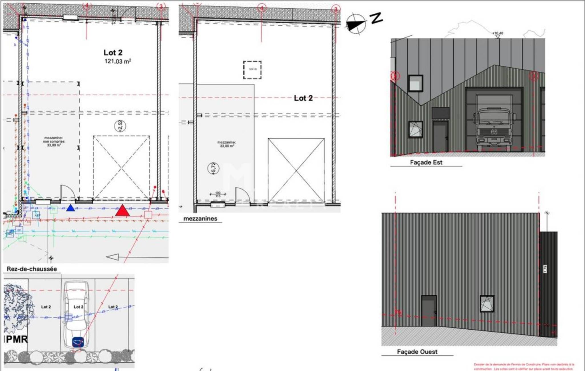
MALSH Realty vous propose à la location au coeur de la ZA de la Jonchère à St-Etienne-la-Varenne, au sein d'un nouveau parc d'activités clos composé de 2 bâtiments, un local d'activités neuf d'une surface totale d'environ 154 m² comprenant 121 m² d'activités en RDC et 33 m² de mezzanine non aménagée. Ce local bénéficie de 2 à 3 places de parking extérieures.
Disponible immédiatement !
Prestations du bien
- Accès de plain-pied / Accès semi
- Porte sectionnelle motorisable (4 m x 4,5 m)
- Porte piéton + sortie de secours
- 2 à 3 places de parking extérieures
- Structure : bardage double peau
- Hauteur sous plafond : 6,95 m
- Toiture isolée
- Dalle industrielle
- Arrivée d'eau et évacuation
- Compteur Linky individuel
- Alimentation électrique : 230 V - Triphasé possible
- Mezzanine non aménagée
- Structure adaptée à des charges légères
- Hauteur sous mezzanine : 2,88 m
Informations financières
- Bail : commercial 3-6-9 ans
- Dépôt de garantie : 3 mois de loyer HT/HC
Ce local professionnel vous est présenté par
Vous souhaitez nous joindre ?
Surfaces des locaux
| Étage | Bâtiment | Type | Surfaces | Disponibilité | Loyer | Charges | Honoraires | Fiscal | Bail | Révision annuelle | Prix | Charges | Honoraires | Fiscal | Paiement Loyer | lot | Coworking | |
|---|---|---|---|---|---|---|---|---|---|---|---|---|---|---|---|---|---|---|
| Mezzanine | 33 | 15 % HT du loyer annuel HT/HC à la charge du preneur, payables à la signature du bail | T.V.A. (20%) | ILAT Indice des Loyers des Activités Tertiaires | Trimestriel d'avance | |||||||||||||
| RDC | Activités | 121 | 15 % HT du loyer annuel HT/HC à la charge du preneur, payables à la signature du bail | T.V.A. (20%) | ILAT Indice des Loyers des Activités Tertiaires | Trimestriel d'avance | ||||||||||||
| Total Cellule 2 | Activités | 154 | Immédiate | 109,09 HT/HC/m²/an | 15 % HT du loyer annuel HT/HC à la charge du preneur, payables à la signature du bail | T.V.A. (20%) | commercial 3-6-9 ans | ILAT Indice des Loyers des Activités Tertiaires | Trimestriel d'avance | 2 | ||||||||
| Total | 154 m² |
Localisation et accessibilité
- Autoroute: À 10 km de l'autoroute A6 (Belleville-en-Beaujolais ou Arnas)
Ces biens pourraient vous intéresser
| Étage | Bâtiment | Type | Surfaces | Disponibilité | Loyer | Charges | Honoraires | Fiscal | Bail | Révision annuelle | Prix | Charges | Honoraires | Fiscal | Paiement Loyer | lot | Coworking | |
|---|---|---|---|---|---|---|---|---|---|---|---|---|---|---|---|---|---|---|
| Mezzanine | 33 | 15 % HT du loyer annuel HT/HC à la charge du preneur, payables à la signature du bail | T.V.A. (20%) | ILAT Indice des Loyers des Activités Tertiaires | Trimestriel d'avance | |||||||||||||
| RDC | Activités | 121 | 15 % HT du loyer annuel HT/HC à la charge du preneur, payables à la signature du bail | T.V.A. (20%) | ILAT Indice des Loyers des Activités Tertiaires | Trimestriel d'avance | ||||||||||||
| Total Cellule 2 | Activités | 154 | Immédiate | 109,09 HT/HC/m²/an | 15 % HT du loyer annuel HT/HC à la charge du preneur, payables à la signature du bail | T.V.A. (20%) | commercial 3-6-9 ans | ILAT Indice des Loyers des Activités Tertiaires | Trimestriel d'avance | 2 | ||||||||
| Total | 154 m² |



















































