Indisponible
Ref : 95_0408_IN
Vente Bureau
BUREAUX A VENDRE
Groslay (95410)
Surface 1 758 m²
Divisible dès 172 m²
Description du bien
INVEST CONSEIL vous propose en VEFA des bureaux de 172 m² à 317 m² situés dans la nouvelle ZAC des Monts du Val d'Oise à GROSLAY.
Les + :
- Une parcelle intégrée au village d'entreprises
- Indépendance fonctionnelle
- Visibilité exceptionnelle
Prestations du bien
- Faux plafond
- Parking privatifs
- RE 2020
- Sanitaires privés
- Site clos et sécurisé
- Bureaux livrés prêts à cloisonner avec sanitaires privatifs livrés finis
- Hauteur sous plafond : 2,70 m
- Eclairage
- Revêtement sol
- Peinture murale
- Pompe à chaleur réversible et VMC double flux
- Labellisation BIODIVERSITY à l'échelle du site
- Local à vélo
Ce local professionnel vous est présenté par
Vous souhaitez nous joindre ?
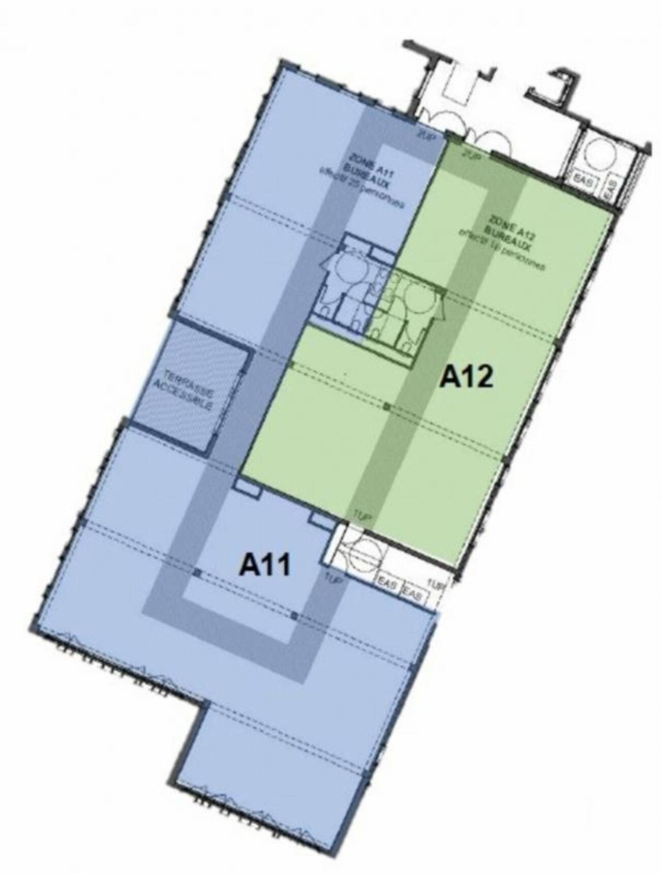
Surfaces des locaux
| Batiment - Lot | Etage | Type | Surface totale (en m2) | Emplacement(s) de parking | Prix de vente net vendeur HT | Prix de vente au m2 HT | Disponibilité |
| Bat 1A - Cellule A12 | R+1 avec terrasse commune | Bureaux | 184 | 3 | 527 889,00 € | 2 608,00 € | Début 2026 |
| Bat 1A - Cellule A11 | R+1 avec terrasse privative | Bureaux visibilité rond-point | 317 | 5 | 949 588,00 € | 2 702,00 € | Début 2026 |
| Bat 1A - Cellule A21 | R+2 avec terrasse commune | Bureaux vue village | 301 | 4 | 870 601,00 € | 2 631,00 € | Début 2026 |
| Bat 1A - Cellule A23 | R+2 avec terrasse commune | Bureaux visibilité rond-point | 317 | 4 | 912 790,00 € | 2 625,00 € | Début 2026 |
| Bat 1A - Cellule A24 | R+2 avec terrasse commune | Bureaux | 184 | 4 | 531 398,00 € | 2 660,00 € | Début 2026 |
| Bat 1A - Cellule A31 | R+2 avec terrasse privative | Bureaux vue village | 283 | 4 | 829 997,00 € | 2 690,00 € | Début 2026 |
| Bat 1A - Cellule A32 | R+2 avec terrasse commune | Bureaux | 172 | 3 | 484 293,00 € | 2 622,00 € | Début 2026 |
Localisation et accessibilité
- Bus: Ligne H - Gare de "Groslay"
RER D - Gare de "Sarcelles"
T5 - Les "Cholettes"
Bus Transdev : Ligne 37 à 200 m - Autoroute: N1 / A1 / N16 / A104
Ces biens pourraient vous intéresser
| Batiment - Lot | Etage | Type | Surface totale (en m2) | Emplacement(s) de parking | Prix de vente net vendeur HT | Prix de vente au m2 HT | Disponibilité |
| Bat 1A - Cellule A12 | R+1 avec terrasse commune | Bureaux | 184 | 3 | 527 889,00 € | 2 608,00 € | Début 2026 |
| Bat 1A - Cellule A11 | R+1 avec terrasse privative | Bureaux visibilité rond-point | 317 | 5 | 949 588,00 € | 2 702,00 € | Début 2026 |
| Bat 1A - Cellule A21 | R+2 avec terrasse commune | Bureaux vue village | 301 | 4 | 870 601,00 € | 2 631,00 € | Début 2026 |
| Bat 1A - Cellule A23 | R+2 avec terrasse commune | Bureaux visibilité rond-point | 317 | 4 | 912 790,00 € | 2 625,00 € | Début 2026 |
| Bat 1A - Cellule A24 | R+2 avec terrasse commune | Bureaux | 184 | 4 | 531 398,00 € | 2 660,00 € | Début 2026 |
| Bat 1A - Cellule A31 | R+2 avec terrasse privative | Bureaux vue village | 283 | 4 | 829 997,00 € | 2 690,00 € | Début 2026 |
| Bat 1A - Cellule A32 | R+2 avec terrasse commune | Bureaux | 172 | 3 | 484 293,00 € | 2 622,00 € | Début 2026 |





































