Ref : 95_0621_IN
Vente Local d'activités
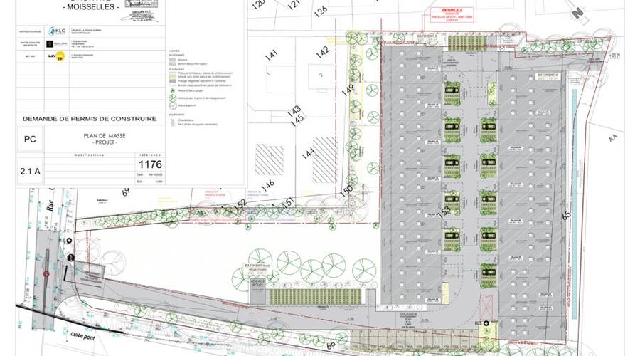
LOCAL D'ACTIVITE A VENDRE
Moisselles (95570)
Prix : 8 273 200 €
Surface 4 472 m²
Divisible dès 299 m²
Description du bien
INVEST CONSEIL vous propose une VEFA de locaux d'activités d'environ 300 m² situés dans le nouvel éco parc de MOISSELLES.
Les + :
- Secteur dynamique en plein essor
- Idéal pour les PME, artisans, logisticiens légers ou structures tertiaires
Prestations du bien
- Charge au sol : 2T/m²
- Fluides en attente
- Hauteur sous plafond : 7m
- Parking
- Porte sectionnelle : 3x3,5m
- Structure métallique
- Tarif bleu
- Toiture bac acier
- Arrivée fibre et eau par cellule
- Hauteur sous mezzanine 4m
- Local déchet
- Local à vélo
- Environnement paysagé
Ce local professionnel vous est présenté par
Vous souhaitez nous joindre ?
Surfaces des locaux
| Batiment - Lot | Etage | Type | Surface totale (en m2) | Parking | Prix de vente net vendeur HT ou HD | Prix de vente au m2 HT | Disponibilité |
| Bât A - Cellule 1 | 331 | 92 | 423 | oui | 782 550,00 € | 1 850,00 € | 1T 2027 |
| Bât A - Cellule 2 | 256 | 70 | 326 | oui | 603 100,00 € | 1 850,00 € | 1T 2027 |
| Bât A - Cellule 3 | 256 | 70 | 326 | oui | 603 100,00 € | 1 850,00 € | 1T 2027 |
| Bât A - Cellule 4 | 256 | 70 | 326 | oui | 603 100,00 € | 1 850,00 € | 1T 2027 |
| Bât A - Cellule 5 | 256 | 70 | 326 | oui | 603 100,00 € | 1 850,00 € | 1T 2027 |
| Bât A - Cellule 6 | 256 | 70 | 326 | oui | 603 100,00 € | 1 850,00 € | 1T 2027 |
| Bât A - Cellule 7 | 256 | 70 | 326 | oui | 603 100,00 € | 1 850,00 € | 1T 2027 |
| Bât B - Cellule 8 | 229 | 70 | 299 | oui | 553 150,00 € | 1 850,00 € | 1T 2027 |
| Bât B - Cellule 9 | 229 | 70 | 299 | oui | 553 150,00 € | 1 850,00 € | 1T 2027 |
| Bât B - Cellule 10 | 229 | 70 | 299 | oui | 553 150,00 € | 1 850,00 € | 1T 2027 |
| Bât B - Cellule 11 | 229 | 70 | 299 | oui | 553 150,00 € | 1 850,00 € | 1T 2027 |
| Bât B - Cellule 12 | 229 | 70 | 299 | oui | 553 150,00 € | 1 850,00 € | 1T 2027 |
| Bât B - Cellule 13 | 229 | 70 | 299 | oui | 553 150,00 € | 1 850,00 € | 1T 2027 |
| Bât B - Cellule 14 | 229 | 70 | 299 | oui | 553 150,00 € | 1 850,00 € | 1T 2027 |
Localisation et accessibilité
- Bus: Ligne de bus n°1520
Ligne H - Gare de "Bouffémont Moisselles" - Autoroute: A16 / N104 / D301
| Batiment - Lot | Etage | Type | Surface totale (en m2) | Parking | Prix de vente net vendeur HT ou HD | Prix de vente au m2 HT | Disponibilité |
| Bât A - Cellule 1 | 331 | 92 | 423 | oui | 782 550,00 € | 1 850,00 € | 1T 2027 |
| Bât A - Cellule 2 | 256 | 70 | 326 | oui | 603 100,00 € | 1 850,00 € | 1T 2027 |
| Bât A - Cellule 3 | 256 | 70 | 326 | oui | 603 100,00 € | 1 850,00 € | 1T 2027 |
| Bât A - Cellule 4 | 256 | 70 | 326 | oui | 603 100,00 € | 1 850,00 € | 1T 2027 |
| Bât A - Cellule 5 | 256 | 70 | 326 | oui | 603 100,00 € | 1 850,00 € | 1T 2027 |
| Bât A - Cellule 6 | 256 | 70 | 326 | oui | 603 100,00 € | 1 850,00 € | 1T 2027 |
| Bât A - Cellule 7 | 256 | 70 | 326 | oui | 603 100,00 € | 1 850,00 € | 1T 2027 |
| Bât B - Cellule 8 | 229 | 70 | 299 | oui | 553 150,00 € | 1 850,00 € | 1T 2027 |
| Bât B - Cellule 9 | 229 | 70 | 299 | oui | 553 150,00 € | 1 850,00 € | 1T 2027 |
| Bât B - Cellule 10 | 229 | 70 | 299 | oui | 553 150,00 € | 1 850,00 € | 1T 2027 |
| Bât B - Cellule 11 | 229 | 70 | 299 | oui | 553 150,00 € | 1 850,00 € | 1T 2027 |
| Bât B - Cellule 12 | 229 | 70 | 299 | oui | 553 150,00 € | 1 850,00 € | 1T 2027 |
| Bât B - Cellule 13 | 229 | 70 | 299 | oui | 553 150,00 € | 1 850,00 € | 1T 2027 |
| Bât B - Cellule 14 | 229 | 70 | 299 | oui | 553 150,00 € | 1 850,00 € | 1T 2027 |
















