Ref : 1193162-0L_MA
Location Bureau
À LOUER - Bureaux 124 m² - LYON 2
Lyon (69002)
Loyer : 33 600 € / an
Surface 124 m²
Description du bien
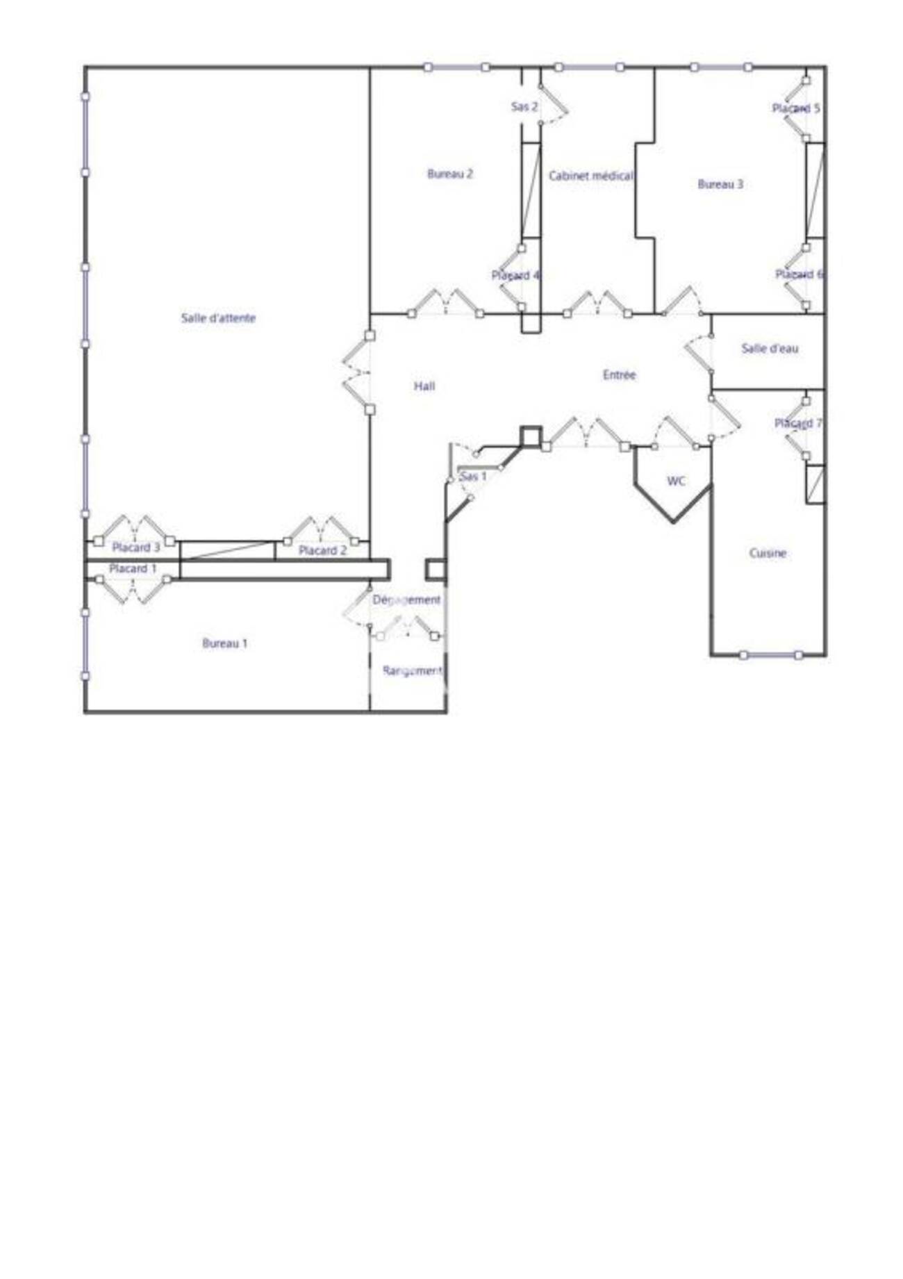
MALSH Realty vous propose des bureaux à louer d'une surface de 124 m², situés au coeur de la Presqu'île dans un quartier prestigieux à deux pas de la Place Bellecour, au sein d'un immeuble de standing de style haussmannien. Ces bureaux de caractère offrent un cachet remarquable avec cheminées et moulures décoratives, parquet en chevrons, belle hauteur sous plafond et excellente luminosité, ainsi que des huisseries et fenêtres rénovées en 2025.
Prestations du bien
- Composition :
- 4 Bureaux
- 1 Grande salle de réunion / openspace
- 1 Espace cuisine
- 1 Salle d'eau
- 1 Sanitaire
- 1 Local d'archive
- Prestations :
- Immeuble de style Haussmannien
- Charme de l'ancien et lumineux
- Moulures et cheminées décoratives
- Parquet chevron
- Belle hauteur sous plafond
- Placards muraux
- Huisseries rénovées en 2025
- Fenêtres double vitrages installées en 2025
- Chauffage gaz individuel
- Câblage RJ45 et fibre optique
- Ascenseur et interphone
Informations financières
- Charges minimales : 113 €
- Bail : Professionnel ou commercial
- Taxe foncière : 1 667 €
- Dépôt de garantie : 3 mois de loyer HT/HC
Ce local professionnel vous est présenté par
Vous souhaitez nous joindre ?
Surfaces des locaux
| Étage | Bâtiment | Type | Surfaces | Disponibilité | Loyer | Charges | Honoraires | Fiscal | Bail | Révision annuelle | Prix | Charges | Honoraires | Fiscal | Paiement Loyer | lot | Coworking | |
|---|---|---|---|---|---|---|---|---|---|---|---|---|---|---|---|---|---|---|
| 1 | Bureaux | 124 | 1er juillet 2026 | 270,97 HC/m²/an | 1 360 /an | 30 % HT du loyer annuel HC à la charge du preneur, payables à la signature du bail | Non soumis à la T.V.A. | Professionnel ou commercial | ILAT Indice des Loyers des Activités Tertiaires | Trimestriel d'avance | ||||||||
| Total | 124 m² |
Localisation et accessibilité
- Bus: Nombreuses lignes de bus TCL
- Metro: Métro lignes A et D station "Bellecour" à proximit
Ces biens pourraient vous intéresser
| Étage | Bâtiment | Type | Surfaces | Disponibilité | Loyer | Charges | Honoraires | Fiscal | Bail | Révision annuelle | Prix | Charges | Honoraires | Fiscal | Paiement Loyer | lot | Coworking | |
|---|---|---|---|---|---|---|---|---|---|---|---|---|---|---|---|---|---|---|
| 1 | Bureaux | 124 | 1er juillet 2026 | 270,97 HC/m²/an | 1 360 /an | 30 % HT du loyer annuel HC à la charge du preneur, payables à la signature du bail | Non soumis à la T.V.A. | Professionnel ou commercial | ILAT Indice des Loyers des Activités Tertiaires | Trimestriel d'avance | ||||||||
| Total | 124 m² |




















































