Ref : 1281909-0L_MA
Location Bureau
LYON 2 - Bureaux de 149 m² - A LOUER
Lyon (69002)
Loyer : 34 272 € / an
Surface 149 m²
Description du bien
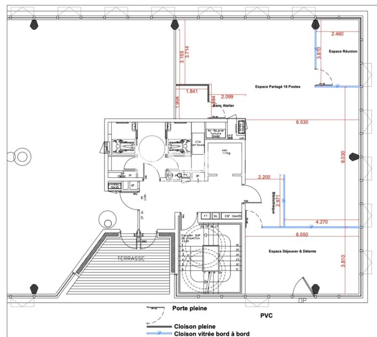
MALSH Realty & Property vous propose 149 m² de bureaux à louer au coeur du quartier moderne de Confluence. Ces bureaux rénovés offrent un espace cloisonné, climatisé, équipé, câblé. Ils disposent également d'une cuisine équipée et d'une terrasse.
Prestations du bien
- Prestations bureaux :
- Bureaux cloisonnés et câblés
- Fibre optique
- Baie de brassage
- Accès sécurisé
- Accès PMR
- Eclairage LED automatique
- Stores électriques
- Chauffage collectif
- Climatisation réversible
- Lumineux
- Parquet vinyle et moquette au sol
- Prestation bâtiment :
- Certification : HQE Construction et RT 2012
- Bâtiment à Énergie positive
- Certification Effinergie, NF HQE Excellent
- Très faible consommation énergétique
- Objectif RT2012 - 60 %
- Ascenseur
- Accès PMR
- Local vélos
Informations financières
- Charges minimales : 619 €
- Bail : commercial 3-6-9 ans
- Dépôt de garantie : 3 mois de loyer HT/HC
Ce local professionnel vous est présenté par
Vous souhaitez nous joindre ?
Surfaces des locaux
| Étage | Bâtiment | Type | Surfaces | Disponibilité | Loyer | Charges | Honoraires | Fiscal | Bail | Révision annuelle | Prix | Charges | Honoraires | Fiscal | Paiement Loyer | lot | Coworking | |
|---|---|---|---|---|---|---|---|---|---|---|---|---|---|---|---|---|---|---|
| 2 | Bureaux | 149 | Immédiate | 230 HT/HC/m²/an | 7 433 /an HT | 15 % HT du loyer annuel HT à la charge du preneur, payables à la signature du bail | T.V.A. (20%) | commercial 3-6-9 ans | ILAT Indice des Loyers des Activités Tertiaires | Trimestriel d'avance | ||||||||
| Total | 149 m² |
Localisation et accessibilité
- Bus: Bus TCL lignes 63 et S1
- SCNF: Gare de Lyon Perrache à 5 min à pied
- Tramway: Tramway T1 et T2 arrêt "Sainte-Blandine"
Ces biens pourraient vous intéresser
| Étage | Bâtiment | Type | Surfaces | Disponibilité | Loyer | Charges | Honoraires | Fiscal | Bail | Révision annuelle | Prix | Charges | Honoraires | Fiscal | Paiement Loyer | lot | Coworking | |
|---|---|---|---|---|---|---|---|---|---|---|---|---|---|---|---|---|---|---|
| 2 | Bureaux | 149 | Immédiate | 230 HT/HC/m²/an | 7 433 /an HT | 15 % HT du loyer annuel HT à la charge du preneur, payables à la signature du bail | T.V.A. (20%) | commercial 3-6-9 ans | ILAT Indice des Loyers des Activités Tertiaires | Trimestriel d'avance | ||||||||
| Total | 149 m² |










































































