Ref : 1013024-0L_MA
Location Bureau
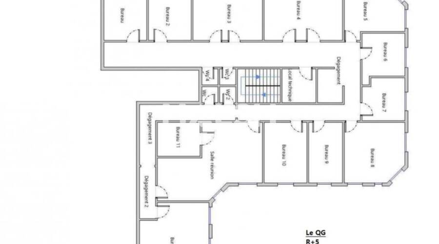
LYON 4 - Bureaux de 387 m² - A LOUER
Lyon (69004)
Loyer : 55 596 € / an
Surface 327 m²
Description du bien
MALSH Realty & Property vous propose à la location à Lyon 4 dans un immeuble dépendant du régime de la copropriété, élevé en R+9 développant 8 600m² de bureaux une surface de 387 m² au 5ème étage et places de parkings en sous-sol.
Prestations du bien
- Ascenseur
- Digicode
- Portail électrique
- Accès handicapés
- Climatisation
- Possibilité places de parkings en sous-sol
Informations financières
- Charges minimales : 1 591 €
- Taxe foncière : 8 514 €
- Informations location :
Conditions particulières à la location : Honoraires rédaction bail : 800,00 euros HT charge Preneur
Honoraires état des lieux : 400,00 euros HT charge Preneur
Prix parking : 1 100 euros/U/an
Ce local professionnel vous est présenté par
Vous souhaitez nous joindre ?
Surfaces des locaux
| Étage | Bâtiment | Type | Surfaces | Disponibilité | Loyer | Charges | Honoraires | Fiscal | Bail | Révision annuelle | Prix | Charges | Honoraires | Fiscal | Paiement Loyer | lot | Coworking | |
|---|---|---|---|---|---|---|---|---|---|---|---|---|---|---|---|---|---|---|
| 2 | Bureaux | 327 | 170 HT/HC/m²/an | 58,39 m²/an HT | 15% HT d'un an de loyer HT à la charge du preneur, payables à la signature du bail | T.V.A. (20%) | ILAT Indice des Loyers des Activités Tertiaires | Trimestriel d'avance | 004B | |||||||||
| 1SS | Archives | 12 | 50 HT/HC/m²/an | 25,42 m²/an HT | 15% HT d'un an de loyer HT à la charge du preneur, payables à la signature du bail | T.V.A. (20%) | ILAT Indice des Loyers des Activités Tertiaires | Trimestriel d'avance | 0021 | |||||||||
| 1SS | Parkings | - | 1 100 HT/HC/place/an | 210 HT/unité/an | 15% HT d'un an de loyer HT à la charge du preneur, payables à la signature du bail | T.V.A. (20%) | ILAT Indice des Loyers des Activités Tertiaires | Trimestriel d'avance | 12216-12217 | |||||||||
| Total | 339 m² | |||||||||||||||||
| 2 | ||||||||||||||||||
Localisation et accessibilité
- Bus: Serin - Saint-Charles (BUS-C6, BUS-2, BUS-45), Les Esses (BUS-C13, BUS-C18), Pont Mouton (BUS-C14, BUS-5, BUS-19, BUS-31, BUS-9
- SCNF: Lyon-Vaise (France)
- Metro: Valmy (METRO-D)
Ces biens pourraient vous intéresser
| Étage | Bâtiment | Type | Surfaces | Disponibilité | Loyer | Charges | Honoraires | Fiscal | Bail | Révision annuelle | Prix | Charges | Honoraires | Fiscal | Paiement Loyer | lot | Coworking | |
|---|---|---|---|---|---|---|---|---|---|---|---|---|---|---|---|---|---|---|
| 2 | Bureaux | 327 | 170 HT/HC/m²/an | 58,39 m²/an HT | 15% HT d'un an de loyer HT à la charge du preneur, payables à la signature du bail | T.V.A. (20%) | ILAT Indice des Loyers des Activités Tertiaires | Trimestriel d'avance | 004B | |||||||||
| 1SS | Archives | 12 | 50 HT/HC/m²/an | 25,42 m²/an HT | 15% HT d'un an de loyer HT à la charge du preneur, payables à la signature du bail | T.V.A. (20%) | ILAT Indice des Loyers des Activités Tertiaires | Trimestriel d'avance | 0021 | |||||||||
| 1SS | Parkings | - | 1 100 HT/HC/place/an | 210 HT/unité/an | 15% HT d'un an de loyer HT à la charge du preneur, payables à la signature du bail | T.V.A. (20%) | ILAT Indice des Loyers des Activités Tertiaires | Trimestriel d'avance | 12216-12217 | |||||||||
| Total | 339 m² | |||||||||||||||||
| 2 | ||||||||||||||||||






































































