Ref : 13_001141_SV
Location Bureau
BUREAUX A LOUER
Marseille (13008)
Loyer : 32 256 € / an
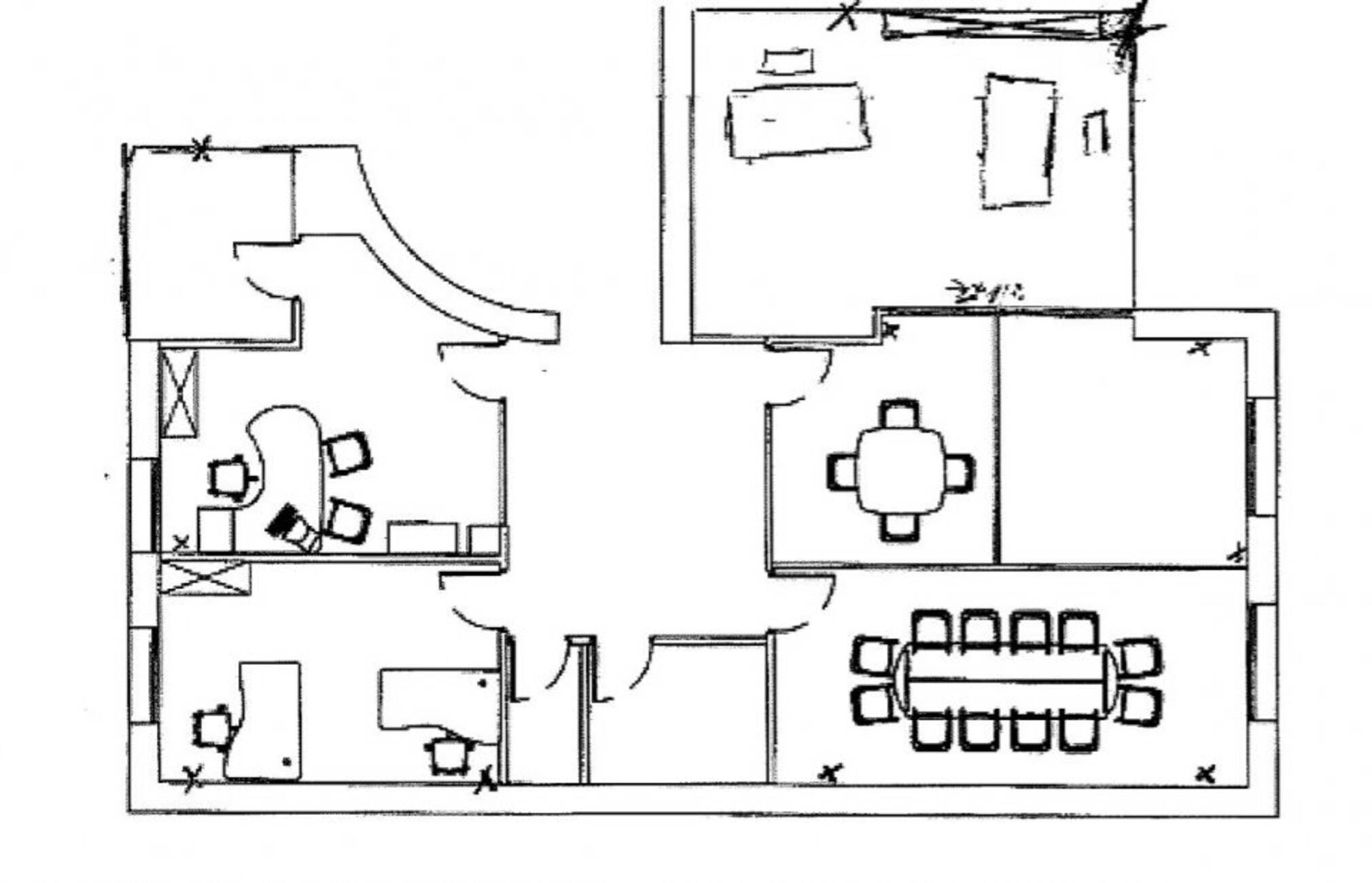
Surface 135 m²
Description du bien
SVRE vous propose à la location des bureaux lumineux de 135 m² au 1er étage, avec vue dégagée sur le Rond-Point du Prado.Situés dans un immeuble de standing, ces bureaux se composent de 5 espaces de travail, d'une salle de réunion, d'une cuisine équipée et d'un balcon/terrasse.Offrant un cadre de travail agréable et fonctionnel, ces locaux sont idéalement implantés au coeur d'un quartier tertiaire recherché, à proximité immédiate des commerces, services et parfaitement desservi par les transports en commun.Atouts : Belle luminosité, Balcon/Terrasse, Cuisine équipée, Emplacement stratégique, Accès facile en transports.
Prestations du bien
- Ascenseur
- Bureaux : 5
- Bureaux cloisonnés
- Câblage RJ45
- Carrelages
- Climatisation
- Cuisine équipée
- Luminaires faux plafond
- Salle de réunion
Informations financières
- Charges minimales : 4 752 €
- Bail : Commercial 3/6/9 ans
- Dépôt de garantie : 3 mois de loyer HT/HC
Ce local professionnel vous est présenté par
Vous souhaitez nous joindre ?
Localisation et accessibilité
- Bus: Métro - ligne M2 - Station Rond Point du Prado
Nombreuses lignes de bus : 19, 41, 83 - Autoroute: Tunnel Prado accès direct autoroutes Est et Nord via la L2
| Bat / Etage | Type | Surface | Prix | Prix /m2 | Disponibilité |
| R+1 | Bureaux | 135 |
















































